
1/17
請注意,上方物件照片如有街景,為物件附近環境介紹,非物件本身。
1/17
有102人也在關注這間👀
本區專家
本案專家

預約看屋
按下送出表示您已同意本站
服務條款
與隱私權聲明
送出
大里立新震後角間透天店面
(9608JQ)
台中市大里區立新街
有102人也在關注這間👀
詳情
總價
2,880萬
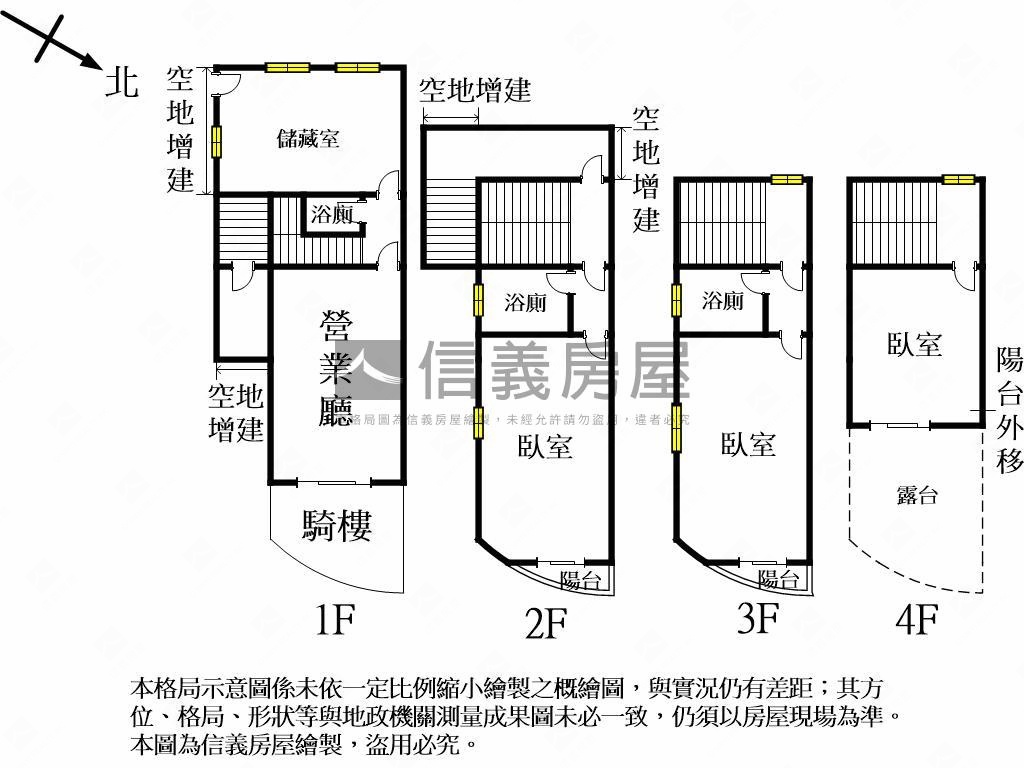
格局
3房1廳3衛1室
建坪
57.09坪
(主+陽53.21坪)
類型
店面/透天
樓層
1-4樓/4樓
建坪單價
50.45 萬/坪
屋齡
20.9年
地坪
34.69坪
地坪單價
--

SinyiCare十大守護 信義房屋購售屋服務保障

點擊觀看生活機能
公車 (12)公共自行車 (2)
0立新國小
1.5分鐘 / 107m
1立仁四立元路口
2.2分鐘 / 160m
2立仁四立元路口
2.4分鐘 / 173m
3立新國中
3.5分鐘 / 260m
4立新國中
3.5分鐘 / 261m
5立新國小
3.6分鐘 / 264m
6立中街
7分鐘 / 520m
7立元路停車場
6.7分鐘 / 501m
8立元路停車場
6.8分鐘 / 508m
9立中街
7.7分鐘 / 575m
A甲堤南甲堤六街口
9.5分鐘 / 694m
B立仁路157巷口
8.3分鐘 / 587m
0立新國小
1.5分鐘 / 107m
1立仁四立元路口
2.2分鐘 / 160m
2立仁四立元路口
2.4分鐘 / 173m
3立新國中
3.5分鐘 / 260m
4立新國中
3.5分鐘 / 261m
觀看全部

SinyiCare十大守護 信義房屋購售屋服務保障
建坪
57.09坪
詳情
建坪單價
50.45 萬/坪
地坪
34.69坪
主+陽
53.21坪=
主建物
50.34坪+
陽台
2.87坪
騎樓
3.89坪
格局
3房1廳3衛
加蓋格局
1室
屋齡
20.9年
類型
店面/透天
樓層
1-4樓/4樓
車位
--
邊間/暗房
是/否
建物朝向
東北
大門朝向
東北
落地窗朝向
東北
警衛管理
無
建物詳情
建物結構
鋼筋混凝土
外牆建材
二丁掛
每層戶數
1
謄本用途
人行道、店舖、住房、辦公室、停車空間
使用分區
見土地使用分區證明影本;
注意事項
--
收合
物件特色
鄰近學區免接送
格局方正邊間採光佳
大里立新重劃區
角間透天店面一級棒
適合自住或投資
近74快速道路交流道
震後輕屋齡
路口三角窗三面採光
類似物件實價登錄(27)
距離該物件1公里內,半年內成交,店面/別墅/透天
共有27間與我相似的實價登錄物件
編輯篩選條件
列表
地圖
年月
地址
類型/車位
總價
單價
建坪
地坪
屋齡
樓層
格局
114年09月

台中市大里區甲興路62號
別墅/透天
2,200萬
39.41萬
55.82坪
29.13坪
12.5年
1樓/3樓
4房3廳5衛
歷史移轉3次
114年09月
別墅/透天台中市大里區甲興路62號移轉3次
2,200萬
39.41萬/坪
建坪55.82坪地坪29.13無車位
4房3廳5衛12.5年1樓/3樓
4房3廳5衛12.5年1樓/3樓
114年07月

台中市大里區華城街50號
別墅/透天
833萬
15.88萬
52.46坪
26.52坪
34.3年
1樓/3樓
4房2廳3衛
114年07月
別墅/透天台中市大里區華城街50號833萬
15.88萬/坪
建坪52.46坪地坪26.52無車位
4房2廳3衛34.3年1樓/3樓
4房2廳3衛34.3年1樓/3樓
備註資訊:陽台外推;頂樓加蓋;其他增建;
1,680萬
20.58萬/坪
建坪81.63坪地坪25.29無車位
5房3廳4衛21.3年1樓/3樓
5房3廳4衛21.3年1樓/3樓
信義成交交易備註
114年11月

台中市大里區甲堤六街35號
別墅/透天
500萬
29.77萬
16.8坪
9.01坪
11.7年
1樓/4樓
4房3廳3衛
歷史移轉3次
備註資訊:親友、員工、共有人或其他特殊關係間之交易;
114年11月
別墅/透天台中市大里區甲堤六街35號移轉3次
500萬
29.77萬/坪
建坪16.8坪地坪9.01無車位
4房3廳3衛11.7年1樓/4樓
4房3廳3衛11.7年1樓/4樓
交易備註
114年09月

台中市大里區甲堤六街35號
別墅/透天
2,255萬
33.56萬
67.2坪
36.02坪
11.5年
1樓/4樓
4房3廳3衛
歷史移轉3次
114年09月
別墅/透天台中市大里區甲堤六街35號移轉3次
2,255萬
33.56萬/坪
建坪67.2坪地坪36.02無車位
4房3廳3衛11.5年1樓/4樓
4房3廳3衛11.5年1樓/4樓
- 資料來源:
為信義房屋最新成交行情;
為內政部最新公布的實價登錄資料;
該數值為系統運算,詳細請看說明
- 本實價登錄分類係綜合內政部實價登錄2020年7月之建物型態分類調整,以及申報登錄之建物型態、建物權狀登載之「主要用途」資料推估而成,故資料呈現類型、順序可能會與內政部不動產交易實價查詢服務網之搜尋結果有所差異,請斟酌參考。看看我們如何推估實價登錄類型與順序
- 特殊行情物件可能為受到特別條件或特殊關係影響所造成,詳情請參考頁面之粉色「備註資訊」欄。排除特殊交易功能,開啟後可即時排除顯示申報備註中關係人間交易、特殊交易情況及標的類型、與政府有關之交易、僅車位交易、分件登記、含多筆土地或多棟建物、 交易標的僅有建物、土地面積為0(含地上權物件),及其他備註資訊,關閉後則會恢復顯示。
- 歷史移轉次數依據信義成交行情及政府實價登錄資訊推估,再由系統比對當筆與前一筆實價登錄,交易明細完全吻合方計算漲跌幅,當筆交易漲跌幅計算式為(當筆交易之成交總價/前一筆交易之成交總價)-1,計算百分比至小數點後兩位;可能與實際交易有所落差,資料請斟酌參考。
為信義房屋最新成交行情;- 本實價登錄分類係綜合內政部實價登錄2020年7月之建物型態分類調整,以及申報登錄之建物型態、建物權狀登載之「主要用途」資料推估而成,故資料呈現類型、順序可能會與內政部不動產交易實價查詢服務網之搜尋結果有所差異,請斟酌參考。看看我們如何推估實價登錄類型與順序
- 特殊行情物件可能為受到特別條件或特殊關係影響所造成,詳情請參考頁面之粉色「備註資訊」欄。排除特殊交易功能,開啟後可即時排除顯示申報備註中關係人間交易、特殊交易情況及標的類型、與政府有關之交易、僅車位交易、分件登記、含多筆土地或多棟建物、 交易標的僅有建物、土地面積為0(含地上權物件),及其他備註資訊,關閉後則會恢復顯示。
- 歷史移轉次數依據信義成交行情及政府實價登錄資訊推估,再由系統比對當筆與前一筆實價登錄,交易明細完全吻合方計算漲跌幅,當筆交易漲跌幅計算式為(當筆交易之成交總價/前一筆交易之成交總價)-1,計算百分比至小數點後兩位;可能與實際交易有所落差,資料請斟酌參考。
查看實價登錄
本區專家
本案專家

根據你的設定值計算
146,241/月


