
1/18
請注意,上方物件照片如有街景,為物件附近環境介紹,非物件本身。
1/18
有5人也在關注這間👀
本案專家

預約看屋
按下送出表示您已同意本站
服務條款
與隱私權聲明
送出
有5人也在關注這間👀
詳情
總價(含車位)
5,680萬
格局
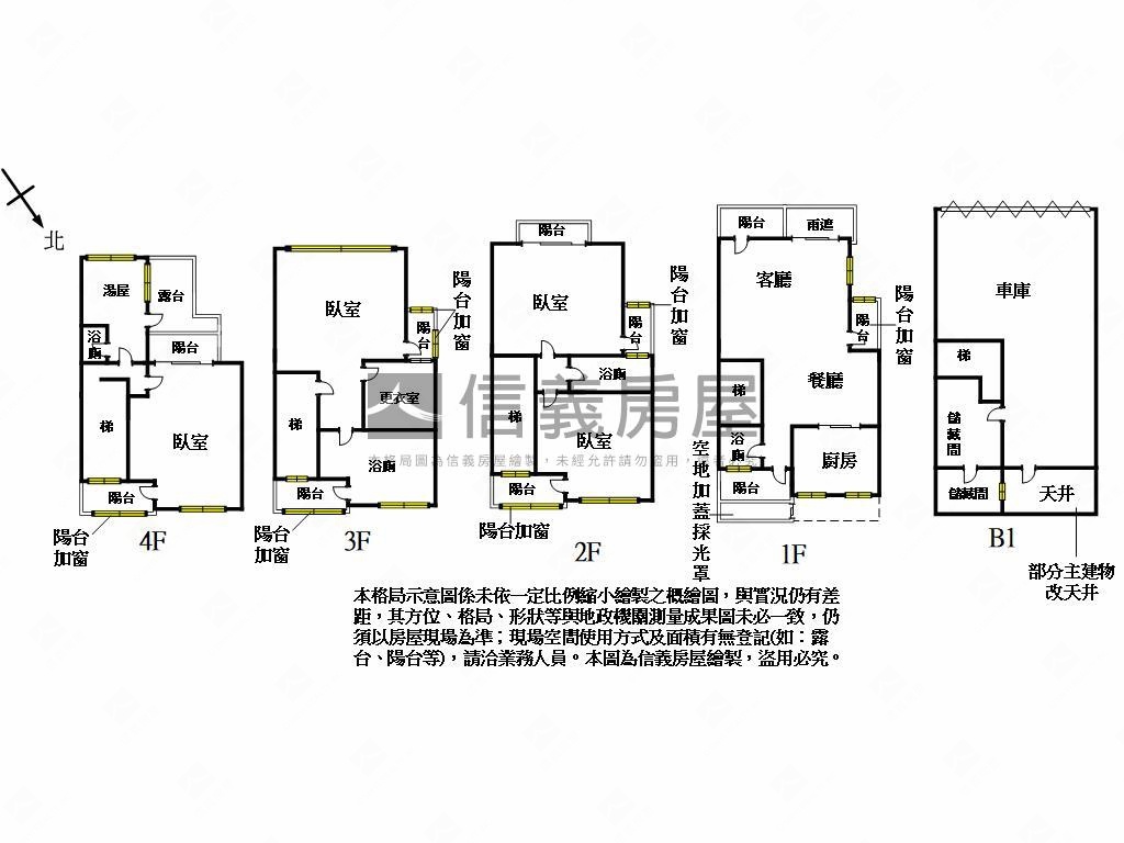
4房2廳4衛1室
建坪
109.27坪
(主+陽73.14坪)
類型
透天
樓層
B1-4樓/4樓
建坪單價
本物件含車位,詳洽經紀人員
屋齡
19.0年
地坪
34.9坪
地坪單價
詳洽經紀人員

SinyiCare十大守護 信義房屋購售屋服務保障
點擊觀看生活機能
公車 (9)公共自行車 (2)停車場 (1)
0六家五路
1.8分鐘 / 128m
1六家五路
1.9分鐘 / 139m
2嘉政一街
4.9分鐘 / 364m
3嘉政一街
5.2分鐘 / 384m
4文興嘉豐南路口
7.9分鐘 / 569m
5文興嘉豐南路口
9.9分鐘 / 708m
6文興嘉豐南路口站
9.2分鐘 / 646m
7新瓦屋(文興路)
9.9分鐘 / 728m
8新瓦屋站
10.2分鐘 / 727m
0六家五路
1.8分鐘 / 128m
1六家五路
1.9分鐘 / 139m
2嘉政一街
4.9分鐘 / 364m
3嘉政一街
5.2分鐘 / 384m
4文興嘉豐南路口
7.9分鐘 / 569m
觀看全部

SinyiCare十大守護 信義房屋購售屋服務保障
建坪
109.27坪
詳情
建坪單價
本物件含車位,詳洽經紀人員
地坪
34.9坪
主+陽
73.14坪=
主建物
63.68坪+
陽台
9.46坪
地下室
24.83坪
共有部份
9.98坪
雨遮
1.24坪
管理室(含公設)
0.09坪
地坪單價
詳洽經紀人員
格局
4房2廳4衛1室
加蓋格局
--
屋齡
19.0年
類型
透天
樓層
B1-4樓/4樓
車位
1個其他,詳情請洽經紀人員更多
邊間/暗房
是/否
建物朝向
西南
大門朝向
西南
落地窗朝向
西南
警衛管理
全天候
管理費
4000 元/月
建物詳情
建物結構
鋼筋混凝土
外牆建材
二丁掛
每層戶數
1
謄本用途
住家用
使用分區
見土地使用分區證明影本;
注意事項
--
收合
物件特色
高鐵區質感透天
地下車庫好停車
全天候警衛管理
面寬約6米
精緻裝潢稀有釋出
使用空間大
鬧中取靜絕佳地點
採光明亮通風佳
類似物件實價登錄(3)
距離該物件1公里內,半年內成交,別墅/透天
共有3間與我相似的實價登錄物件
編輯篩選條件
列表
地圖
年月
地址
類型/車位
總價
單價
建坪
地坪
屋齡
樓層
格局
備註資訊:陽台外推;頂樓加蓋;
114年07月


嘉政六街20號
別墅/透天
3,800萬
45.02萬
84.41坪
24.12坪
18.1年
1樓/5樓
7房2廳4衛
備註資訊:陽台外推;頂樓加蓋;
114年07月
別墅/透天嘉政六街20號3,800萬
45.02萬/坪
建坪84.41坪地坪24.12無車位
7房2廳4衛18.1年1樓/5樓
7房2廳4衛18.1年1樓/5樓
信義成交交易備註
114年09月


隘口五街58巷16號
別墅/透天
3,580萬
38.97萬
91.85坪
30.64坪
14.0年
1樓/5樓
5房2廳6衛
歷史移轉2次
備註資訊:陽台外推;頂樓加蓋;
114年09月
別墅/透天隘口五街58巷16號移轉2次
3,580萬
38.97萬/坪
建坪91.85坪地坪30.64無車位
5房2廳6衛14.0年1樓/5樓
5房2廳6衛14.0年1樓/5樓
信義成交交易備註
- 資料來源:
為信義房屋最新成交行情;
為內政部最新公布的實價登錄資料;
該數值為系統運算,詳細請看說明
- 本實價登錄分類係綜合內政部實價登錄2020年7月之建物型態分類調整,以及申報登錄之建物型態、建物權狀登載之「主要用途」資料推估而成,故資料呈現類型、順序可能會與內政部不動產交易實價查詢服務網之搜尋結果有所差異,請斟酌參考。看看我們如何推估實價登錄類型與順序
- 特殊行情物件可能為受到特別條件或特殊關係影響所造成,詳情請參考頁面之粉色「備註資訊」欄。排除特殊交易功能,開啟後可即時排除顯示申報備註中關係人間交易、特殊交易情況及標的類型、與政府有關之交易、僅車位交易、分件登記、含多筆土地或多棟建物、 交易標的僅有建物、土地面積為0(含地上權物件),及其他備註資訊,關閉後則會恢復顯示。
- 歷史移轉次數依據信義成交行情及政府實價登錄資訊推估,再由系統比對當筆與前一筆實價登錄,交易明細完全吻合方計算漲跌幅,當筆交易漲跌幅計算式為(當筆交易之成交總價/前一筆交易之成交總價)-1,計算百分比至小數點後兩位;可能與實際交易有所落差,資料請斟酌參考。
為信義房屋最新成交行情;- 本實價登錄分類係綜合內政部實價登錄2020年7月之建物型態分類調整,以及申報登錄之建物型態、建物權狀登載之「主要用途」資料推估而成,故資料呈現類型、順序可能會與內政部不動產交易實價查詢服務網之搜尋結果有所差異,請斟酌參考。看看我們如何推估實價登錄類型與順序
- 特殊行情物件可能為受到特別條件或特殊關係影響所造成,詳情請參考頁面之粉色「備註資訊」欄。排除特殊交易功能,開啟後可即時排除顯示申報備註中關係人間交易、特殊交易情況及標的類型、與政府有關之交易、僅車位交易、分件登記、含多筆土地或多棟建物、 交易標的僅有建物、土地面積為0(含地上權物件),及其他備註資訊,關閉後則會恢復顯示。
- 歷史移轉次數依據信義成交行情及政府實價登錄資訊推估,再由系統比對當筆與前一筆實價登錄,交易明細完全吻合方計算漲跌幅,當筆交易漲跌幅計算式為(當筆交易之成交總價/前一筆交易之成交總價)-1,計算百分比至小數點後兩位;可能與實際交易有所落差,資料請斟酌參考。
查看實價登錄
本案專家

根據你的設定值計算
288,419/月


