照片 地圖
  • image
  • image
  • image
  • image
  • image
  • image
  • image
  • image
  • image
  • image
  • image
  • image
  • image
  • image
  • image
  • image
  • image
  • image
  • image
  • image
  • image

請注意,以上照片如有街景,為物件附近環境介紹,非物件本身。

43,000

元/月

含:--

  • 押金:兩個月
  • 坪數:57.26坪
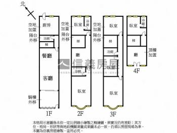
  • 類型:成屋
  • 樓層:1-3樓/共3樓
  • 格局:6房4廳5衛(含加蓋 3房1廳2衛)
  • 社區:--
  • 地址:新竹縣竹北市福興路

租屋專線:

  • 【信義房屋 竹北台科大店】 03-6575088
  • 新竹縣竹北市科大一路89號
  • 更新日期:2026/03/29 10:42
調整字級:

詳細資料

  • 地址:

    新竹縣竹北市福興路

  • 產權登記:
  • 權狀坪數:

    57.26坪 (坪數說明)主建物 50.56坪
    附屬建物 6.70坪
    共有部份 --坪
    土地 --坪

  • 出租坪數:

    57.26坪

  • 類型:

    成屋

  • 型態:

    透天厝

  • 屋齡:

    25.1年

  • 樓層:

    1-3樓/共3樓

  • 該層戶數:

    該層1戶

  • 隔間材質:
  • 格局:

    3房3廳3衛

  • 加蓋格局:

    3房1廳2衛

  • 頂樓加蓋:

    本標的不含頂樓加蓋

  • 大樓朝向:

    西南

  • 管理費

    --

    管理費如有調整,請以管委會最新收費為準
  • 警衛管理:

  • 車位:

  • 開伙:

  • 寵物:

  • 租期:

    一年

  • 地址:

    新竹縣竹北市福興路

  • 產權登記:
  • 權狀坪數:

    57.26坪 (坪數說明)主建物 50.56坪
    附屬建物 6.70坪
    共有部份 --坪
    土地 --坪
    x

  • 出租坪數:

    57.26坪

  • 類型:

    成屋

  • 型態:

    透天厝

  • 屋齡:

    25.1年

  • 樓層:

    1-3樓/共3樓

  • 該層戶數:

    該層1戶

  • 隔間材質:
  • 格局:

    3房3廳3衛

  • 加蓋格局:

    3房1廳2衛

  • 頂樓加蓋:

    本標的不含頂樓加蓋

  • 大樓朝向:

    西南

  • 管理費

    --

    管理費如有調整,請以管委會最新收費為準
  • 警衛管理:

  • 車位:

  • 開伙:

  • 寵物:

  • 租期:

    一年

傢俱設備

特色說明

  • 自地自建,大空間透天
  • 交通四通八達真便利
  • 臨台科大校區未來可期
  • 租售併行,歡迎詢問
  • 三面採光無遮蔽
  • 格局方正明亮通風
  • 使用空間大好規劃
  • 網路預約,專人服務

周邊環境

近學校近便利商店近公園
捷運資訊 --
公車站名 --
公車路線 --
捷運資訊 --
公車站名 --
公車路線 --

屋況照片

提醒您:

出租人及承租人請注意,內政部已修正公告【房屋租賃定型化契約應記載及不得記載事項】,訂自109年9月1日生效施行,倘租屋作為居住使用者,請租賃雙方簽約時使用符合【住宅租賃定型化契約應記載及不得記載事項】之住宅租賃契約,以保障雙方權益。

*有關住宅租賃相關法規及相關資訊,請見「 內政部租賃條例專區

周邊物件

  • 青川之上高樓河岸視野戶

    成屋110.52坪

    80,000

    元/月
  • 平鎮東安立體我家A棟

    成屋25.80坪

    15,000

    元/月
  • 東坡硯大三房稀有釋出

    成屋64.25坪

    36,000

    元/月
  • 德鑫雅典遠百角間明亮四房

    成屋54.93坪

    40,000

    元/月