照片 地圖
  • image
  • image
  • image
  • image
  • image
  • image
  • image
  • image
  • image
  • image
  • image

請注意,以上照片如有街景,為物件附近環境介紹,非物件本身。

30,000

元/月

含:--

  • 押金:兩個月
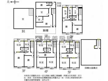
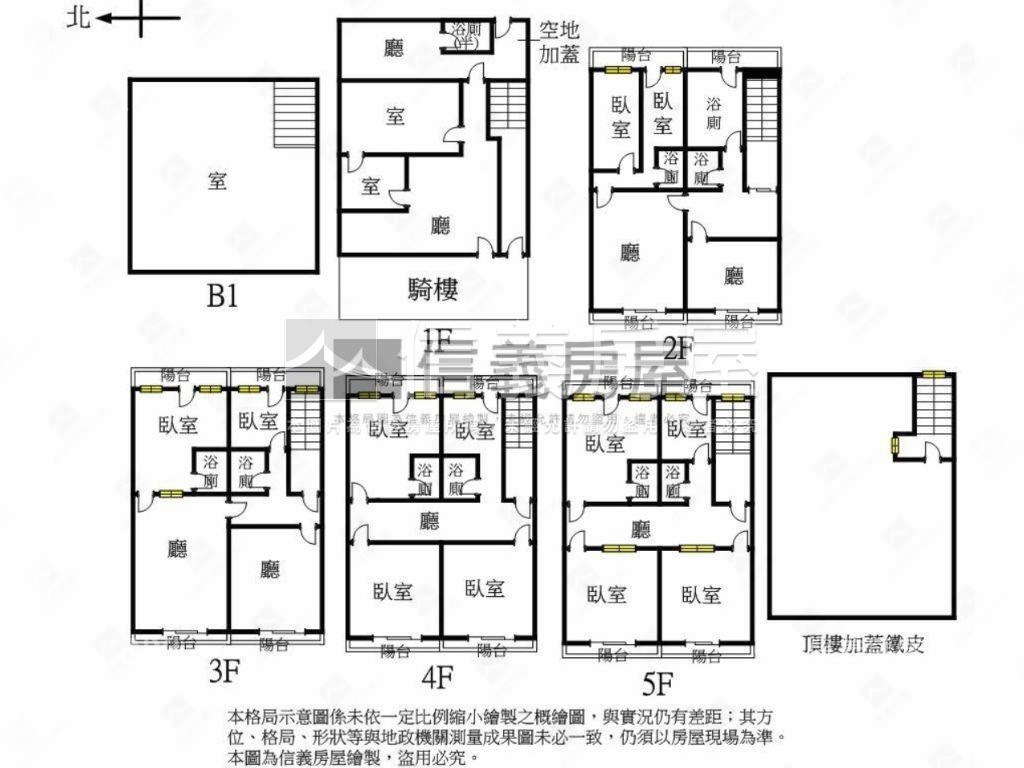
  • 坪數:40.08坪
  • 類型:成屋
  • 樓層:4樓/共5樓
  • 格局:4房2衛
  • 社區:--
  • 地址:台中市北區中清路一段

租屋專線:

  • 【信義房屋 北區崇德店】 04-22352368
  • 台中市北區崇德路一段135號
  • 更新日期:2026/01/03 07:11
調整字級:

詳細資料

  • 地址:

    台中市北區中清路一段

  • 產權登記:
  • 權狀坪數:

    249.23坪 (坪數說明)主建物 233.02坪
    附屬建物 16.21坪
    共有部份 --坪
    土地 --坪

  • 出租坪數:

    40.08坪

  • 類型:

    成屋

  • 型態:

    透天厝

  • 屋齡:

    44.4年

  • 樓層:

    4樓/共5樓

  • 該層戶數:

    該層1戶

  • 隔間材質:

    無隔間

  • 格局:

    4房2衛

  • 加蓋格局:

    --

  • 頂樓加蓋:

    本標的不含頂樓加蓋

  • 大樓朝向:

    西

  • 管理費:

    --

  • 警衛管理:

  • 車位:

  • 開伙:

  • 寵物:

  • 租期:

    一年

  • 地址:

    台中市北區中清路一段

  • 產權登記:
  • 權狀坪數:

    249.23坪 (坪數說明)主建物 233.02坪
    附屬建物 16.21坪
    共有部份 --坪
    土地 --坪
    x

  • 出租坪數:

    40.08坪

  • 類型:

    成屋

  • 型態:

    透天厝

  • 屋齡:

    44.4年

  • 樓層:

    4樓/共5樓

  • 該層戶數:

    該層1戶

  • 隔間材質:

    無隔間

  • 格局:

    4房2衛

  • 加蓋格局:

    --

  • 頂樓加蓋:

    本標的不含頂樓加蓋

  • 大樓朝向:

    西

  • 管理費:

    --

  • 警衛管理:

  • 車位:

  • 開伙:

  • 寵物:

  • 租期:

    一年

傢俱設備

特色說明

  • 約10米寬大面寬
  • 走路約2分鐘到捷運站
  • 稀有大坪數空間好規劃
  • 生活交通機能佳
  • 間間有陽台通風採光佳
  • 辦公、店住合一皆宜
  • 近天津、北平成熟商圈
  • 可租補

周邊環境

近學校近傳統市場近超市近便利商店近公園近銀行
捷運資訊
文心中清站
台中綠線
公車站名 捷運文心中清
公車路線 很多條路線
捷運資訊
文心中清站
台中綠線
公車站名 捷運文心中清
公車路線 很多條路線

屋況照片

提醒您:

出租人及承租人請注意,內政部已修正公告【房屋租賃定型化契約應記載及不得記載事項】,訂自109年9月1日生效施行,倘租屋作為居住使用者,請租賃雙方簽約時使用符合【住宅租賃定型化契約應記載及不得記載事項】之住宅租賃契約,以保障雙方權益。

*有關住宅租賃相關法規及相關資訊,請見「 內政部租賃條例專區

周邊物件

  • 冠德文心綻2房2衛捷運宅

    成屋36.90坪

    33,000

    元/月
  • 捷運宅3房平面車位

    成屋46.17坪

    27,000

    元/月
  • 捷運向陽邨三房車位屋況好

    成屋34.02坪

    27,000

    元/月
  • 近G6捷運站三房有管理室

    成屋27.17坪

    18,000

    元/月