13,000
元/月含:--
- 押金:兩個月
- 坪數:14.57坪
- 類型:成屋
- 樓層:9樓/共14樓
- 格局:1房1廳1衛(含加蓋 1房)
- 社區:蘇活大街
- 地址:台中市西區大業路
歡迎租補
租屋專線:
- 【信義房屋 水湳經貿店】 04-23692717
- 台中市北屯區中清路二段713號
- 更新日期:2026/03/02 21:15
詳細資料
-
地址:
台中市西區大業路
-
產權登記:
-
權狀坪數:
14.57坪 (坪數說明)主建物 8.13坪
附屬建物 1.40坪
共有部份 5.04坪
土地 --坪
-
出租坪數:
14.57坪
-
類型:
成屋
-
型態:
大樓(11層含以上有電梯)
-
屋齡:
29.6年
-
樓層:
9樓/共14樓
-
該層戶數:
該層11戶
-
隔間材質:
-
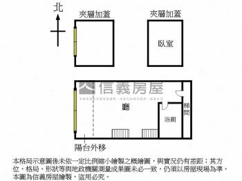
格局:
1廳1衛
-
加蓋格局:
1房
-
頂樓加蓋:
本標的不含頂樓加蓋
-
大樓朝向:
北
-
管理費
:
約$874元(不含租金內)
管理費如有調整,請以管委會最新收費為準 -
警衛管理:
有(全天)
-
車位:
無
-
開伙:
可
-
寵物:
不可
-
租期:
一年
傢俱設備
特色說明
- 挑高格局一房一廳
- 附家具家電,屋況好
- 高樓層通風,好視野佳
- 全天候管理安全性高
- 位五期精華商圈
- 可申請租補
- 近東興大業明星學校
- 禁寵物,禁拜拜
周邊環境
近學校近超市近便利商店近公園
| 捷運資訊 |
水安宮站 台中綠線 |
| 公車站名 | -- |
| 公車路線 | -- |
| 捷運資訊 |
水安宮站 台中綠線 |
| 公車站名 | -- |
| 公車路線 | -- |
所屬社區
蘇活大街
穩定收租,出租容易五期精華地段,生活機能相當便利,近公益路大型餐聽,精誠商圈逛街好去處,鄰近台灣大道交通便利,、鄰近精誠別墅.環境幽靜(資料最後更新日:2021/09/30)
大樓
268
30年
- 蘇活大街
- 房屋類型大樓
- 社區戶數268戶
- 社區屋齡30 年
- 詳情社區資訊 >
穩定收租,出租容易五期精華地段,生活機能相當便利,近公益路大型餐聽,精誠商圈逛街好去處,鄰近台灣大道交通便利,、鄰近精誠別墅.環境幽靜(資料最後更新日:2021/09/30)
屋況照片
提醒您:
出租人及承租人請注意,內政部已修正公告【房屋租賃定型化契約應記載及不得記載事項】,訂自109年9月1日生效施行,倘租屋作為居住使用者,請租賃雙方簽約時使用符合【住宅租賃定型化契約應記載及不得記載事項】之住宅租賃契約,以保障雙方權益。
*有關住宅租賃相關法規及相關資訊,請見「 內政部租賃條例專區 」
周邊物件
-
近科博館一房一廳獨洗獨曬
成屋14.63坪15,000
元/月 -
七期市政101小豪宅
成屋26.98坪28,000
元/月 -
LAONE勤美精品美宅
成屋18.15坪23,000
元/月 -
勤美可租補獨洗曬美套房
成屋9.58坪11,400
元/月
