
請注意,上方物件照片如有街景,為物件附近環境介紹,非物件本身。
1/22
有19人也在關注這間👀
本案專家
更多挑選
按下按鈕表示您已同意本站
服務條款
與隱私權聲明
預約看屋
【奇岩】夢想中毛坯露臺戶
(0659ZP)
台北市北投區奇岩路
有19人也在關注這間👀
總價
4,933萬
含車位價
建坪單價
59.68 萬/坪(扣除車位價及車坪)
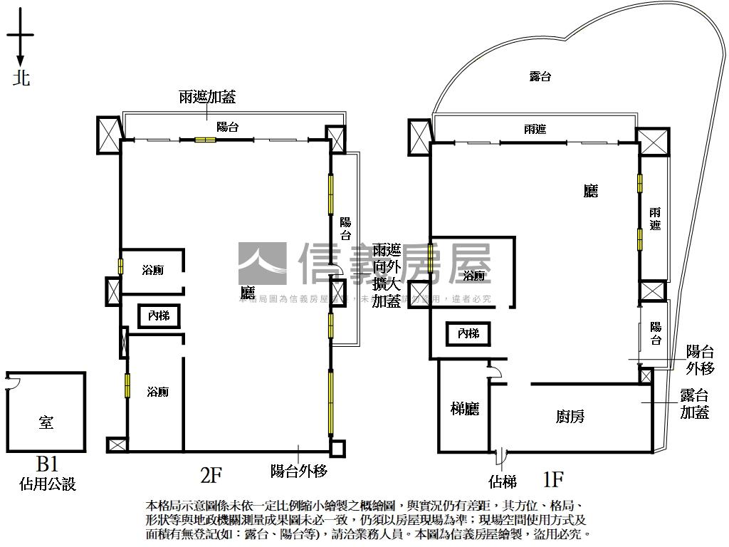
格局
2廳3衛1室
含加蓋1室
房貸試算
計算
元/月
年|利率%概算|undefined年寬限期
符合首購資格嗎?
坪數詳情
細項
建坪82.87
主+陽(含其他)51.29
地坪32.74
類型華廈
屋齡7.1年
樓層1-2樓/5樓
管理費
約4,500 元/月
加蓋格局1室
謄本用途住家用
使用分區第二種住宅區;
完整物件詳情
本案專家
更多挑選
物件特色
毛坯屋自己規劃夢想
約定專用露臺約18坪
座北朝南.帝王座向
一樓挑高約四米二
樓中樓可規劃長輩房
電梯指定樓層免爬梯
獨立門廳.戶數單純
主臥規劃四件式衛浴
周邊生活機能


SinyiCare十大守護 信義房屋購售屋服務保障
點擊觀看生活機能
捷運 (2)
公車 (9)
公共自行車 (1)
0唭哩岸站 - 出口1
25.9分鐘 / 1888m
1唭哩岸站 - 出口2
25.4分鐘 / 1850m
0唭哩岸站 - 出口1
25.9分鐘 / 1888m
1唭哩岸站 - 出口2
25.4分鐘 / 1850m

SinyiCare十大守護 信義房屋購售屋服務保障
類似物件實價登錄
(21)


