
請注意,上方物件照片如有街景,為物件附近環境介紹,非物件本身。
1/22
有5人也在關注這間👀
本案專家
更多挑選
按下按鈕表示您已同意本站
服務條款
與隱私權聲明
預約看屋
金山溫泉優美別墅
(0741NP)
新北市金山區名流路
有5人也在關注這間👀
總價
2,980萬
建坪單價
本物件含加蓋,詳洽經紀人員
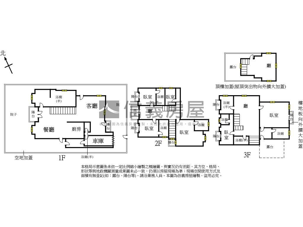
格局
6房5廳7衛
含加蓋1廳
房貸試算
計算
元/月
年|利率%概算|undefined年寬限期
符合首購資格嗎?
坪數詳情
細項
建坪137.47
主+陽(含其他)137.47
地坪168.44
類型別墅/透天
屋齡24.9年
樓層1-3樓/3樓
管理費
約4,500 元/月
加蓋格局1廳
謄本用途住家用
使用分區山坡地保育區丙種建築用地; 山坡地保育區交通用地;
完整物件詳情
本案專家
更多挑選
物件特色
金山獨棟溫泉別墅
私人庭院大魚池
自有車庫好停車
社區保全管理安全
周邊生活機能


SinyiCare十大守護 信義房屋購售屋服務保障
點擊觀看生活機能
重要設施 (1)
0舍信堂
173m
0舍信堂
173m

SinyiCare十大守護 信義房屋購售屋服務保障
類似物件實價登錄
(5)
1公里內 | 半年內 | 別墅/透天
4房2廳3衛
|58.5坪
|無車位
1,178萬20.14萬/坪
115/03成交
3房3廳3衛
|58.59坪
|有車位
630萬10.75萬/坪
114/12成交


