
1/17
請注意,上方物件照片如有街景,為物件附近環境介紹,非物件本身。
1/17
有112人也在關注這間👀
本案專家

預約看屋
按下送出表示您已同意本站
服務條款
與隱私權聲明
送出
有112人也在關注這間👀
詳情
總價
1,960萬
格局
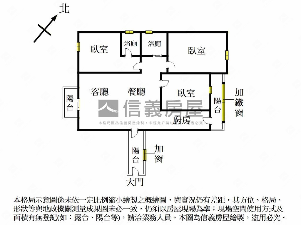
3房2廳2衛
建坪
27.66坪
(主+陽25.91坪)
類型
公寓
樓層
5樓/5樓
建坪單價
70.86 萬/坪
屋齡
42.2年
地坪
12.28坪
地坪單價
--

SinyiCare十大守護 信義房屋購售屋服務保障
點擊觀看生活機能
捷運 (4)公車 (38)公共自行車 (3)停車場 (2)
0中和站 - 出口1
7.1分鐘 / 481m
1中和站 - 出口2
8.1分鐘 / 561m
2永和永平國小站(興建中) - 出口
13.9分鐘 / 974m
3橋和站 - 出口
16.8分鐘 / 1190m
0中和站 - 出口1
7.1分鐘 / 481m
1中和站 - 出口2
8.1分鐘 / 561m
2永和永平國小站(興建中) - 出口
13.9分鐘 / 974m
3橋和站 - 出口
16.8分鐘 / 1190m

SinyiCare十大守護 信義房屋購售屋服務保障
建坪
27.66坪
詳情
建坪單價
70.86 萬/坪
地坪
12.28坪
主+陽
25.91坪=
主建物
22.7坪+
陽台
3.21坪
共有部份
1.68坪
見注意事項
0.07坪
格局
3房2廳2衛
加蓋格局
--
屋齡
42.2年
類型
公寓
樓層
5樓/5樓
車位
--
邊間/暗房
是/否
建物朝向
東南
大門朝向
東南
警衛管理
全天候
管理費
150 元/月
建物詳情
建物結構
鋼筋混凝土
外牆建材
二丁掛
每層戶數
2
謄本用途
集合住宅
使用分區
住宅區;
注意事項
--
收合
物件特色
一江新城稀有釋出
近公園。市場。商圈
格局方正使用好規劃
近環狀線捷運中和站
社區保全管理
環境、清靜、單純
前後陽台通風明亮
多線公車路線交通方便
類似物件實價登錄(85)
距離該物件1公里內,半年內成交,公寓
共有85間與我相似的實價登錄物件
編輯篩選條件
列表
地圖
年月
地址
類型/車位
總價
單價
建坪
地坪
屋齡
樓層
格局
備註資訊:其他增建;
- 資料來源:
為信義房屋最新成交行情;
為內政部最新公布的實價登錄資料;
該數值為系統運算,詳細請看說明
- 本實價登錄分類係綜合內政部實價登錄2020年7月之建物型態分類調整,以及申報登錄之建物型態、建物權狀登載之「主要用途」資料推估而成,故資料呈現類型、順序可能會與內政部不動產交易實價查詢服務網之搜尋結果有所差異,請斟酌參考。看看我們如何推估實價登錄類型與順序
- 特殊行情物件可能為受到特別條件或特殊關係影響所造成,詳情請參考頁面之粉色「備註資訊」欄。排除特殊交易功能,開啟後可即時排除顯示申報備註中關係人間交易、特殊交易情況及標的類型、與政府有關之交易、僅車位交易、分件登記、含多筆土地或多棟建物、 交易標的僅有建物、土地面積為0(含地上權物件),及其他備註資訊,關閉後則會恢復顯示。
- 歷史移轉次數依據信義成交行情及政府實價登錄資訊推估,再由系統比對當筆與前一筆實價登錄,交易明細完全吻合方計算漲跌幅,當筆交易漲跌幅計算式為(當筆交易之成交總價/前一筆交易之成交總價)-1,計算百分比至小數點後兩位;可能與實際交易有所落差,資料請斟酌參考。
為信義房屋最新成交行情;- 本實價登錄分類係綜合內政部實價登錄2020年7月之建物型態分類調整,以及申報登錄之建物型態、建物權狀登載之「主要用途」資料推估而成,故資料呈現類型、順序可能會與內政部不動產交易實價查詢服務網之搜尋結果有所差異,請斟酌參考。看看我們如何推估實價登錄類型與順序
- 特殊行情物件可能為受到特別條件或特殊關係影響所造成,詳情請參考頁面之粉色「備註資訊」欄。排除特殊交易功能,開啟後可即時排除顯示申報備註中關係人間交易、特殊交易情況及標的類型、與政府有關之交易、僅車位交易、分件登記、含多筆土地或多棟建物、 交易標的僅有建物、土地面積為0(含地上權物件),及其他備註資訊,關閉後則會恢復顯示。
- 歷史移轉次數依據信義成交行情及政府實價登錄資訊推估,再由系統比對當筆與前一筆實價登錄,交易明細完全吻合方計算漲跌幅,當筆交易漲跌幅計算式為(當筆交易之成交總價/前一筆交易之成交總價)-1,計算百分比至小數點後兩位;可能與實際交易有所落差,資料請斟酌參考。
查看實價登錄
本案專家

根據你的設定值計算
99,525/月


