
請注意,上方物件照片如有街景,為物件附近環境介紹,非物件本身。
1/22
有230人也在關注這間👀
本案專家
更多挑選
按下按鈕表示您已同意本站
服務條款
與隱私權聲明
預約看屋
有230人也在關注這間👀
總價
1,698萬
1,750萬
含車位價
建坪單價
本物件含車位,詳洽經紀人員
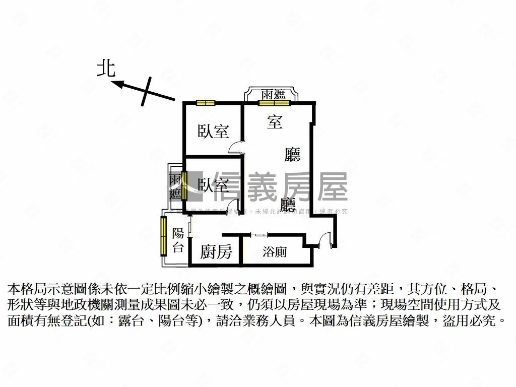
格局
2房2廳1衛1室
房貸試算
計算
元/月
年|利率%概算|undefined年寬限期
符合首購資格嗎?
坪數詳情
細項
建坪38.92
主+陽(含其他)19.83
地坪6.83
類型大樓
屋齡6.7年
樓層13樓/15樓
管理費
約2,665 元/月
加蓋格局--
謄本用途集合住宅
使用分區住宅區;
完整物件詳情
本案專家
更多挑選
物件特色
格局方正好規劃
高樓層採光好通風
一層五戶
全天候保全管理嚴謹
近全聯好採購
近便利商店好便利
知名建商九揚建設
近64.65快速道路
周邊生活機能


SinyiCare十大守護 信義房屋購售屋服務保障
點擊觀看生活機能
公車 (23)
公共自行車 (3)
停車場 (6)
0新五路二段(新城)
1.1分鐘 / 80m
1賀聖宮
2.5分鐘 / 187m
2賀聖宮
2.6分鐘 / 190m
3新五路二段(新城)
2分鐘 / 136m
4賀聖宮
3.3分鐘 / 232m
5坑口
4分鐘 / 258m
6洲仔(五股戶政事務所)
4.4分鐘 / 312m
7洲仔(五股戶政事務所)
4.2分鐘 / 299m
8新城
3分鐘 / 220m
9新城
3.1分鐘 / 231m
A巡守隊
5.8分鐘 / 376m
B巡守隊
5.9分鐘 / 387m
C坑口
5.7分鐘 / 379m
D新城
4.7分鐘 / 336m
E成功里
6.4分鐘 / 472m
F小公園口
8.5分鐘 / 561m
G芳洲一路
5.5分鐘 / 386m
H成泰路三段
7.3分鐘 / 496m
I新城八路
6.1分鐘 / 450m
J成功里
7分鐘 / 518m
K小公園口
9.5分鐘 / 634m
L芳洲一路
6.1分鐘 / 434m
M新城八路
6.5分鐘 / 482m
0新五路二段(新城)
1.1分鐘 / 80m
1賀聖宮
2.5分鐘 / 187m
2賀聖宮
2.6分鐘 / 190m
3新五路二段(新城)
2分鐘 / 136m
4賀聖宮
3.3分鐘 / 232m
完整周邊生活圈


SinyiCare十大守護 信義房屋購售屋服務保障
類似物件實價登錄
(77)


