
1/13
請注意,上方物件照片如有街景,為物件附近環境介紹,非物件本身。
1/13
有45人也在關注這間👀
本案專家

預約看屋
按下送出表示您已同意本站
服務條款
與隱私權聲明
送出
中正南路正路面廠房
(1243PK)
台南市永康區中正南路
有45人也在關注這間👀
詳情
總價
16,300萬
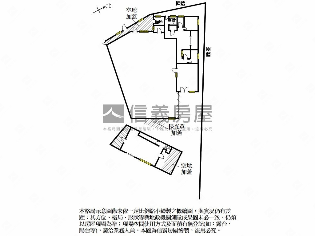
格局
2廳3衛1室
建坪
184.1坪
(主建物184.1坪)
類型
廠房
樓層
1-1樓/1樓
建坪單價
88.54 萬/坪
屋齡
5.1年
地坪
339.63坪
地坪單價
--

SinyiCare十大守護 信義房屋購售屋服務保障
點擊觀看生活機能
公車 (8)
0尚頂里
0.1分鐘 / 8m
1尚頂里
1.8分鐘 / 123m
2南大崎
3分鐘 / 221m
3中正南路
3.5分鐘 / 245m
4中正南路
3.3分鐘 / 241m
5南大崎
5分鐘 / 349m
6台電配電中心
6.2分鐘 / 440m
7南臺科大
10.5分鐘 / 728m
0尚頂里
0.1分鐘 / 8m
1尚頂里
1.8分鐘 / 123m
2南大崎
3分鐘 / 221m
3中正南路
3.5分鐘 / 245m
4中正南路
3.3分鐘 / 241m
觀看全部

SinyiCare十大守護 信義房屋購售屋服務保障
建坪
184.1坪
詳情
建坪單價
88.54 萬/坪
地坪
339.63坪
主建物
184.1坪
格局
2廳3衛1室
加蓋格局
--
屋齡
5.1年
類型
廠房
樓層
1-1樓/1樓
車位
--
邊間/暗房
否/否
建物朝向
東南
大門朝向
東南
警衛管理
無
建物詳情
建物結構
見注意事項
外牆建材
二丁掛
每層戶數
1
謄本用途
見產調注意事項
使用分區
見土地使用分區證明影本;
注意事項
--
收合
物件特色
中正南路車潮人流旺區
長期增值潛力企業首選
甲種工業地用途彈性高
面寬約32米
網路預約專人服務
收租自用兩者皆宜
買方服務費成交價1%
稀有釋出敬請把握
類似物件實價登錄(5)
距離該物件1公里內,半年內成交,廠房
共有5間與我相似的實價登錄物件
編輯篩選條件
列表
地圖
年月
地址
類型/車位
總價
單價
建坪
地坪
屋齡
樓層
格局
114年10月

台南市永康區尚頂里正南一街106號
廠房
3,200萬
52.69萬
60.73坪
285.51坪
40.3年
1樓/1樓
2房1廳1衛
備註資訊:親友、員工、共有人或其他特殊關係間之交易;
114年10月
廠房台南市永康區尚頂里正南一街106號3,200萬
52.69萬/坪
建坪60.73坪地坪285.51無車位
2房1廳1衛40.3年1樓/1樓
2房1廳1衛40.3年1樓/1樓
交易備註
114年09月

台南市永康區正南一街105巷38號
廠房
17萬
0.29萬
58.37坪
0坪
39.3年
1樓/1樓
0衛
備註資訊:廠房;建物坐落地號:頂中段834地號;親友、員工、共有人或其他特殊關係間之交易;其他增建;
114年09月
廠房台南市永康區正南一街105巷38號17萬
0.29萬/坪
建坪58.37坪地坪0無車位
0衛39.3年1樓/1樓
0衛39.3年1樓/1樓
交易備註
114年08月

台南市永康區甲頂里中央路23巷11號
廠房
900萬
4.42萬
203.64坪
86.55坪
18.8年
1樓/2樓
0衛
備註資訊:親友、員工、共有人或其他特殊關係間之交易;
114年08月
廠房台南市永康區甲頂里中央路23巷11號900萬
4.42萬/坪
建坪203.64坪地坪86.55無車位
0衛18.8年1樓/2樓
0衛18.8年1樓/2樓
交易備註
114年08月

台南市永康區信街82號
廠房
4,600萬
38.46萬
119.61坪
160.18坪
37.3年
1樓/1樓
2廳3衛
備註資訊:土地成交金額新台幣4520萬元整;建物成交金額新台幣80萬元整。陽台外推;其他增建;
114年08月
廠房台南市永康區信街82號4,600萬
38.46萬/坪
建坪119.61坪地坪160.18無車位
2廳3衛37.3年1樓/1樓
2廳3衛37.3年1樓/1樓
交易備註
114年07月

台南市永康區洲工街97號
廠房
250萬
1.96萬
127.4坪
0坪
17.1年
1樓/3樓
4房2廳2衛
備註資訊:建物坐落地號:鹽北段1528地號;親友、員工、共有人或其他特殊關係間之交易;未登記建物;
114年07月
廠房台南市永康區洲工街97號250萬
1.96萬/坪
建坪127.4坪地坪0無車位
4房2廳2衛17.1年1樓/3樓
4房2廳2衛17.1年1樓/3樓
交易備註
- 資料來源:
為信義房屋最新成交行情;
為內政部最新公布的實價登錄資料;
該數值為系統運算,詳細請看說明
- 本實價登錄分類係綜合內政部實價登錄2020年7月之建物型態分類調整,以及申報登錄之建物型態、建物權狀登載之「主要用途」資料推估而成,故資料呈現類型、順序可能會與內政部不動產交易實價查詢服務網之搜尋結果有所差異,請斟酌參考。看看我們如何推估實價登錄類型與順序
- 特殊行情物件可能為受到特別條件或特殊關係影響所造成,詳情請參考頁面之粉色「備註資訊」欄。排除特殊交易功能,開啟後可即時排除顯示申報備註中關係人間交易、特殊交易情況及標的類型、與政府有關之交易、僅車位交易、分件登記、含多筆土地或多棟建物、 交易標的僅有建物、土地面積為0(含地上權物件),及其他備註資訊,關閉後則會恢復顯示。
- 歷史移轉次數依據信義成交行情及政府實價登錄資訊推估,再由系統比對當筆與前一筆實價登錄,交易明細完全吻合方計算漲跌幅,當筆交易漲跌幅計算式為(當筆交易之成交總價/前一筆交易之成交總價)-1,計算百分比至小數點後兩位;可能與實際交易有所落差,資料請斟酌參考。
為信義房屋最新成交行情;- 本實價登錄分類係綜合內政部實價登錄2020年7月之建物型態分類調整,以及申報登錄之建物型態、建物權狀登載之「主要用途」資料推估而成,故資料呈現類型、順序可能會與內政部不動產交易實價查詢服務網之搜尋結果有所差異,請斟酌參考。看看我們如何推估實價登錄類型與順序
- 特殊行情物件可能為受到特別條件或特殊關係影響所造成,詳情請參考頁面之粉色「備註資訊」欄。排除特殊交易功能,開啟後可即時排除顯示申報備註中關係人間交易、特殊交易情況及標的類型、與政府有關之交易、僅車位交易、分件登記、含多筆土地或多棟建物、 交易標的僅有建物、土地面積為0(含地上權物件),及其他備註資訊,關閉後則會恢復顯示。
- 歷史移轉次數依據信義成交行情及政府實價登錄資訊推估,再由系統比對當筆與前一筆實價登錄,交易明細完全吻合方計算漲跌幅,當筆交易漲跌幅計算式為(當筆交易之成交總價/前一筆交易之成交總價)-1,計算百分比至小數點後兩位;可能與實際交易有所落差,資料請斟酌參考。
查看實價登錄
本案專家

根據你的設定值計算
827,681/月


