
1/17
請注意,上方物件照片如有街景,為物件附近環境介紹,非物件本身。
1/17
有0人也在關注這間👀
本案專家

預約看屋
按下送出表示您已同意本站
服務條款
與隱私權聲明
送出
有0人也在關注這間👀
詳情
總價(含車位)
3,980萬
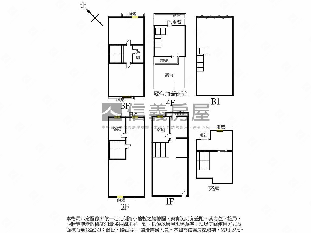
格局
4房2廳3衛
建坪
79.61坪
(主+陽46.38坪)
類型
辦公/店面
樓層
B1-4樓/4樓
建坪單價
本物件含車位,詳洽經紀人員
屋齡
18.7年
地坪
26.11坪
地坪單價
詳洽經紀人員

SinyiCare十大守護 信義房屋購售屋服務保障
點擊觀看生活機能
捷運 (7)公車 (24)公共自行車 (5)停車場 (2)
0分子尾站(規劃中) - 出口
5.7分鐘 / 393m
1徐匯中學站 - 出口2
10.4分鐘 / 757m
2徐匯中學站 - 出口A
11.4分鐘 / 827m
3徐匯中學站 - 出口1
11.6分鐘 / 825m
4三和國中站 - 出口2
14.9分鐘 / 1052m
5三和國中站 - 出口1
15.6分鐘 / 1092m
6重陽橋站(規劃中) - 出口
14.2分鐘 / 1014m
0分子尾站(規劃中) - 出口
5.7分鐘 / 393m
1徐匯中學站 - 出口2
10.4分鐘 / 757m
2徐匯中學站 - 出口A
11.4分鐘 / 827m
3徐匯中學站 - 出口1
11.6分鐘 / 825m
4三和國中站 - 出口2
14.9分鐘 / 1052m
觀看全部

SinyiCare十大守護 信義房屋購售屋服務保障
建坪
79.61坪
詳情
建坪單價
本物件含車位,詳洽經紀人員
地坪
26.11坪
主+陽
46.38坪=
主建物
45.82坪+
陽台
0.56坪
地下室
13.55坪
共有部份
7.49坪
雨遮
4.4坪
夾層
7.81坪
地坪單價
詳洽經紀人員
格局
4房2廳3衛
加蓋格局
--
屋齡
18.7年
類型
辦公/店面
樓層
B1-4樓/4樓
車位
1個其他,詳情請洽經紀人員更多
邊間/暗房
否/否
建物朝向
西南
大門朝向
西南
落地窗朝向
西南
警衛管理
全天候
管理費
5573 元/月
建物詳情
建物結構
鋼筋混凝土
外牆建材
二丁掛
每層戶數
1
謄本用途
見注意事項
使用分區
乙種工業區;
注意事項
--
收合
物件特色
近捷運徐匯中學站
近家樂福重劃區商圈
市場便利店公園環境佳
網路預約專人解說服務
類似物件實價登錄(18)
距離該物件1公里內,半年內成交,辦公/店面
共有18間與我相似的實價登錄物件
編輯篩選條件
列表
地圖
年月
地址
類型/車位
總價
單價
建坪
地坪
屋齡
樓層
格局
備註資訊:頂樓加蓋;夾層;
4,228萬
含車位價
45.93萬/坪
含車位計算
建坪92.05坪(含車位--坪)地坪33.67有車位
4房3廳3衛18.6年1樓/4樓
4房3廳3衛18.6年1樓/4樓
交易備註
114年10月

新北市三重區仁華街72號五樓
辦公
1,150萬
33.43萬
34.4坪
7.74坪
35.8年
5樓/5樓
4房4廳4衛
歷史移轉2次
備註資訊:陽台外推;頂樓加蓋;
114年10月
辦公新北市三重區仁華街72號五樓移轉2次
1,150萬
33.43萬/坪
建坪34.4坪地坪7.74無車位
4房4廳4衛35.8年5樓/5樓
4房4廳4衛35.8年5樓/5樓
交易備註
114年08月

新北市三重區五華街169號
店面
4,650萬
47.38萬
98.15坪
11.4坪
29.6年
1樓/7樓
0衛
備註資訊:其他增建;
114年08月
店面新北市三重區五華街169號4,650萬
47.38萬/坪
建坪98.15坪地坪11.4無車位
0衛29.6年1樓/7樓
0衛29.6年1樓/7樓
交易備註
備註資訊:庭院專用其他增建;
114年07月

新北市三重區仁華街74號三樓
辦公
700萬
19.65萬
35.62坪
7.93坪
35.6年
3樓/5樓
3房2廳2衛
備註資訊:親友、員工、共有人或其他特殊關係間之交易;
114年07月
辦公新北市三重區仁華街74號三樓700萬
19.65萬/坪
建坪35.62坪地坪7.93無車位
3房2廳2衛35.6年3樓/5樓
3房2廳2衛35.6年3樓/5樓
交易備註
- 資料來源:
為信義房屋最新成交行情;
為內政部最新公布的實價登錄資料;
該數值為系統運算,詳細請看說明
- 本實價登錄分類係綜合內政部實價登錄2020年7月之建物型態分類調整,以及申報登錄之建物型態、建物權狀登載之「主要用途」資料推估而成,故資料呈現類型、順序可能會與內政部不動產交易實價查詢服務網之搜尋結果有所差異,請斟酌參考。看看我們如何推估實價登錄類型與順序
- 特殊行情物件可能為受到特別條件或特殊關係影響所造成,詳情請參考頁面之粉色「備註資訊」欄。排除特殊交易功能,開啟後可即時排除顯示申報備註中關係人間交易、特殊交易情況及標的類型、與政府有關之交易、僅車位交易、分件登記、含多筆土地或多棟建物、 交易標的僅有建物、土地面積為0(含地上權物件),及其他備註資訊,關閉後則會恢復顯示。
- 歷史移轉次數依據信義成交行情及政府實價登錄資訊推估,再由系統比對當筆與前一筆實價登錄,交易明細完全吻合方計算漲跌幅,當筆交易漲跌幅計算式為(當筆交易之成交總價/前一筆交易之成交總價)-1,計算百分比至小數點後兩位;可能與實際交易有所落差,資料請斟酌參考。
為信義房屋最新成交行情;- 本實價登錄分類係綜合內政部實價登錄2020年7月之建物型態分類調整,以及申報登錄之建物型態、建物權狀登載之「主要用途」資料推估而成,故資料呈現類型、順序可能會與內政部不動產交易實價查詢服務網之搜尋結果有所差異,請斟酌參考。看看我們如何推估實價登錄類型與順序
- 特殊行情物件可能為受到特別條件或特殊關係影響所造成,詳情請參考頁面之粉色「備註資訊」欄。排除特殊交易功能,開啟後可即時排除顯示申報備註中關係人間交易、特殊交易情況及標的類型、與政府有關之交易、僅車位交易、分件登記、含多筆土地或多棟建物、 交易標的僅有建物、土地面積為0(含地上權物件),及其他備註資訊,關閉後則會恢復顯示。
- 歷史移轉次數依據信義成交行情及政府實價登錄資訊推估,再由系統比對當筆與前一筆實價登錄,交易明細完全吻合方計算漲跌幅,當筆交易漲跌幅計算式為(當筆交易之成交總價/前一筆交易之成交總價)-1,計算百分比至小數點後兩位;可能與實際交易有所落差,資料請斟酌參考。
查看實價登錄
本案專家

根據你的設定值計算
202,096/月


