
1/11
請注意,上方物件照片如有街景,為物件附近環境介紹,非物件本身。
1/11
有12人也在關注這間👀
本案專家

預約看屋
按下送出表示您已同意本站
服務條款
與隱私權聲明
送出
近文化中心五權街美透天
(1551UV)
高雄市苓雅區五權街
有12人也在關注這間👀
詳情
總價
998萬
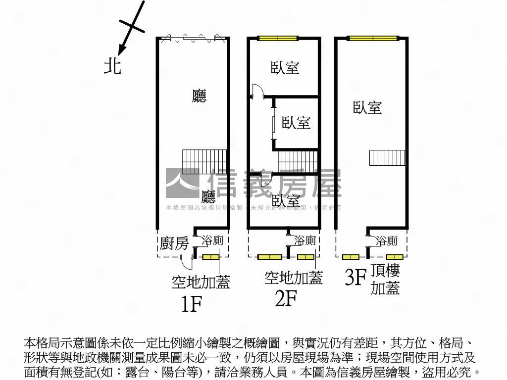
格局
4房2廳3衛
建坪
29.06坪
(主建物29.06坪)
類型
透天
樓層
1-2樓/2樓
建坪單價
34.34 萬/坪
屋齡
57.5年
地坪
23.75坪
地坪單價
--

SinyiCare十大守護 信義房屋購售屋服務保障
點擊觀看生活機能
捷運 (3)公車 (28)公共自行車 (3)停車場 (3)
0五權國小站 - 出口
9.3分鐘 / 667m
1衛生局站 - 出口
13.1分鐘 / 946m
2凱旋武昌站 - 出口
16.4分鐘 / 1173m
0五權國小站 - 出口
9.3分鐘 / 667m
1衛生局站 - 出口
13.1分鐘 / 946m
2凱旋武昌站 - 出口
16.4分鐘 / 1173m

SinyiCare十大守護 信義房屋購售屋服務保障
建坪
29.06坪
詳情
建坪單價
34.34 萬/坪
地坪
23.75坪
主建物
29.06坪
格局
3房2廳
加蓋格局
1房3衛
屋齡
57.5年
類型
透天
樓層
1-2樓/2樓
車位
--
邊間/暗房
否/是
建物朝向
東南
警衛管理
無
建物詳情
建物結構
加強磚造
外牆建材
二丁掛
每層戶數
1
謄本用途
住宅
使用分區
第三種住宅區;
注意事項
--
收合
物件特色
近三和市場生活便利
方正格局易規劃
面寬,採光佳
無夾層,好整理
汙水已完工
出動入靜單純街坊
低總價好成家
透天厝,有土斯有財
類似物件實價登錄(9)
距離該物件1公里內,半年內成交,別墅/透天
共有9間與我相似的實價登錄物件
編輯篩選條件
列表
地圖
年月
地址
類型/車位
總價
單價
建坪
地坪
屋齡
樓層
格局
114年09月

高雄市苓雅區林西街85巷5弄9號
別墅/透天
1,020萬
49.46萬
20.62坪
13.01坪
58.8年
1樓/2樓
8房8衛
歷史移轉2次
備註資訊:其他增建;
114年09月
別墅/透天高雄市苓雅區林西街85巷5弄9號移轉2次
1,020萬
49.46萬/坪
建坪20.62坪地坪13.01無車位
8房8衛58.8年1樓/2樓
8房8衛58.8年1樓/2樓
交易備註
114年08月

高雄市苓雅區光華二路440巷2號
別墅/透天
770萬
35.91萬
21.44坪
22.69坪
56.3年
1樓/2樓
6房2廳3衛
備註資訊:親友、員工、共有人或其他特殊關係間之交易;
114年08月
別墅/透天高雄市苓雅區光華二路440巷2號770萬
35.91萬/坪
建坪21.44坪地坪22.69無車位
6房2廳3衛56.3年1樓/2樓
6房2廳3衛56.3年1樓/2樓
交易備註
114年07月

高雄市苓雅區廣州一街106巷7號
別墅/透天
106萬
17.04萬
6.22坪
4.33坪
53.3年
1樓/2樓
3房1廳2衛
備註資訊:親友、員工、共有人或其他特殊關係間之交易;
114年07月
別墅/透天高雄市苓雅區廣州一街106巷7號106萬
17.04萬/坪
建坪6.22坪地坪4.33無車位
3房1廳2衛53.3年1樓/2樓
3房1廳2衛53.3年1樓/2樓
交易備註
114年12月

高雄市苓雅區福德三路21巷56號
別墅/透天
281萬
13.39萬
21.01坪
15.13坪
53.8年
1樓/2樓
3房1廳2衛
備註資訊:親友、員工、共有人或其他特殊關係間之交易;未登記建物;
114年12月
別墅/透天高雄市苓雅區福德三路21巷56號281萬
13.39萬/坪
建坪21.01坪地坪15.13無車位
3房1廳2衛53.8年1樓/2樓
3房1廳2衛53.8年1樓/2樓
交易備註
- 資料來源:
為信義房屋最新成交行情;
為內政部最新公布的實價登錄資料;
該數值為系統運算,詳細請看說明
- 本實價登錄分類係綜合內政部實價登錄2020年7月之建物型態分類調整,以及申報登錄之建物型態、建物權狀登載之「主要用途」資料推估而成,故資料呈現類型、順序可能會與內政部不動產交易實價查詢服務網之搜尋結果有所差異,請斟酌參考。看看我們如何推估實價登錄類型與順序
- 特殊行情物件可能為受到特別條件或特殊關係影響所造成,詳情請參考頁面之粉色「備註資訊」欄。排除特殊交易功能,開啟後可即時排除顯示申報備註中關係人間交易、特殊交易情況及標的類型、與政府有關之交易、僅車位交易、分件登記、含多筆土地或多棟建物、 交易標的僅有建物、土地面積為0(含地上權物件),及其他備註資訊,關閉後則會恢復顯示。
- 歷史移轉次數依據信義成交行情及政府實價登錄資訊推估,再由系統比對當筆與前一筆實價登錄,交易明細完全吻合方計算漲跌幅,當筆交易漲跌幅計算式為(當筆交易之成交總價/前一筆交易之成交總價)-1,計算百分比至小數點後兩位;可能與實際交易有所落差,資料請斟酌參考。
為信義房屋最新成交行情;- 本實價登錄分類係綜合內政部實價登錄2020年7月之建物型態分類調整,以及申報登錄之建物型態、建物權狀登載之「主要用途」資料推估而成,故資料呈現類型、順序可能會與內政部不動產交易實價查詢服務網之搜尋結果有所差異,請斟酌參考。看看我們如何推估實價登錄類型與順序
- 特殊行情物件可能為受到特別條件或特殊關係影響所造成,詳情請參考頁面之粉色「備註資訊」欄。排除特殊交易功能,開啟後可即時排除顯示申報備註中關係人間交易、特殊交易情況及標的類型、與政府有關之交易、僅車位交易、分件登記、含多筆土地或多棟建物、 交易標的僅有建物、土地面積為0(含地上權物件),及其他備註資訊,關閉後則會恢復顯示。
- 歷史移轉次數依據信義成交行情及政府實價登錄資訊推估,再由系統比對當筆與前一筆實價登錄,交易明細完全吻合方計算漲跌幅,當筆交易漲跌幅計算式為(當筆交易之成交總價/前一筆交易之成交總價)-1,計算百分比至小數點後兩位;可能與實際交易有所落差,資料請斟酌參考。
查看實價登錄
本案專家

根據你的設定值計算
50,676/月


