
1/12












請注意,上方物件照片如有街景,為物件附近環境介紹,非物件本身。
1/12
非信義物件
有3人也在關注這間👀
中信房屋-台南小北加盟店(彩旭房屋仲介有限公司)
06-2812-777
臺南市北區西門路4段462號
本物件非信義房屋受託銷售,各項責任(包括但不限於廣告真實性及仲介義務等)概由各該受託業者自行負責,不屬信義房屋控制及負責範圍。
預約看屋
按下送出表示您已同意本站
服務條款
與隱私權聲明
送出
此為其他仲介業者物件

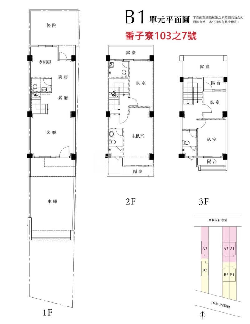
番子寮雙併三車墅B1
非信義物件(2069316CT)
台南市佳里區番子寮路
有3人也在關注這間👀
詳情
總價
1,388萬
格局
4房2廳4衛
建坪
43.18坪
(主+陽43.18坪)
類型
別墅/透天
樓層
1-3樓/3樓
建坪單價
32.14萬/坪
屋齡
2.5年
地坪
48.06坪
地坪單價
--
基本資料

建坪
43.18坪
詳情
建坪單價
32.14萬/坪
地坪
48.06坪
主+陽
43.18坪
格局
4房2廳4衛
加蓋格局
--
屋齡
2.5年
類型
別墅/透天
樓層
1-3樓/3樓
車位
--
邊間/暗房
--/--
大門朝向
北
警衛管理
無
建物詳情
建物結構
--
外牆建材
--
每層戶數
--
謄本用途
--
使用分區
--
注意事項
--
收合
物件特色
PS:土地含前方私人持分交通用地4.85坪
1.近佳里市區,大全聯佳里店量販店,購物方便
2.佳里工業區2KM,8KM直達麻豆交流道,近南科
3.雙主臥&浴室皆有對外窗,邊間採光通風佳
4.大氣門面,房房皆有陽台,南北利王座向
5.車庫可停放三部汽車,停車免煩惱
類似物件實價登錄(7)
距離該物件1公里內,半年內成交,別墅/透天
共有7間與我相似的實價登錄物件
編輯篩選條件
列表
地圖
年月
地址
類型/車位
總價
單價
建坪
地坪
屋齡
樓層
格局
114年10月

台南市佳里區番子寮178之21號
別墅/透天
1,210萬
26.15萬
46.27坪
33.27坪
0.9年
1樓/3樓
4房2廳3衛
114年10月
別墅/透天台南市佳里區番子寮178之21號1,210萬
26.15萬/坪
建坪46.27坪地坪33.27無車位
4房2廳3衛0.9年1樓/3樓
4房2廳3衛0.9年1樓/3樓
114年11月

台南市佳里區番子寮103之6號
別墅/透天
1,250萬
27.14萬
46.05坪
48.98坪
2.3年
1樓/3樓
4房3廳4衛
114年11月
別墅/透天台南市佳里區番子寮103之6號1,250萬
27.14萬/坪
建坪46.05坪地坪48.98無車位
4房3廳4衛2.3年1樓/3樓
4房3廳4衛2.3年1樓/3樓
114年10月

台南市佳里區番子寮23之7號
別墅/透天
1,300萬
28.31萬
45.92坪
28.13坪
0.8年
1樓/3樓
3房2廳3衛
114年10月
別墅/透天台南市佳里區番子寮23之7號1,300萬
28.31萬/坪
建坪45.92坪地坪28.13無車位
3房2廳3衛0.8年1樓/3樓
3房2廳3衛0.8年1樓/3樓
114年10月

台南市佳里區番子寮23之8號
別墅/透天
1,300萬
29.46萬
44.13坪
26.62坪
0.8年
1樓/3樓
3房2廳3衛
114年10月
別墅/透天台南市佳里區番子寮23之8號1,300萬
29.46萬/坪
建坪44.13坪地坪26.62無車位
3房2廳3衛0.8年1樓/3樓
3房2廳3衛0.8年1樓/3樓
114年09月

台南市佳里區番子寮39之7號
別墅/透天
912萬
22.45萬
40.62坪
29.48坪
0.4年
1樓/3樓
4房2廳3衛
114年09月
別墅/透天台南市佳里區番子寮39之7號912萬
22.45萬/坪
建坪40.62坪地坪29.48無車位
4房2廳3衛0.4年1樓/3樓
4房2廳3衛0.4年1樓/3樓
- 資料來源:
為信義房屋最新成交行情;
為內政部最新公布的實價登錄資料;
該數值為系統運算,詳細請看說明
- 本實價登錄分類係綜合內政部實價登錄2020年7月之建物型態分類調整,以及申報登錄之建物型態、建物權狀登載之「主要用途」資料推估而成,故資料呈現類型、順序可能會與內政部不動產交易實價查詢服務網之搜尋結果有所差異,請斟酌參考。看看我們如何推估實價登錄類型與順序
- 特殊行情物件可能為受到特別條件或特殊關係影響所造成,詳情請參考頁面之粉色「備註資訊」欄。排除特殊交易功能,開啟後可即時排除顯示申報備註中關係人間交易、特殊交易情況及標的類型、與政府有關之交易、僅車位交易、分件登記、含多筆土地或多棟建物、 交易標的僅有建物、土地面積為0(含地上權物件),及其他備註資訊,關閉後則會恢復顯示。
- 歷史移轉次數依據信義成交行情及政府實價登錄資訊推估,再由系統比對當筆與前一筆實價登錄,交易明細完全吻合方計算漲跌幅,當筆交易漲跌幅計算式為(當筆交易之成交總價/前一筆交易之成交總價)-1,計算百分比至小數點後兩位;可能與實際交易有所落差,資料請斟酌參考。
為信義房屋最新成交行情;- 本實價登錄分類係綜合內政部實價登錄2020年7月之建物型態分類調整,以及申報登錄之建物型態、建物權狀登載之「主要用途」資料推估而成,故資料呈現類型、順序可能會與內政部不動產交易實價查詢服務網之搜尋結果有所差異,請斟酌參考。看看我們如何推估實價登錄類型與順序
- 特殊行情物件可能為受到特別條件或特殊關係影響所造成,詳情請參考頁面之粉色「備註資訊」欄。排除特殊交易功能,開啟後可即時排除顯示申報備註中關係人間交易、特殊交易情況及標的類型、與政府有關之交易、僅車位交易、分件登記、含多筆土地或多棟建物、 交易標的僅有建物、土地面積為0(含地上權物件),及其他備註資訊,關閉後則會恢復顯示。
- 歷史移轉次數依據信義成交行情及政府實價登錄資訊推估,再由系統比對當筆與前一筆實價登錄,交易明細完全吻合方計算漲跌幅,當筆交易漲跌幅計算式為(當筆交易之成交總價/前一筆交易之成交總價)-1,計算百分比至小數點後兩位;可能與實際交易有所落差,資料請斟酌參考。
查看實價登錄
根據你的設定值計算
70,480/月


