
1/22
請注意,上方物件照片如有街景,為物件附近環境介紹,非物件本身。
1/22
有244人也在關注這間👀
本案專家

預約看屋
按下送出表示您已同意本站
服務條款
與隱私權聲明
送出
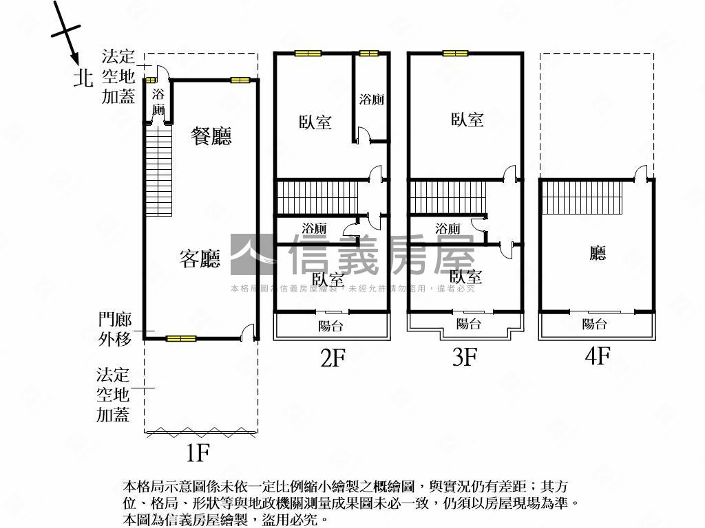
鳳凰路全新未入住美別墅A
(2595UY)
台中市大里區鳳凰路
有244人也在關注這間👀
詳情
總價
2,478萬
2688萬
格局
4房3廳4衛
建坪
58.42坪
(主+陽58.41坪)
類型
透天
樓層
1-4樓/4樓
建坪單價
42.42 萬/坪
屋齡
2.2年
地坪
26.09坪
地坪單價
--

SinyiCare十大守護 信義房屋購售屋服務保障

點擊觀看生活機能
公車 (8)
0鳳凰路182巷口
2.9分鐘 / 217m
1鳳凰路182巷口
3.3分鐘 / 241m
2太平親子館
4.3分鐘 / 320m
3太平親子館
4.9分鐘 / 359m
4光正國中
7.5分鐘 / 564m
5光正國中
7.7分鐘 / 579m
6宏巨社區
11.9分鐘 / 898m
7宏巨社區
11.8分鐘 / 887m
0鳳凰路182巷口
2.9分鐘 / 217m
1鳳凰路182巷口
3.3分鐘 / 241m
2太平親子館
4.3分鐘 / 320m
3太平親子館
4.9分鐘 / 359m
4光正國中
7.5分鐘 / 564m
觀看全部

SinyiCare十大守護 信義房屋購售屋服務保障
建坪
58.42坪
詳情
建坪單價
42.42 萬/坪
地坪
26.09坪
主+陽
58.41坪=
主建物
55.52坪+
陽台
2.89坪
格局
4房3廳4衛
加蓋格局
--
屋齡
2.2年
類型
透天
樓層
1-4樓/4樓
車位
--
邊間/暗房
否/否
建物朝向
東北
大門朝向
東北
落地窗朝向
東北
警衛管理
無
建物詳情
建物結構
鋼筋混凝土
外牆建材
二丁掛
每層戶數
1
謄本用途
住宅、門廊
使用分區
鄉村區乙種建築用地;
注意事項
--
收合
物件特色
全新未入住
格局方正好規劃
空間大好使用
採光通風佳
德國進口名牌廚具、衛浴
美輪美奐,漂亮別墅
買方服務費成交總價1%
網路預約,專人服務
類似物件實價登錄(7)
距離該物件1公里內,半年內成交,別墅/透天
共有7間與我相似的實價登錄物件
編輯篩選條件
列表
地圖
年月
地址
類型/車位
總價
單價
建坪
地坪
屋齡
樓層
格局
114年08月

台中市太平區德明路137巷13弄18號
別墅/透天
600萬
21.18萬
28.33坪
29.12坪
45.7年
1樓/2樓
6房3廳2衛
歷史移轉2次
114年08月
別墅/透天台中市太平區德明路137巷13弄18號移轉2次
600萬
21.18萬/坪
建坪28.33坪地坪29.12無車位
6房3廳2衛45.7年1樓/2樓
6房3廳2衛45.7年1樓/2樓
114年08月

台中市大里區仁化工二路5巷13號
別墅/透天
2,570萬
36.54萬
70.33坪
25.37坪
1.0年
1樓/5樓
4房3廳5衛
114年08月
別墅/透天台中市大里區仁化工二路5巷13號2,570萬
36.54萬/坪
建坪70.33坪地坪25.37無車位
4房3廳5衛1.0年1樓/5樓
4房3廳5衛1.0年1樓/5樓
114年07月

台中市大里區仁化工二路5巷17號
別墅/透天
2,560萬
36.4萬
70.33坪
25.38坪
0.9年
1樓/5樓
4房3廳5衛
114年07月
別墅/透天台中市大里區仁化工二路5巷17號2,560萬
36.4萬/坪
建坪70.33坪地坪25.38無車位
4房3廳5衛0.9年1樓/5樓
4房3廳5衛0.9年1樓/5樓
備註資訊:其他增建;
1,050萬
20.76萬/坪
建坪50.58坪地坪20.91無車位
5房3廳3衛26.1年1樓/4樓
5房3廳3衛26.1年1樓/4樓
交易備註
114年11月

台中市太平區光興路438巷30號
別墅/透天
800萬
40.48萬
19.76坪
45.32坪
44.3年
1樓/1樓
0衛
歷史移轉2次
備註資訊:其他增建;
114年11月
別墅/透天台中市太平區光興路438巷30號移轉2次
800萬
40.48萬/坪
建坪19.76坪地坪45.32無車位
0衛44.3年1樓/1樓
0衛44.3年1樓/1樓
交易備註
- 資料來源:
為信義房屋最新成交行情;
為內政部最新公布的實價登錄資料;
該數值為系統運算,詳細請看說明
- 本實價登錄分類係綜合內政部實價登錄2020年7月之建物型態分類調整,以及申報登錄之建物型態、建物權狀登載之「主要用途」資料推估而成,故資料呈現類型、順序可能會與內政部不動產交易實價查詢服務網之搜尋結果有所差異,請斟酌參考。看看我們如何推估實價登錄類型與順序
- 特殊行情物件可能為受到特別條件或特殊關係影響所造成,詳情請參考頁面之粉色「備註資訊」欄。排除特殊交易功能,開啟後可即時排除顯示申報備註中關係人間交易、特殊交易情況及標的類型、與政府有關之交易、僅車位交易、分件登記、含多筆土地或多棟建物、 交易標的僅有建物、土地面積為0(含地上權物件),及其他備註資訊,關閉後則會恢復顯示。
- 歷史移轉次數依據信義成交行情及政府實價登錄資訊推估,再由系統比對當筆與前一筆實價登錄,交易明細完全吻合方計算漲跌幅,當筆交易漲跌幅計算式為(當筆交易之成交總價/前一筆交易之成交總價)-1,計算百分比至小數點後兩位;可能與實際交易有所落差,資料請斟酌參考。
為信義房屋最新成交行情;- 本實價登錄分類係綜合內政部實價登錄2020年7月之建物型態分類調整,以及申報登錄之建物型態、建物權狀登載之「主要用途」資料推估而成,故資料呈現類型、順序可能會與內政部不動產交易實價查詢服務網之搜尋結果有所差異,請斟酌參考。看看我們如何推估實價登錄類型與順序
- 特殊行情物件可能為受到特別條件或特殊關係影響所造成,詳情請參考頁面之粉色「備註資訊」欄。排除特殊交易功能,開啟後可即時排除顯示申報備註中關係人間交易、特殊交易情況及標的類型、與政府有關之交易、僅車位交易、分件登記、含多筆土地或多棟建物、 交易標的僅有建物、土地面積為0(含地上權物件),及其他備註資訊,關閉後則會恢復顯示。
- 歷史移轉次數依據信義成交行情及政府實價登錄資訊推估,再由系統比對當筆與前一筆實價登錄,交易明細完全吻合方計算漲跌幅,當筆交易漲跌幅計算式為(當筆交易之成交總價/前一筆交易之成交總價)-1,計算百分比至小數點後兩位;可能與實際交易有所落差,資料請斟酌參考。
查看實價登錄
本案專家

根據你的設定值計算
125,828/月


