
請注意,上方物件照片如有街景,為物件附近環境介紹,非物件本身。
1/16
有333人也在關注這間👀
本案專家
更多挑選
按下按鈕表示您已同意本站
服務條款
與隱私權聲明
預約看屋
近南紡精緻美居
(3338ZW)
台南市東區凱旋路
有333人也在關注這間👀
總價
998萬
建坪單價
24.34 萬/坪
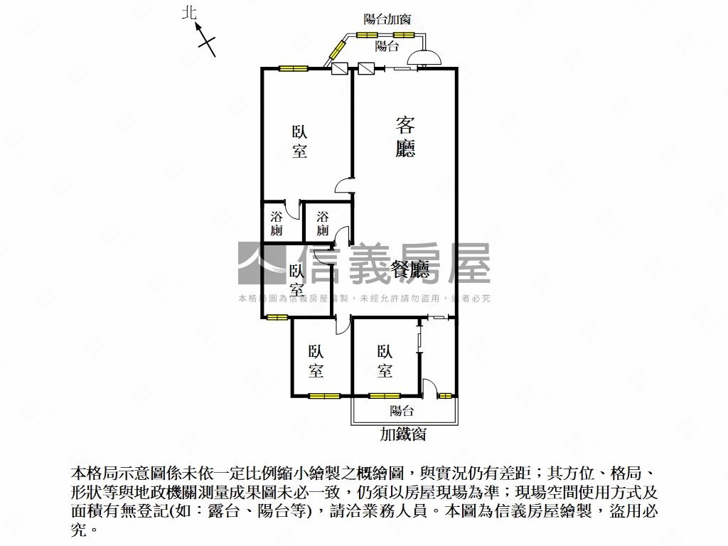
格局
4房2廳2衛
房貸試算
計算
元/月
年|利率%概算|undefined年寬限期
符合首購資格嗎?
坪數詳情
細項
建坪41.01
主+陽35.25
地坪11.04
類型公寓
屋齡41.4年
樓層3樓/5樓
加蓋格局--
謄本用途住家用
使用分區見土地使用分區證明影本;
完整物件詳情
本案專家
更多挑選
物件特色
後甲東光明星學區
前後陽台通風佳
簡約裝潢輕鬆入住
一層二戶住戶單純
鄰近平實生活圈
鄰近南紡購物中心
地下室方便停機車
買方服務費成交價1%
周邊生活機能


SinyiCare十大守護 信義房屋購售屋服務保障
點擊觀看生活機能
公車 (8)
停車場 (4)
0凱旋路
2.6分鐘 / 192m
1大鵬新城
3.1分鐘 / 224m
2大鵬新城
3.3分鐘 / 236m
3凱旋路
3.1分鐘 / 228m
4東明里
6.8分鐘 / 483m
5東明里
7.1分鐘 / 508m
6東寧路東光路口
7.8分鐘 / 564m
7東寧路東光路口
8.2分鐘 / 593m
0凱旋路
2.6分鐘 / 192m
1大鵬新城
3.1分鐘 / 224m
2大鵬新城
3.3分鐘 / 236m
3凱旋路
3.1分鐘 / 228m
4東明里
6.8分鐘 / 483m
完整周邊生活圈


SinyiCare十大守護 信義房屋購售屋服務保障
類似物件實價登錄
(21)
1公里內 | 半年內 | 公寓
3房2廳2衛
|36.16坪
|無車位
680萬18.8萬/坪
114/11成交
3房2廳2衛
|36.56坪
|無車位
430萬11.76萬/坪
114/10成交


