
1/17
請注意,上方物件照片如有街景,為物件附近環境介紹,非物件本身。
1/17
有69人也在關注這間👀
本案專家

預約看屋
按下送出表示您已同意本站
服務條款
與隱私權聲明
送出
仁雄商圈臨路透天
(4390TU)
高雄市仁武區仁忠六街
有69人也在關注這間👀
詳情
總價
1,760萬
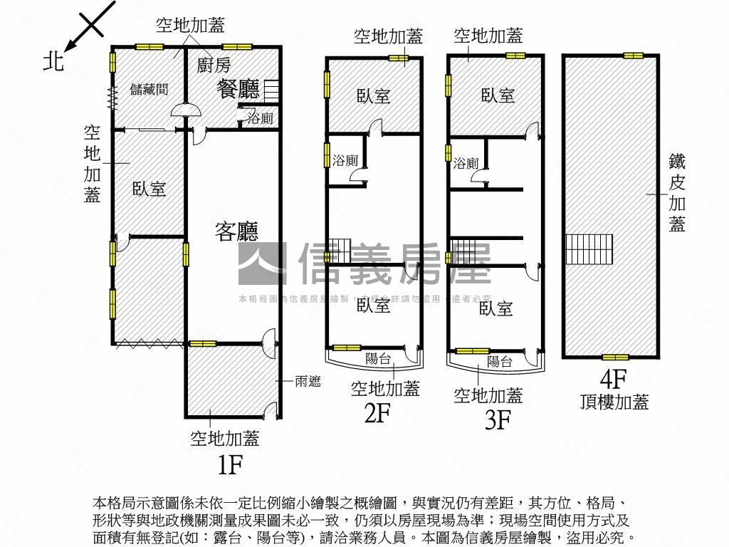
格局
5房2廳3衛
建坪
30.75坪
(主建物30.75坪)
類型
透天
樓層
1-3樓/3樓
建坪單價
57.24 萬/坪
屋齡
45.0年
地坪
29.44坪
地坪單價
--

SinyiCare十大守護 信義房屋購售屋服務保障

點擊觀看生活機能
公車 (10)停車場 (1)
0登發國小
2.7分鐘 / 201m
1登發國小
2.6分鐘 / 194m
2考潭
6.4分鐘 / 464m
3考潭
5.1分鐘 / 378m
4灣子內(仁武)
5.8分鐘 / 423m
5仁忠路口
6.4分鐘 / 467m
6仁忠路口
6.6分鐘 / 476m
7灣子內(仁武)
6.2分鐘 / 451m
8仁和公園
7.2分鐘 / 516m
9仁和公園
6.9分鐘 / 500m
0登發國小
2.7分鐘 / 201m
1登發國小
2.6分鐘 / 194m
2考潭
6.4分鐘 / 464m
3考潭
5.1分鐘 / 378m
4灣子內(仁武)
5.8分鐘 / 423m
觀看全部

SinyiCare十大守護 信義房屋購售屋服務保障
建坪
30.75坪
詳情
建坪單價
57.24 萬/坪
地坪
29.44坪
主建物
30.75坪
格局
2房1廳2衛
加蓋格局
3房1廳1衛
屋齡
45.0年
類型
透天
樓層
1-3樓/3樓
車位
--
邊間/暗房
是/否
建物朝向
西北
大門朝向
西北
落地窗朝向
西北
警衛管理
無
建物詳情
建物結構
鋼筋混凝土
外牆建材
二丁掛
每層戶數
1
謄本用途
住家用
使用分區
見土地使用分區證明影本;
注意事項
--
收合
物件特色
稀有釋出三角窗
十大守護,安心購
格局方正好規劃
近登發市場仁雄商圈
面寬氣派透天
邊間採光好通風佳
邊間格局方正動線佳
買方服務費 成交價1%
類似物件實價登錄(24)
距離該物件1公里內,半年內成交,別墅/透天
共有24間與我相似的實價登錄物件
編輯篩選條件
列表
地圖
年月
地址
類型/車位
總價
單價
建坪
地坪
屋齡
樓層
格局
114年12月


澄合一街55巷8號
別墅/透天
有車位
1,090萬
含車位價
含車位價
24.96萬
含車位計算
含車位計算
43.67坪
含車位0坪
含車位0坪
22.07坪
31.5年
1樓/4樓
5房2廳2衛
114年12月
別墅/透天澄合一街55巷8號1,090萬
含車位價
24.96萬/坪
含車位計算
建坪43.67坪(含車位0坪)地坪22.07有車位
5房2廳2衛31.5年1樓/4樓
5房2廳2衛31.5年1樓/4樓
信義成交114年12月

高雄市仁武區綠園新村24號
別墅/透天
435萬
41.06萬
10.59坪
29.97坪
48.9年
1樓/2樓
5房2廳5衛
歷史移轉4次
備註資訊:親友、員工、共有人或其他特殊關係間之交易;
114年12月
別墅/透天高雄市仁武區綠園新村24號移轉4次
435萬
41.06萬/坪
建坪10.59坪地坪29.97無車位
5房2廳5衛48.9年1樓/2樓
5房2廳5衛48.9年1樓/2樓
交易備註
114年12月

高雄市仁武區澄合一街55巷8號
別墅/透天
1,090萬
24.96萬
43.67坪
22.07坪
31.5年
1樓/4樓
6房2廳3衛
備註資訊:其他增建;
114年12月
別墅/透天高雄市仁武區澄合一街55巷8號1,090萬
24.96萬/坪
建坪43.67坪地坪22.07無車位
6房2廳3衛31.5年1樓/4樓
6房2廳3衛31.5年1樓/4樓
交易備註
114年09月

高雄市仁武區仁山二街50之3號
別墅/透天
820萬
18.74萬
43.76坪
16.85坪
33.1年
1樓/4樓
4房2廳3衛
114年09月
別墅/透天高雄市仁武區仁山二街50之3號820萬
18.74萬/坪
建坪43.76坪地坪16.85無車位
4房2廳3衛33.1年1樓/4樓
4房2廳3衛33.1年1樓/4樓
114年07月

高雄市仁武區仁雄路16之23號
別墅/透天
1,200萬
15.29萬
78.49坪
26.54坪
30.5年
1樓/5樓
5房2廳4衛
備註資訊:親友、員工、共有人或其他特殊關係間之交易;其他增建;
114年07月
別墅/透天高雄市仁武區仁雄路16之23號1,200萬
15.29萬/坪
建坪78.49坪地坪26.54無車位
5房2廳4衛30.5年1樓/5樓
5房2廳4衛30.5年1樓/5樓
交易備註
- 資料來源:
為信義房屋最新成交行情;
為內政部最新公布的實價登錄資料;
該數值為系統運算,詳細請看說明
- 本實價登錄分類係綜合內政部實價登錄2020年7月之建物型態分類調整,以及申報登錄之建物型態、建物權狀登載之「主要用途」資料推估而成,故資料呈現類型、順序可能會與內政部不動產交易實價查詢服務網之搜尋結果有所差異,請斟酌參考。看看我們如何推估實價登錄類型與順序
- 特殊行情物件可能為受到特別條件或特殊關係影響所造成,詳情請參考頁面之粉色「備註資訊」欄。排除特殊交易功能,開啟後可即時排除顯示申報備註中關係人間交易、特殊交易情況及標的類型、與政府有關之交易、僅車位交易、分件登記、含多筆土地或多棟建物、 交易標的僅有建物、土地面積為0(含地上權物件),及其他備註資訊,關閉後則會恢復顯示。
- 歷史移轉次數依據信義成交行情及政府實價登錄資訊推估,再由系統比對當筆與前一筆實價登錄,交易明細完全吻合方計算漲跌幅,當筆交易漲跌幅計算式為(當筆交易之成交總價/前一筆交易之成交總價)-1,計算百分比至小數點後兩位;可能與實際交易有所落差,資料請斟酌參考。
為信義房屋最新成交行情;- 本實價登錄分類係綜合內政部實價登錄2020年7月之建物型態分類調整,以及申報登錄之建物型態、建物權狀登載之「主要用途」資料推估而成,故資料呈現類型、順序可能會與內政部不動產交易實價查詢服務網之搜尋結果有所差異,請斟酌參考。看看我們如何推估實價登錄類型與順序
- 特殊行情物件可能為受到特別條件或特殊關係影響所造成,詳情請參考頁面之粉色「備註資訊」欄。排除特殊交易功能,開啟後可即時排除顯示申報備註中關係人間交易、特殊交易情況及標的類型、與政府有關之交易、僅車位交易、分件登記、含多筆土地或多棟建物、 交易標的僅有建物、土地面積為0(含地上權物件),及其他備註資訊,關閉後則會恢復顯示。
- 歷史移轉次數依據信義成交行情及政府實價登錄資訊推估,再由系統比對當筆與前一筆實價登錄,交易明細完全吻合方計算漲跌幅,當筆交易漲跌幅計算式為(當筆交易之成交總價/前一筆交易之成交總價)-1,計算百分比至小數點後兩位;可能與實際交易有所落差,資料請斟酌參考。
查看實價登錄
本案專家

根據你的設定值計算
89,369/月


