
請注意,上方物件照片如有街景,為物件附近環境介紹,非物件本身。
1/17
有1698人也在關注這間👀
本案專家
更多挑選
按下按鈕表示您已同意本站
服務條款
與隱私權聲明
預約看屋
典雅裝潢並排面寬雙車墅
(4407XR)
高雄市仁武區大春二街
有1698人也在關注這間👀
總價
2,080萬
2,200萬
含車位價
建坪單價
本物件含車位及加蓋,詳洽經紀人員
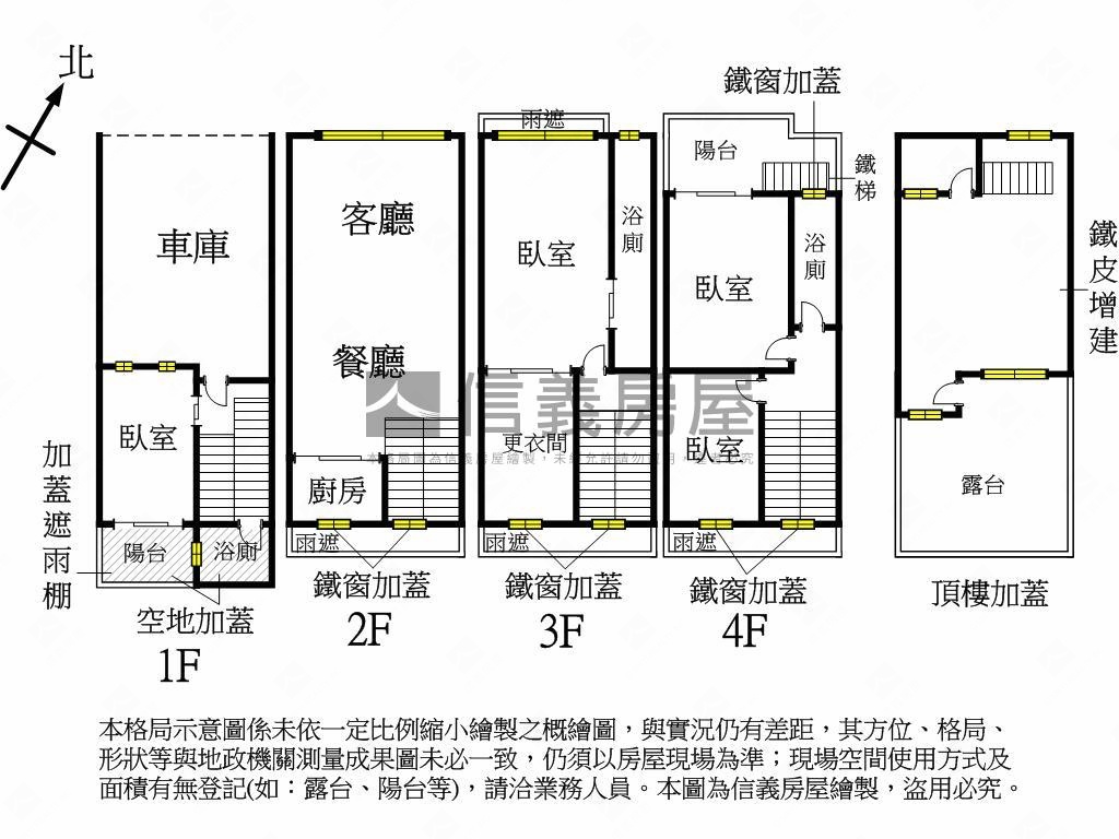
格局
4房2廳3衛
含加蓋1衛
房貸試算
計算
元/月
年|利率%概算|undefined年寬限期
符合首購資格嗎?
坪數詳情
細項
建坪59
主+陽(含其他)59
地坪25.24
類型別墅/透天
屋齡14.2年
樓層1-4樓/4樓
加蓋格局1衛
謄本用途停車空間、集合住宅
使用分區見土地使用分區證明影本;
完整物件詳情
本案專家
更多挑選
物件特色
稀有大面寬車庫別墅
近市區採買便利
仁雄商圈機能方便
屋況精美即可入住
間間房間開窗採光佳
買方服務費成交價之1%
周邊生活機能


SinyiCare十大守護 信義房屋購售屋服務保障
點擊觀看生活機能
公車 (5)
停車場 (1)
0極限公園
4.8分鐘 / 345m
1極限公園
4.6分鐘 / 332m
2後備指揮部
7.6分鐘 / 549m
3後備指揮部
8分鐘 / 569m
4京富京文街口
9.7分鐘 / 697m
0極限公園
4.8分鐘 / 345m
1極限公園
4.6分鐘 / 332m
2後備指揮部
7.6分鐘 / 549m
3後備指揮部
8分鐘 / 569m
4京富京文街口
9.7分鐘 / 697m


SinyiCare十大守護 信義房屋購售屋服務保障
類似物件實價登錄
(8)
1公里內 | 半年內 | 別墅/透天
4房2廳3衛
|62.7坪
|無車位
2,040萬32.53萬/坪
115/01成交
4房3廳4衛
|69.51坪
|無車位
2,318萬33.35萬/坪
114/12成交


