
請注意,上方物件照片如有街景,為物件附近環境介紹,非物件本身。
1/20
有9人也在關注這間👀
本案專家
更多挑選
按下按鈕表示您已同意本站
服務條款
與隱私權聲明
預約看屋
龜山中興路金店面
(4743XB)
桃園市龜山區中興路
有9人也在關注這間👀
總價
5,888萬
建坪單價
60.85 萬/坪
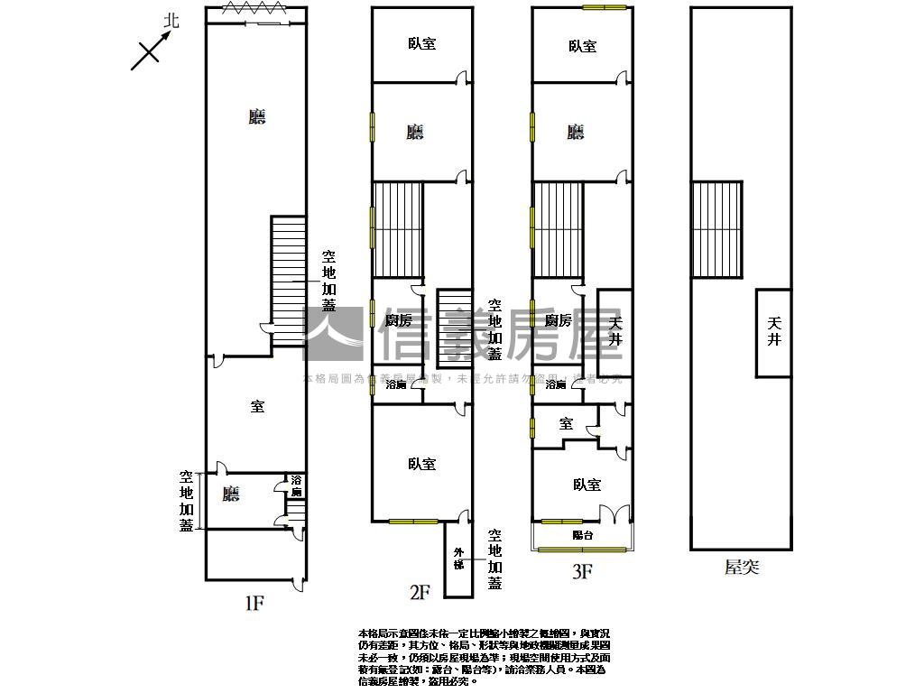
格局
4房4廳3衛2室
含加蓋1廳1衛
房貸試算
計算
元/月
年|利率%概算|undefined年寬限期
符合首購資格嗎?
坪數詳情
細項
建坪96.76
主建物96.76
地坪45.38
類型店面
屋齡57.9年
樓層1-3樓/3樓
加蓋格局1廳1衛
謄本用途住家用
使用分區見土地使用分區證明影本;
完整物件詳情
本案專家
更多挑選
物件特色
龜山後街,核心地帶
人潮車潮,前景看好
適合文市,群聚效應
稀有釋出,專人服務
門庭若市,錢潮亦來
有內外梯,隱私感佳
樓下店面,樓上小憩
廣告效應,附加價值
周邊生活機能


SinyiCare十大守護 信義房屋購售屋服務保障
點擊觀看生活機能
公車 (33)
公共自行車 (2)
停車場 (7)
0中興路中山街口
0.8分鐘 / 57m
1龜山區公所
2分鐘 / 145m
2龜山區公所
2分鐘 / 149m
3萬壽中興路口
4.1分鐘 / 288m
4萬壽中興路口
4.1分鐘 / 288m
5龜山後街
3.4分鐘 / 234m
6龜山國小
3.8分鐘 / 270m
7龜山農會
3.9分鐘 / 283m
8龜山農會
4.2分鐘 / 303m
9新興市場
3分鐘 / 223m
A龜山分局
4.3分鐘 / 317m
B龜山
4.4分鐘 / 309m
C中華街口
4.2分鐘 / 311m
D中華街口
4.2分鐘 / 311m
E龜山分局
4.3分鐘 / 317m
F陸光二村
5.2分鐘 / 373m
G龜山後街
4.1分鐘 / 284m
H龜山國小
4.1分鐘 / 284m
I龜山
5.2分鐘 / 344m
J陸光二村
6.2分鐘 / 423m
K自強南路
6分鐘 / 444m
L大同路口
6.2分鐘 / 442m
M壽山高中(中興路)
5.7分鐘 / 405m
N永和街口
7.5分鐘 / 513m
O大同路口
6.7分鐘 / 474m
P中興路口
5.7分鐘 / 416m
Q永和街口
7.4分鐘 / 502m
R中興路口
5.8分鐘 / 419m
S壽山高中
6.6分鐘 / 460m
T壽山高中
6.6分鐘 / 459m
U貿商社區
5.9分鐘 / 420m
V貿商社區
6.5分鐘 / 474m
W壽山
8.6分鐘 / 581m
0中興路中山街口
0.8分鐘 / 57m
1龜山區公所
2分鐘 / 145m
2龜山區公所
2分鐘 / 149m
3萬壽中興路口
4.1分鐘 / 288m
4萬壽中興路口
4.1分鐘 / 288m
完整周邊生活圈


SinyiCare十大守護 信義房屋購售屋服務保障
類似物件實價登錄
(10)
1公里內 | 半年內 | 店面
6房1廳3衛
|84.51坪
|無車位
948萬11.22萬/坪
114/10成交
3房1廳1衛
|10.45坪
|無車位
244萬23.36萬/坪
115/01成交


