
請注意,上方物件照片如有街景,為物件附近環境介紹,非物件本身。
1/22
有13人也在關注這間👀
本案專家
更多挑選
按下按鈕表示您已同意本站
服務條款
與隱私權聲明
預約看屋
青年二路大面寬潛力店霸
(5681YH)
高雄市苓雅區青年二路
有13人也在關注這間👀
總價
12,500萬
含車位價
建坪單價
本物件含車位及加蓋,詳洽經紀人員
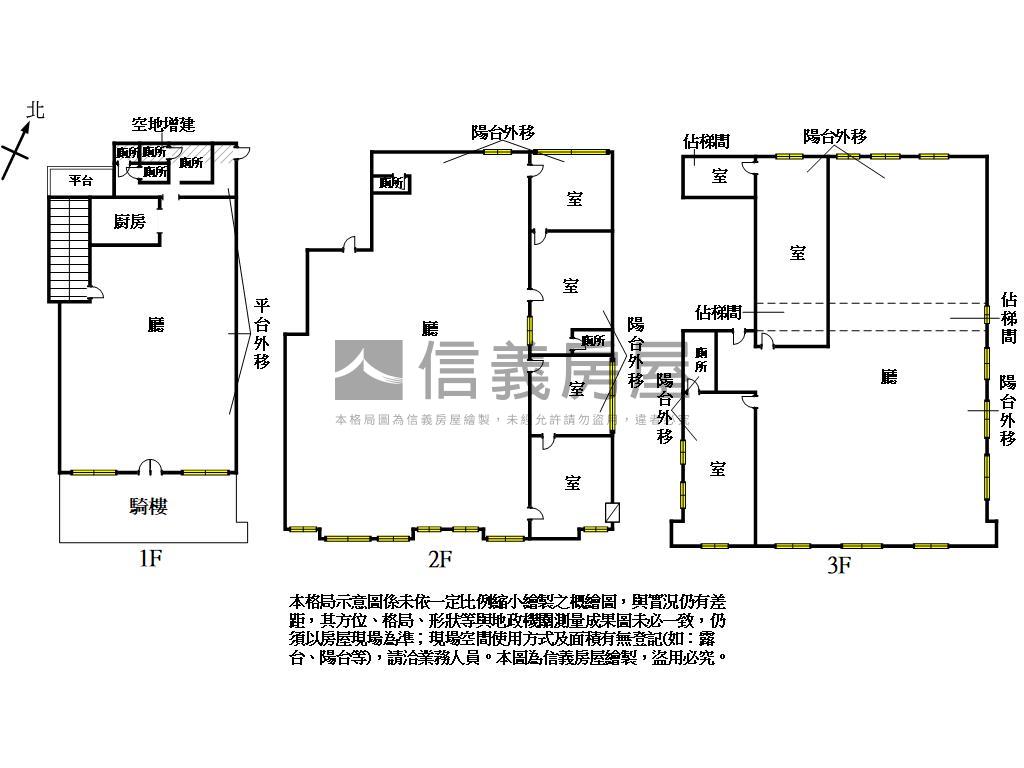
格局
3廳3.5衛7室
含加蓋1衛1室
房貸試算
計算
元/月
年|利率%概算|undefined年寬限期
符合首購資格嗎?
坪數詳情
細項
建坪300.22
主+陽(含其他)223.96
地坪28.37
類型店面
屋齡35.0年
樓層1-3樓/12樓
管理費
約14,020 元/月
加蓋格局1衛1室
謄本用途店舖、集合住宅
使用分區第五種商業區;
完整物件詳情
本案專家
更多挑選
物件特色
輕軌便利方便
使用空間大好規劃
灣區活動人潮多
雙車位停車好方便
亞洲新灣區未來可期
地理位置良好機能佳
漢神百貨步行約4分鐘
超級店霸值得擁有
周邊生活機能


SinyiCare十大守護 信義房屋購售屋服務保障
點擊觀看生活機能
捷運 (7)
公車 (17)
公共自行車 (2)
停車場 (7)
0光榮碼頭站 - 出口
3.2分鐘 / 200m
1真愛碼頭站 - 出口
10.1分鐘 / 730m
2旅運中心站 - 出口
12.9分鐘 / 934m
3高雄展覽館站 - 出口
16.1分鐘 / 1138m
4中央公園站 - 出口2
17.5分鐘 / 1195m
5三多商圈站 - 出口6
19.9分鐘 / 1369m
6三多商圈站 - 出口7
20.3分鐘 / 1400m
0光榮碼頭站 - 出口
3.2分鐘 / 200m
1真愛碼頭站 - 出口
10.1分鐘 / 730m
2旅運中心站 - 出口
12.9分鐘 / 934m
3高雄展覽館站 - 出口
16.1分鐘 / 1138m
4中央公園站 - 出口2
17.5分鐘 / 1195m
完整周邊生活圈

SinyiCare十大守護 信義房屋購售屋服務保障
類似物件實價登錄
(12)
1公里內 | 半年內 | 店面
6房3廳3衛
|90.68坪
|無車位
2,060萬22.72萬/坪
114/11成交
0衛
|156.79坪
|無車位
6,250萬39.86萬/坪
114/09成交


