
請注意,上方物件照片如有街景,為物件附近環境介紹,非物件本身。
1/22
有2人也在關注這間👀
本案專家
更多挑選
按下按鈕表示您已同意本站
服務條款
與隱私權聲明
預約看屋
★沙鹿富宇境可停雙車★
(6071BP)
台中市沙鹿區平等路
有2人也在關注這間👀
總價
2,250萬
含車位價
建坪單價
本物件含車位,詳洽經紀人員
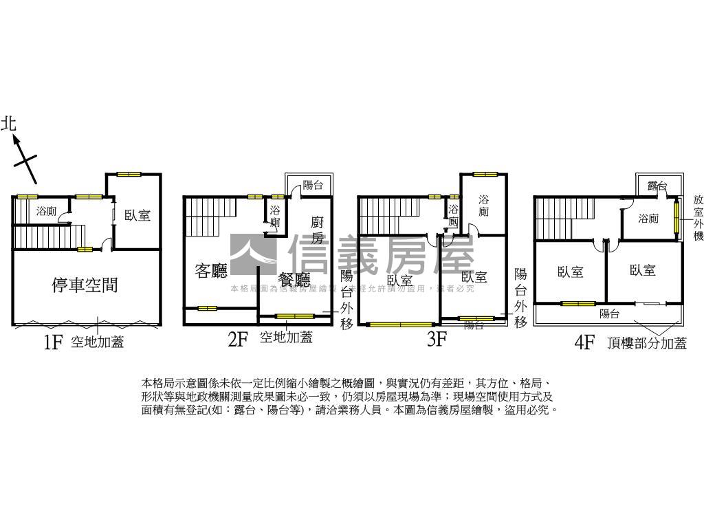
格局
5房2廳5衛
房貸試算
計算
元/月
年|利率%概算|undefined年寬限期
符合首購資格嗎?
坪數詳情
細項
建坪61.85
主+陽61.74
地坪33.23
類型透天
屋齡8.7年
樓層1-4樓/4樓
加蓋格局--
謄本用途住宅、停車空間
使用分區見土地使用分區證明影本;
完整物件詳情
本案專家
更多挑選
物件特色
大坪數適合大家庭
門前停車便利
屋況嘉勉整理
格局方正好規劃
交通便捷南來北往方便
近北勢商圈
商圈機能便利
歡迎預約專人為您服務
周邊生活機能


SinyiCare十大守護 信義房屋購售屋服務保障
點擊觀看生活機能
公車 (18)
公共自行車 (2)
0弘光科技大學(專用道)
12.8分鐘 / 852m
1弘光科技大學
14.1分鐘 / 907m
2弘光科技大學
11.8分鐘 / 764m
3六路一街口
9.3分鐘 / 625m
4六福公園
8分鐘 / 512m
5弘光科技大學(專用道)
13.2分鐘 / 855m
6晉文臺灣大道口
12.7分鐘 / 812m
7南陽六路九街口
10.9分鐘 / 747m
8晉文臺灣大道口
13分鐘 / 828m
9南陽六路九街口
10.9分鐘 / 700m
A六合過洋路口
7.2分鐘 / 561m
B晉江寮(專用道)
10.2分鐘 / 679m
C六合過洋路口
8.2分鐘 / 635m
D晉江里
9.7分鐘 / 682m
E南陽六路十五街口
11.7分鐘 / 865m
F晉江寮(專用道)
9.8分鐘 / 695m
G南陽六路十五街口
11.7分鐘 / 867m
H晉江里
10.8分鐘 / 723m
0弘光科技大學(專用道)
12.8分鐘 / 852m
1弘光科技大學
14.1分鐘 / 907m
2弘光科技大學
11.8分鐘 / 764m
3六路一街口
9.3分鐘 / 625m
4六福公園
8分鐘 / 512m
完整周邊生活圈

SinyiCare十大守護 信義房屋購售屋服務保障
類似物件實價登錄
(12)
1公里內 | 半年內 | 透天
5房2廳3衛
|62.53坪
|有車位
1,606萬25.68萬/坪
114/12成交
4房3廳3衛
|60.77坪
|無車位
1,400萬23.04萬/坪
114/12成交


