
請注意,上方物件照片如有街景,為物件附近環境介紹,非物件本身。
1/18
有289人也在關注這間👀
本案專家
更多挑選
按下按鈕表示您已同意本站
服務條款
與隱私權聲明
預約看屋
永新5米面寬質感車墅
(6501DF)
高雄市仁武區永新二街
有289人也在關注這間👀
總價
1,598萬
1,638萬
含車位價
建坪單價
本物件含車位,詳洽經紀人員
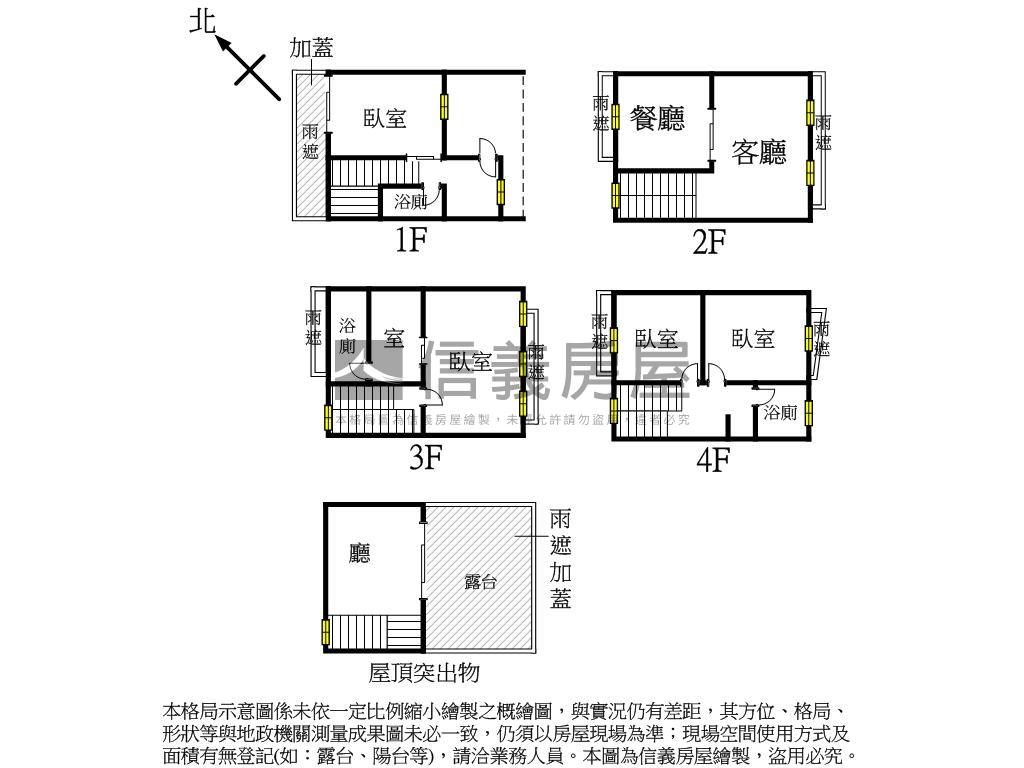
格局
4房3廳3衛1室
房貸試算
計算
元/月
年|利率%概算|undefined年寬限期
符合首購資格嗎?
坪數詳情
細項
建坪54.37
主(含其他)54.37
地坪21.5
類型別墅/透天
屋齡23.3年
樓層1-4樓/4樓
加蓋格局--
謄本用途住宅、停車空間
使用分區第四種住宅區;
完整物件詳情
本案專家
更多挑選
物件特色
格局方正,好規劃
採光佳通風良好
鬧中取靜優質地段
使用空間大好利用
近八德商圈機能方便
近榮總高鐵生活機能佳
住戶單純,好鄰居
接近交流道南通北往好
周邊生活機能


SinyiCare十大守護 信義房屋購售屋服務保障
點擊觀看生活機能
公車 (10)
公共自行車 (2)
停車場 (3)
0永仁公園
2.5分鐘 / 183m
1永仁公園
2.5分鐘 / 183m
2德榮街口
7.8分鐘 / 572m
3德榮街口
7.8分鐘 / 567m
4京富京文街口
11.5分鐘 / 852m
5永仁街口
8.3分鐘 / 592m
6永仁街口
8.5分鐘 / 609m
7京富京文街口
11分鐘 / 819m
8八卦里滯洪公園
9.4分鐘 / 689m
9八卦里滯洪公園
8.8分鐘 / 649m
0永仁公園
2.5分鐘 / 183m
1永仁公園
2.5分鐘 / 183m
2德榮街口
7.8分鐘 / 572m
3德榮街口
7.8分鐘 / 567m
4京富京文街口
11.5分鐘 / 852m
完整周邊生活圈


SinyiCare十大守護 信義房屋購售屋服務保障
類似物件實價登錄
(23)
1公里內 | 半年內 | 別墅/透天
4房2廳3衛
|50.59坪
|無車位
1,330萬26.29萬/坪
115/02成交
5房2廳4衛
|53.75坪
|無車位
880萬16.37萬/坪
115/01成交


