
1/11
請注意,上方物件照片如有街景,為物件附近環境介紹,非物件本身。
1/11
有71人也在關注這間👀
本案專家

預約看屋
按下送出表示您已同意本站
服務條款
與隱私權聲明
送出
中和稀有獨棟透天店辦
(7831RN)
新北市中和區中山路三段
有71人也在關注這間👀
詳情
總價(含車位)
43,000萬
格局
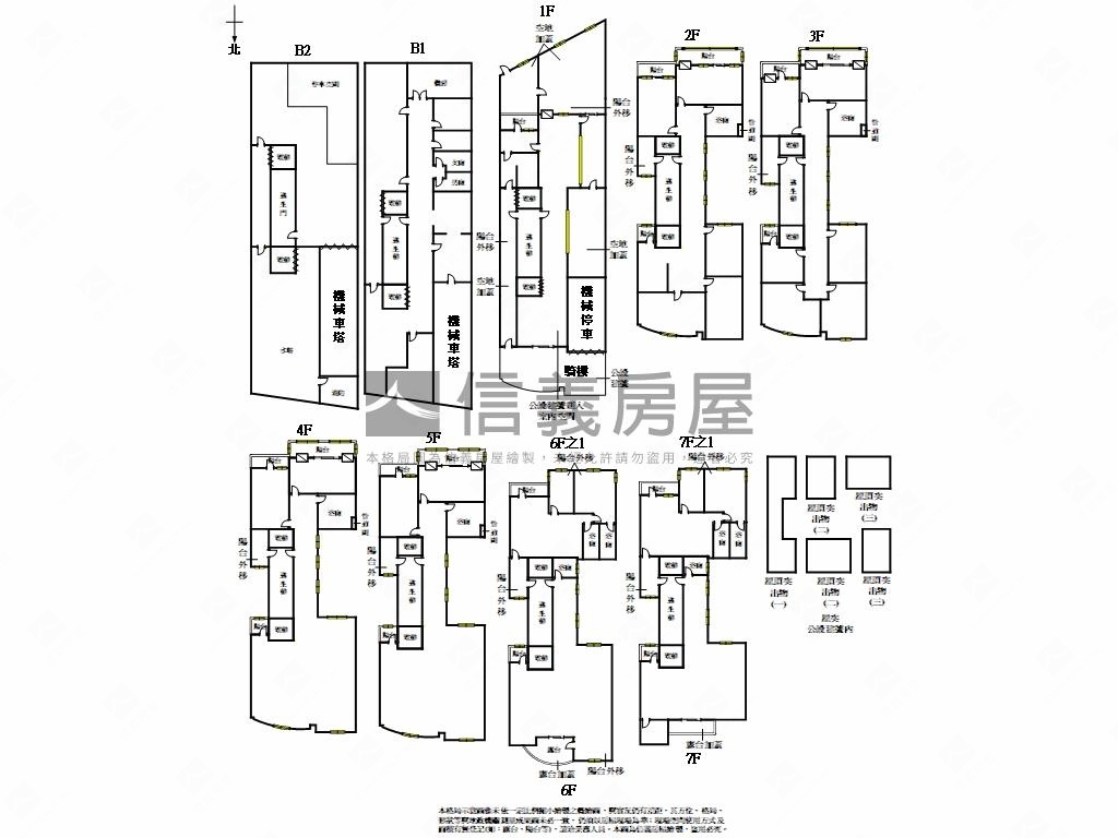
8房12廳12衛15室
建坪
637.24坪
(主+陽341.96坪)
類型
辦公/店面
樓層
1-7樓/7樓
建坪單價
本物件含車位及加蓋,詳洽經紀人員
屋齡
26.2年
地坪
97.73坪
地坪單價
詳洽經紀人員

SinyiCare十大守護 信義房屋購售屋服務保障
點擊觀看生活機能
捷運 (1)公車 (25)公共自行車 (2)停車場 (3)
0中原站 - 出口
12.9分鐘 / 890m
0中原站 - 出口
12.9分鐘 / 890m

SinyiCare十大守護 信義房屋購售屋服務保障
建坪
637.24坪
詳情
建坪單價
本物件含車位及加蓋,詳洽經紀人員
地坪
97.73坪
主+陽
341.96坪=
主建物
307.77坪+
陽台
34.19坪
共有部份
295.28坪
地坪單價
詳洽經紀人員
格局
8房11廳10衛12室
加蓋格局
1廳2衛3室
屋齡
26.2年
類型
辦公/店面
樓層
1-7樓/7樓
車位
10個升降機械
邊間/暗房
是/否
建物朝向
北
大門朝向
北
落地窗朝向
北
警衛管理
無
建物詳情
建物結構
鋼筋混凝土
外牆建材
二丁掛
每層戶數
1
謄本用途
辦公室、住家用
使用分區
住宅區;
注意事項
--
收合
物件特色
整棟透天稀有釋出
近環球購物中心
交通便利機能佳
自用、收租皆宜
土地持分大保值性高
格局方正好規劃
具店面效益
兩部電梯機能佳
類似物件實價登錄(24)
距離該物件1公里內,半年內成交,辦公/店面
共有24間與我相似的實價登錄物件
編輯篩選條件
列表
地圖
年月
地址
類型/車位
總價
單價
建坪
地坪
屋齡
樓層
格局
114年11月

新北市中和區新民街120號
辦公
有車位
4,000萬
含車位價
含車位價
38.22萬
含車位計算
含車位計算
104.66坪
含車位23.34坪
含車位23.34坪
15.33坪
26.0年
1樓/8樓
0衛
備註資訊:親友、員工、共有人或其他特殊關係間之交易;
114年11月
辦公新北市中和區新民街120號4,000萬
含車位價
38.22萬/坪
含車位計算
建坪104.66坪(含車位23.34坪)地坪15.33有車位
0衛26.0年1樓/8樓
0衛26.0年1樓/8樓
交易備註
114年10月

新北市中和區中正路951號九樓
辦公
有車位
5,537萬
含車位1000萬
含車位1000萬
40萬
已扣除車位
已扣除車位
169.24坪
含車位55.81坪
含車位55.81坪
13.08坪
24.4年
9樓/18樓
0衛
備註資訊:本次交易標的物:廠房親友、員工、共有人或其他特殊關係間之交易;
114年10月
辦公新北市中和區中正路951號九樓5,537萬
含車位1000萬
40萬/坪
已扣除車位
建坪169.24坪(含車位55.81坪)地坪13.08有車位
0衛24.4年9樓/18樓
0衛24.4年9樓/18樓
交易備註
114年10月
辦公新北市中和區員山路504號六樓之六2,730萬
含車位價
32.34萬/坪
含車位計算
114年12月

新北市中和區新生街39巷13號
店面
520萬
21.76萬
23.89坪
8.92坪
44.6年
1樓/5樓
3房2廳2衛
備註資訊:親友、員工、共有人或其他特殊關係間之交易;
114年12月
店面新北市中和區新生街39巷13號520萬
21.76萬/坪
建坪23.89坪地坪8.92無車位
3房2廳2衛44.6年1樓/5樓
3房2廳2衛44.6年1樓/5樓
交易備註
- 資料來源:
為信義房屋最新成交行情;
為內政部最新公布的實價登錄資料;
該數值為系統運算,詳細請看說明
- 本實價登錄分類係綜合內政部實價登錄2020年7月之建物型態分類調整,以及申報登錄之建物型態、建物權狀登載之「主要用途」資料推估而成,故資料呈現類型、順序可能會與內政部不動產交易實價查詢服務網之搜尋結果有所差異,請斟酌參考。看看我們如何推估實價登錄類型與順序
- 特殊行情物件可能為受到特別條件或特殊關係影響所造成,詳情請參考頁面之粉色「備註資訊」欄。排除特殊交易功能,開啟後可即時排除顯示申報備註中關係人間交易、特殊交易情況及標的類型、與政府有關之交易、僅車位交易、分件登記、含多筆土地或多棟建物、 交易標的僅有建物、土地面積為0(含地上權物件),及其他備註資訊,關閉後則會恢復顯示。
- 歷史移轉次數依據信義成交行情及政府實價登錄資訊推估,再由系統比對當筆與前一筆實價登錄,交易明細完全吻合方計算漲跌幅,當筆交易漲跌幅計算式為(當筆交易之成交總價/前一筆交易之成交總價)-1,計算百分比至小數點後兩位;可能與實際交易有所落差,資料請斟酌參考。
為信義房屋最新成交行情;- 本實價登錄分類係綜合內政部實價登錄2020年7月之建物型態分類調整,以及申報登錄之建物型態、建物權狀登載之「主要用途」資料推估而成,故資料呈現類型、順序可能會與內政部不動產交易實價查詢服務網之搜尋結果有所差異,請斟酌參考。看看我們如何推估實價登錄類型與順序
- 特殊行情物件可能為受到特別條件或特殊關係影響所造成,詳情請參考頁面之粉色「備註資訊」欄。排除特殊交易功能,開啟後可即時排除顯示申報備註中關係人間交易、特殊交易情況及標的類型、與政府有關之交易、僅車位交易、分件登記、含多筆土地或多棟建物、 交易標的僅有建物、土地面積為0(含地上權物件),及其他備註資訊,關閉後則會恢復顯示。
- 歷史移轉次數依據信義成交行情及政府實價登錄資訊推估,再由系統比對當筆與前一筆實價登錄,交易明細完全吻合方計算漲跌幅,當筆交易漲跌幅計算式為(當筆交易之成交總價/前一筆交易之成交總價)-1,計算百分比至小數點後兩位;可能與實際交易有所落差,資料請斟酌參考。
查看實價登錄
本案專家

根據你的設定值計算
2,183,454/月


