
請注意,上方物件照片如有街景,為物件附近環境介紹,非物件本身。
1/19
有318人也在關注這間👀
本案專家
更多挑選
按下按鈕表示您已同意本站
服務條款
與隱私權聲明
預約看屋
瑞隆三面採光十米正街透店
(8849QH)
高雄市前鎮區精忠街
有318人也在關注這間👀
總價
1,098萬
建坪單價
36.71 萬/坪
格局
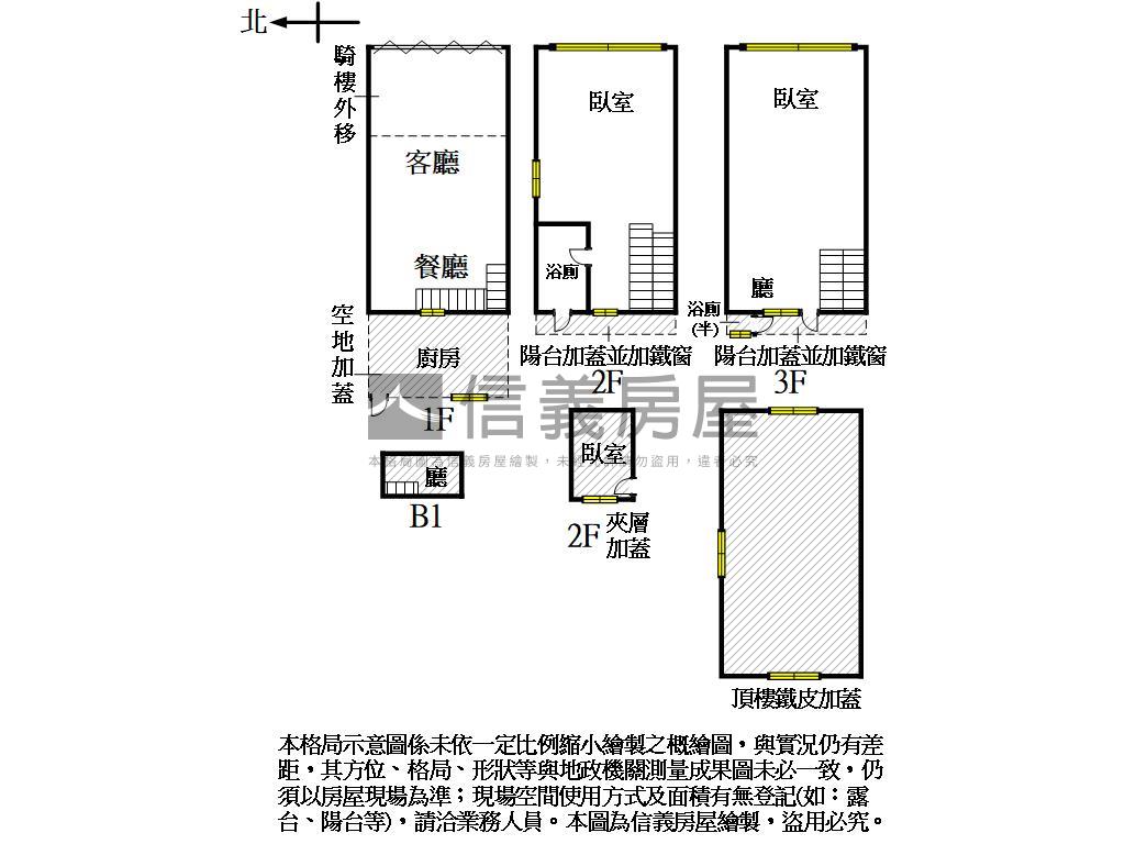
3房4廳1.5衛
含加蓋1房1廳0.5衛
房貸試算
計算
元/月
年|利率%概算|undefined年寬限期
符合首購資格嗎?
坪數詳情
細項
建坪29.91
主(含其他)29.91
地坪14.22
類型店面/透天
屋齡51.5年
樓層1-3樓/3樓
加蓋格局1房1廳0.5衛
謄本用途住商用
使用分區第三種住宅區;
完整物件詳情
本案專家
更多挑選
物件特色
約10米面寬金店面
面寬約4米邊間店面
稀有三面採光明亮通風
綠美景首排下樓即公園
汙水下水道已處理免煩惱
間間衛浴開窗乾燥不潮溼
瑞隆吃市商圈離塵不離城
近輕軌機廠站約230M
周邊生活機能


SinyiCare十大守護 信義房屋購售屋服務保障
點擊觀看生活機能
捷運 (3)
公車 (13)
公共自行車 (1)
停車場 (1)
0輕軌機廠站 - 出口1
3.2分鐘 / 231m
1籬仔內站 - 出口
6.4分鐘 / 466m
2凱旋二聖站 - 出口
11.3分鐘 / 808m
0輕軌機廠站 - 出口1
3.2分鐘 / 231m
1籬仔內站 - 出口
6.4分鐘 / 466m
2凱旋二聖站 - 出口
11.3分鐘 / 808m


SinyiCare十大守護 信義房屋購售屋服務保障
類似物件實價登錄
(53)
1公里內 | 半年內 | 店面/透天
4房2廳5衛
|33.25坪
|無車位
1,388萬41.74萬/坪
115/01成交
2房1廳3衛
|31.98坪
|無車位
1,480萬46.27萬/坪
115/01成交


