
1/10
請注意,上方物件照片如有街景,為物件附近環境介紹,非物件本身。
1/10
有4人也在關注這間👀
本案專家

預約看屋
按下送出表示您已同意本站
服務條款
與隱私權聲明
送出
近轉運站合法大旅店
(9066TW)
台南市北區成功路
有4人也在關注這間👀
詳情
總價
11,800萬
格局
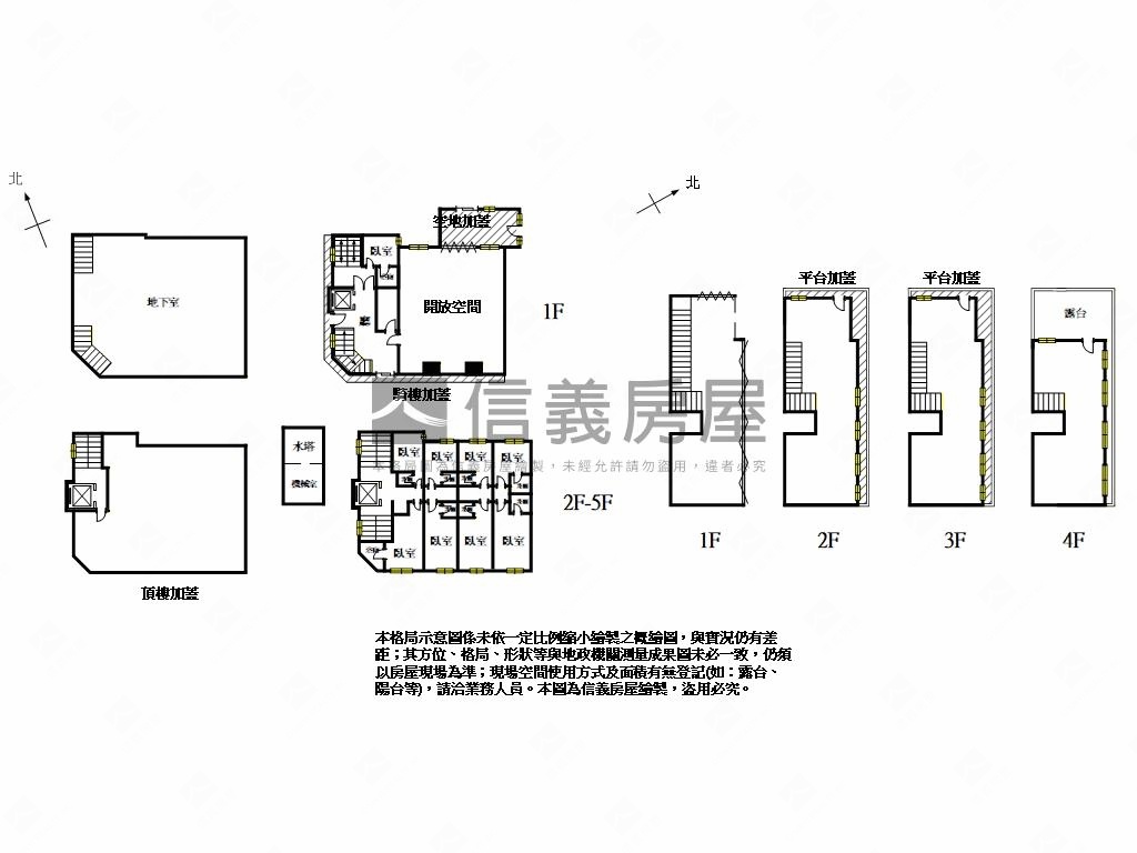
33房1廳33衛
建坪
482.76坪
(主建物412.99坪)
類型
店面
樓層
B1-5樓/5樓
建坪單價
24.44 萬/坪
屋齡
58.1年
地坪
163.65坪
地坪單價
--

SinyiCare十大守護 信義房屋購售屋服務保障
點擊觀看生活機能
公車 (31)公共自行車 (2)停車場 (5)
0公園路
0.7分鐘 / 51m
1公園路
2.4分鐘 / 167m
2公園國小
2.4分鐘 / 167m
3成功路
3.2分鐘 / 240m
4大道公廟
2.4分鐘 / 181m
5公園國小
3.2分鐘 / 211m
6大道公廟
2.6分鐘 / 194m
7成功路
4分鐘 / 279m
8南區健保局
3.7分鐘 / 253m
9南區健保局
4.4分鐘 / 305m
A光復市場
5分鐘 / 351m
B鴨母寮市場
5.2分鐘 / 363m
C鴨母寮市場
5.4分鐘 / 370m
D光復市場
5.4分鐘 / 371m
E公園南路
5.6分鐘 / 392m
F忠義路口
6.7分鐘 / 476m
G忠義路口
7.4分鐘 / 519m
H公園南路
6.2分鐘 / 439m
I臺南轉運站
5.9分鐘 / 401m
J臺南轉運站
6.3分鐘 / 428m
K民族路
7.6分鐘 / 536m
L成功國小
8分鐘 / 570m
M臺南護專
8.9分鐘 / 620m
N大遠百
7.3分鐘 / 500m
O成功國小
8分鐘 / 564m
P大遠百
7.3分鐘 / 502m
Q臺南護專
9.2分鐘 / 639m
R民族路
8.7分鐘 / 603m
S臺南火車站(南站)
9.8分鐘 / 666m
T台南醫院
11.2分鐘 / 780m
U臺南火車站(北站)
9.4分鐘 / 642m
0公園路
0.7分鐘 / 51m
1公園路
2.4分鐘 / 167m
2公園國小
2.4分鐘 / 167m
3成功路
3.2分鐘 / 240m
4大道公廟
2.4分鐘 / 181m
觀看全部

SinyiCare十大守護 信義房屋購售屋服務保障
建坪
482.76坪
詳情
建坪單價
24.44 萬/坪
地坪
163.65坪
主建物
412.99坪
地下室
57.44坪
屋頂突出物
12.32坪
格局
33房1廳33衛
加蓋格局
--
屋齡
58.1年
類型
店面
樓層
B1-5樓/5樓
車位
--
邊間/暗房
是/否
建物朝向
西南
大門朝向
西南
落地窗朝向
西南
警衛管理
無
建物詳情
建物結構
見注意事項
外牆建材
二丁掛
每層戶數
8
謄本用途
見注意事項
使用分區
見土地使用分區證明影本;
注意事項
本物件有未登記建物,若未補辦申領執照之相關程序,或日後補申請執照但不合規定者,則該建物即屬違章建築。
收合
物件特色
走路約10分鐘火車站
走路約5分鐘到轉運站
稀有大旅社
合法旅社營業中
大地坪好規劃利用
站前商圈台南蛋黃核心
2棟透天3塊地號
買方服務費成交價1%
類似物件實價登錄(25)
距離該物件1公里內,半年內成交,店面
共有25間與我相似的實價登錄物件
編輯篩選條件
列表
地圖
年月
地址
類型/車位
總價
單價
建坪
地坪
屋齡
樓層
格局
114年12月

台南市北區北華街261號
店面
254萬
18.71萬
13.58坪
4.76坪
54.8年
1樓/2樓
4房2廳2衛
備註資訊:親友、員工、共有人或其他特殊關係間之交易;
114年12月
店面台南市北區北華街261號254萬
18.71萬/坪
建坪13.58坪地坪4.76無車位
4房2廳2衛54.8年1樓/2樓
4房2廳2衛54.8年1樓/2樓
交易備註
114年07月

台南市中西區民族路二段118號
店面
1,250萬
15.55萬
80.37坪
29.36坪
57.7年
1樓/4樓
5房1廳3衛
備註資訊:親友、員工、共有人或其他特殊關係間之交易;
114年07月
店面台南市中西區民族路二段118號1,250萬
15.55萬/坪
建坪80.37坪地坪29.36無車位
5房1廳3衛57.7年1樓/4樓
5房1廳3衛57.7年1樓/4樓
交易備註
114年09月

台南市北區公園路128之41號
店面
220萬
12.64萬
17.4坪
2.44坪
44.0年
1樓/8樓
1房1衛
114年09月
店面台南市北區公園路128之41號220萬
12.64萬/坪
建坪17.4坪地坪2.44無車位
1房1衛44.0年1樓/8樓
1房1衛44.0年1樓/8樓
114年09月

台南市中西區民權路三段35號
店面
2,025萬
33.26萬
60.88坪
21.29坪
59.8年
1樓/3樓
5房2廳2衛
備註資訊:含國有財產局的租約一併移轉
114年09月
店面台南市中西區民權路三段35號2,025萬
33.26萬/坪
建坪60.88坪地坪21.29無車位
5房2廳2衛59.8年1樓/3樓
5房2廳2衛59.8年1樓/3樓
交易備註
114年07月

台南市中西區忠義路二段185號一樓之3
店面
88萬
16.6萬
5.3坪
0坪
44.6年
1樓/10樓
0衛
備註資訊:本案建物之土地持份已於之前登記完竣,本案僅登記建物所有權;建物坐落地號:觀音段713地號;
114年07月
店面台南市中西區忠義路二段185號一樓之388萬
16.6萬/坪
建坪5.3坪地坪0無車位
0衛44.6年1樓/10樓
0衛44.6年1樓/10樓
交易備註
- 資料來源:
為信義房屋最新成交行情;
為內政部最新公布的實價登錄資料;
該數值為系統運算,詳細請看說明
- 本實價登錄分類係綜合內政部實價登錄2020年7月之建物型態分類調整,以及申報登錄之建物型態、建物權狀登載之「主要用途」資料推估而成,故資料呈現類型、順序可能會與內政部不動產交易實價查詢服務網之搜尋結果有所差異,請斟酌參考。看看我們如何推估實價登錄類型與順序
- 特殊行情物件可能為受到特別條件或特殊關係影響所造成,詳情請參考頁面之粉色「備註資訊」欄。排除特殊交易功能,開啟後可即時排除顯示申報備註中關係人間交易、特殊交易情況及標的類型、與政府有關之交易、僅車位交易、分件登記、含多筆土地或多棟建物、 交易標的僅有建物、土地面積為0(含地上權物件),及其他備註資訊,關閉後則會恢復顯示。
- 歷史移轉次數依據信義成交行情及政府實價登錄資訊推估,再由系統比對當筆與前一筆實價登錄,交易明細完全吻合方計算漲跌幅,當筆交易漲跌幅計算式為(當筆交易之成交總價/前一筆交易之成交總價)-1,計算百分比至小數點後兩位;可能與實際交易有所落差,資料請斟酌參考。
為信義房屋最新成交行情;- 本實價登錄分類係綜合內政部實價登錄2020年7月之建物型態分類調整,以及申報登錄之建物型態、建物權狀登載之「主要用途」資料推估而成,故資料呈現類型、順序可能會與內政部不動產交易實價查詢服務網之搜尋結果有所差異,請斟酌參考。看看我們如何推估實價登錄類型與順序
- 特殊行情物件可能為受到特別條件或特殊關係影響所造成,詳情請參考頁面之粉色「備註資訊」欄。排除特殊交易功能,開啟後可即時排除顯示申報備註中關係人間交易、特殊交易情況及標的類型、與政府有關之交易、僅車位交易、分件登記、含多筆土地或多棟建物、 交易標的僅有建物、土地面積為0(含地上權物件),及其他備註資訊,關閉後則會恢復顯示。
- 歷史移轉次數依據信義成交行情及政府實價登錄資訊推估,再由系統比對當筆與前一筆實價登錄,交易明細完全吻合方計算漲跌幅,當筆交易漲跌幅計算式為(當筆交易之成交總價/前一筆交易之成交總價)-1,計算百分比至小數點後兩位;可能與實際交易有所落差,資料請斟酌參考。
查看實價登錄
本案專家

根據你的設定值計算
599,180/月


