
1/22
請注意,上方物件照片如有街景,為物件附近環境介紹,非物件本身。
1/22
有1人也在關注這間👀
本案專家

預約看屋
按下送出表示您已同意本站
服務條款
與隱私權聲明
送出
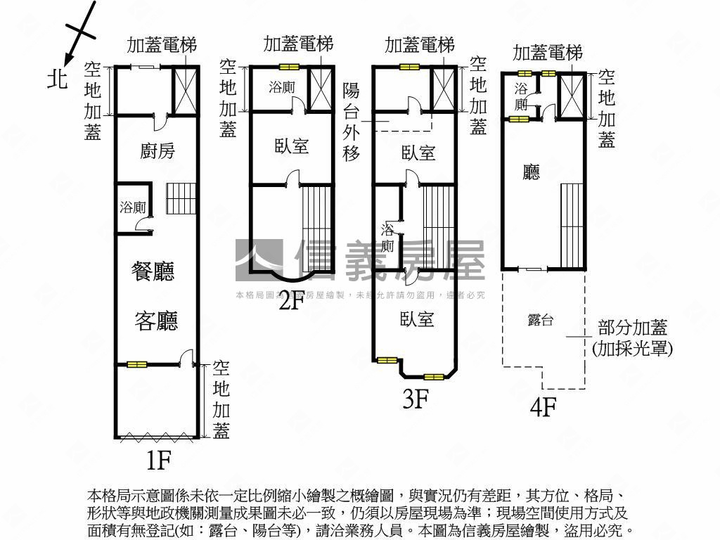
專任地坪約33坪活路別墅
(9166JR)
台中市霧峰區成功路
有1人也在關注這間👀
詳情
總價
1,698萬
格局
3房3廳4衛
建坪
56.53坪
(主+陽56.53坪)
類型
透天
樓層
1-4樓/4樓
建坪單價
30.04 萬/坪
屋齡
30.2年
地坪
33.1坪
地坪單價
--

SinyiCare十大守護 信義房屋購售屋服務保障
點擊觀看生活機能
公車 (11)公共自行車 (1)
0甲寅(民生路)
5.1分鐘 / 382m
1甲寅(民生路)
5.2分鐘 / 391m
2明台高中
5.6分鐘 / 406m
3霧峰
7.3分鐘 / 557m
4霧峰
7.3分鐘 / 554m
5市場口
7.8分鐘 / 595m
6霧峰農會
7.2分鐘 / 549m
7中正草湖路口
7.8分鐘 / 597m
8市場口
7.8分鐘 / 598m
9霧峰農會
7.4分鐘 / 565m
A萊園土地公廟
9.2分鐘 / 645m
0甲寅(民生路)
5.1分鐘 / 382m
1甲寅(民生路)
5.2分鐘 / 391m
2明台高中
5.6分鐘 / 406m
3霧峰
7.3分鐘 / 557m
4霧峰
7.3分鐘 / 554m
觀看全部

SinyiCare十大守護 信義房屋購售屋服務保障
建坪
56.53坪
詳情
建坪單價
30.04 萬/坪
地坪
33.1坪
主+陽
56.53坪=
主建物
55.93坪+
陽台
0.6坪
格局
3房3廳2衛
加蓋格局
2衛
屋齡
30.2年
類型
透天
樓層
1-4樓/4樓
車位
--
邊間/暗房
否/否
建物朝向
西北
大門朝向
西北
落地窗朝向
西北
警衛管理
無
建物詳情
建物結構
鋼筋混凝土
外牆建材
二丁掛
每層戶數
1
謄本用途
住家用
使用分區
見土地使用分區證明影本;
注意事項
--
收合
物件特色
稀有大地坪別墅
買方服務費成交價1%
網路預約,專人服務
交通便利,機能佳
採光通風好
入則悠,出則繁
大面寬約4.6米好規劃
前院方便停車
類似物件實價登錄(9)
距離該物件1公里內,半年內成交,別墅/透天
共有9間與我相似的實價登錄物件
編輯篩選條件
列表
地圖
年月
地址
類型/車位
總價
單價
建坪
地坪
屋齡
樓層
格局
114年10月

台中市霧峰區樹仁二街50號
別墅/透天
1,750萬
30.74萬
56.94坪
20坪
5.1年
1樓/4樓
5房2廳2衛
歷史移轉2次
備註資訊:親友、員工、共有人或其他特殊關係間之交易;
114年10月
別墅/透天台中市霧峰區樹仁二街50號移轉2次
1,750萬
30.74萬/坪
建坪56.94坪地坪20無車位
5房2廳2衛5.1年1樓/4樓
5房2廳2衛5.1年1樓/4樓
交易備註
114年10月

台中市霧峰區成功路90巷26號
別墅/透天
1,400萬
28.99萬
48.3坪
21.26坪
4.0年
1樓/4樓
5房2廳3衛
歷史移轉2次
114年10月
別墅/透天台中市霧峰區成功路90巷26號移轉2次
1,400萬
28.99萬/坪
建坪48.3坪地坪21.26無車位
5房2廳3衛4.0年1樓/4樓
5房2廳3衛4.0年1樓/4樓
114年09月

台中市霧峰區成功路77號
別墅/透天
1,285萬
28.64萬
44.87坪
28.43坪
22.9年
1樓/2樓
2房2廳2衛
備註資訊:其他增建;
114年09月
別墅/透天台中市霧峰區成功路77號1,285萬
28.64萬/坪
建坪44.87坪地坪28.43無車位
2房2廳2衛22.9年1樓/2樓
2房2廳2衛22.9年1樓/2樓
交易備註
114年08月

台中市霧峰區樟公北巷60弄33號
別墅/透天
700萬
10.61萬
65.96坪
37.72坪
29.8年
1樓/5樓
4房3廳3衛
備註資訊:頂樓加蓋;其他增建;
114年08月
別墅/透天台中市霧峰區樟公北巷60弄33號700萬
10.61萬/坪
建坪65.96坪地坪37.72無車位
4房3廳3衛29.8年1樓/5樓
4房3廳3衛29.8年1樓/5樓
交易備註
114年08月

台中市霧峰區育群路64號
別墅/透天
1,550萬
27.11萬
57.17坪
27.23坪
49.9年
1樓/3樓
6房2廳4衛
備註資訊:頂樓加蓋;其他增建;
114年08月
別墅/透天台中市霧峰區育群路64號1,550萬
27.11萬/坪
建坪57.17坪地坪27.23無車位
6房2廳4衛49.9年1樓/3樓
6房2廳4衛49.9年1樓/3樓
交易備註
- 資料來源:
為信義房屋最新成交行情;
為內政部最新公布的實價登錄資料;
該數值為系統運算,詳細請看說明
- 本實價登錄分類係綜合內政部實價登錄2020年7月之建物型態分類調整,以及申報登錄之建物型態、建物權狀登載之「主要用途」資料推估而成,故資料呈現類型、順序可能會與內政部不動產交易實價查詢服務網之搜尋結果有所差異,請斟酌參考。看看我們如何推估實價登錄類型與順序
- 特殊行情物件可能為受到特別條件或特殊關係影響所造成,詳情請參考頁面之粉色「備註資訊」欄。排除特殊交易功能,開啟後可即時排除顯示申報備註中關係人間交易、特殊交易情況及標的類型、與政府有關之交易、僅車位交易、分件登記、含多筆土地或多棟建物、 交易標的僅有建物、土地面積為0(含地上權物件),及其他備註資訊,關閉後則會恢復顯示。
- 歷史移轉次數依據信義成交行情及政府實價登錄資訊推估,再由系統比對當筆與前一筆實價登錄,交易明細完全吻合方計算漲跌幅,當筆交易漲跌幅計算式為(當筆交易之成交總價/前一筆交易之成交總價)-1,計算百分比至小數點後兩位;可能與實際交易有所落差,資料請斟酌參考。
為信義房屋最新成交行情;- 本實價登錄分類係綜合內政部實價登錄2020年7月之建物型態分類調整,以及申報登錄之建物型態、建物權狀登載之「主要用途」資料推估而成,故資料呈現類型、順序可能會與內政部不動產交易實價查詢服務網之搜尋結果有所差異,請斟酌參考。看看我們如何推估實價登錄類型與順序
- 特殊行情物件可能為受到特別條件或特殊關係影響所造成,詳情請參考頁面之粉色「備註資訊」欄。排除特殊交易功能,開啟後可即時排除顯示申報備註中關係人間交易、特殊交易情況及標的類型、與政府有關之交易、僅車位交易、分件登記、含多筆土地或多棟建物、 交易標的僅有建物、土地面積為0(含地上權物件),及其他備註資訊,關閉後則會恢復顯示。
- 歷史移轉次數依據信義成交行情及政府實價登錄資訊推估,再由系統比對當筆與前一筆實價登錄,交易明細完全吻合方計算漲跌幅,當筆交易漲跌幅計算式為(當筆交易之成交總價/前一筆交易之成交總價)-1,計算百分比至小數點後兩位;可能與實際交易有所落差,資料請斟酌參考。
查看實價登錄
本案專家

根據你的設定值計算
86,221/月


