
1/22
請注意,上方物件照片如有街景,為物件附近環境介紹,非物件本身。
1/22
有18人也在關注這間👀
本案專家

預約看屋
按下送出表示您已同意本站
服務條款
與隱私權聲明
送出
正義商圈建國正路面寬透店
(9915LJ)
高雄市苓雅區建國一路
有18人也在關注這間👀
詳情
總價
8,288萬
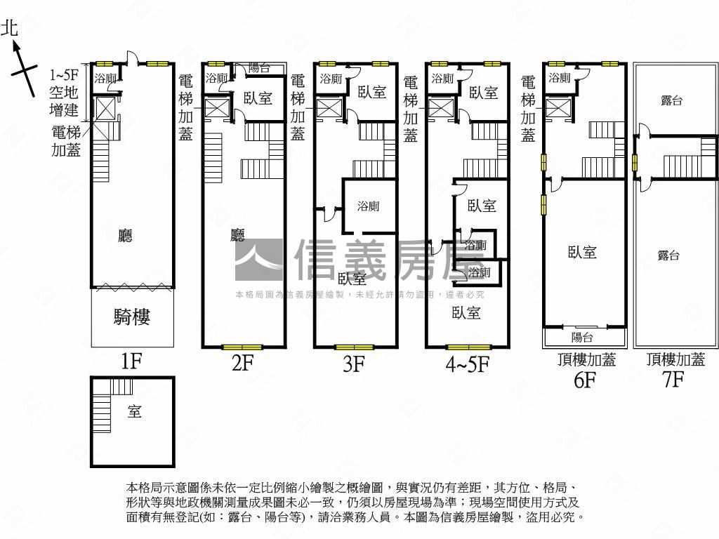
格局
10房2廳11衛1室
建坪
103.88坪
(主建物98.38坪)
類型
店面/透天
樓層
1-5樓/5樓
建坪單價
79.78 萬/坪
屋齡
45.3年
地坪
28.59坪
地坪單價
289.89 萬/坪

SinyiCare十大守護 信義房屋購售屋服務保障
點擊觀看生活機能
捷運 (9)公車 (12)公共自行車 (1)停車場 (1)
0苓雅運動園區站 - 出口4
9.7分鐘 / 669m
1苓雅運動園區站 - 出口3
10.6分鐘 / 719m
2苓雅運動園區站 - 出口1
10.6分鐘 / 742m
3衛武營站 - 出口1
12.3分鐘 / 869m
4苓雅運動園區站 - 出口2
11.9分鐘 / 807m
5衛武營站 - 出口2
12.7分鐘 / 897m
6衛武營站 - 出口3
15分鐘 / 1061m
7衛武營站 - 出口4
13.1分鐘 / 925m
8五塊厝站 - 出口6
17.1分鐘 / 1191m
0苓雅運動園區站 - 出口4
9.7分鐘 / 669m
1苓雅運動園區站 - 出口3
10.6分鐘 / 719m
2苓雅運動園區站 - 出口1
10.6分鐘 / 742m
3衛武營站 - 出口1
12.3分鐘 / 869m
4苓雅運動園區站 - 出口2
11.9分鐘 / 807m
觀看全部

SinyiCare十大守護 信義房屋購售屋服務保障
建坪
103.88坪
詳情
建坪單價
79.78 萬/坪
地坪
28.59坪
主建物
98.38坪
騎樓
5.5坪
地坪單價
289.89 萬/坪
格局
5房2廳5衛
加蓋格局
5房6衛1室
屋齡
45.3年
類型
店面/透天
樓層
1-5樓/5樓
車位
--
邊間/暗房
否/是
建物朝向
西南
大門朝向
西南
落地窗朝向
西南
警衛管理
無
建物詳情
建物結構
鋼筋混凝土
外牆建材
二丁掛
每層戶數
1
謄本用途
店舖、住宅
使用分區
第二種特定商業專用區;
注意事項
--
收合
物件特色
格局方正空間大好規劃
鄰近國道一●人流匯集
騎樓式透天採光通風佳
面寬約5米●停車便利
近正義車站●交通便利
近正義市場●採購便利
武廟正義共榮商圈
近未來捷運Y18潛力佳
類似物件實價登錄(17)
距離該物件1公里內,半年內成交,店面/別墅/透天
共有17間與我相似的實價登錄物件
編輯篩選條件
列表
地圖
年月
地址
類型/車位
總價
單價
建坪
地坪
屋齡
樓層
格局
114年09月

高雄市苓雅區義勇路147巷1號
店面
830萬
35.36萬
23.47坪
20.92坪
48.4年
1樓/2樓
3房1廳2衛
114年09月
店面高雄市苓雅區義勇路147巷1號830萬
35.36萬/坪
建坪23.47坪地坪20.92無車位
3房1廳2衛48.4年1樓/2樓
3房1廳2衛48.4年1樓/2樓
備註資訊:夾層;其他增建;
114年12月
店面高雄市苓雅區正言路63號一樓1,750萬
43.86萬/坪
備註資訊:其他增建;
114年11月
店面高雄市鳳山區澄清路87號1,328萬
46.04萬/坪
114年11月

高雄市三民區九如一路239巷29弄1之8號
店面
758萬
22.73萬
33.35坪
16.03坪
41.5年
1樓/4樓
3房2廳2衛
備註資訊:頂樓加蓋鐵皮含傢俱設備費;頂樓加蓋;
114年11月
店面高雄市三民區九如一路239巷29弄1之8號758萬
22.73萬/坪
建坪33.35坪地坪16.03無車位
3房2廳2衛41.5年1樓/4樓
3房2廳2衛41.5年1樓/4樓
交易備註
114年09月

高雄市三民區有光路22巷15號
別墅/透天
1,300萬
30.67萬
42.38坪
23.82坪
45.7年
1樓/3樓
4房2廳3衛
備註資訊:頂樓加蓋;其他增建;
114年09月
別墅/透天高雄市三民區有光路22巷15號1,300萬
30.67萬/坪
建坪42.38坪地坪23.82無車位
4房2廳3衛45.7年1樓/3樓
4房2廳3衛45.7年1樓/3樓
交易備註
- 資料來源:
為信義房屋最新成交行情;
為內政部最新公布的實價登錄資料;
該數值為系統運算,詳細請看說明
- 本實價登錄分類係綜合內政部實價登錄2020年7月之建物型態分類調整,以及申報登錄之建物型態、建物權狀登載之「主要用途」資料推估而成,故資料呈現類型、順序可能會與內政部不動產交易實價查詢服務網之搜尋結果有所差異,請斟酌參考。看看我們如何推估實價登錄類型與順序
- 特殊行情物件可能為受到特別條件或特殊關係影響所造成,詳情請參考頁面之粉色「備註資訊」欄。排除特殊交易功能,開啟後可即時排除顯示申報備註中關係人間交易、特殊交易情況及標的類型、與政府有關之交易、僅車位交易、分件登記、含多筆土地或多棟建物、 交易標的僅有建物、土地面積為0(含地上權物件),及其他備註資訊,關閉後則會恢復顯示。
- 歷史移轉次數依據信義成交行情及政府實價登錄資訊推估,再由系統比對當筆與前一筆實價登錄,交易明細完全吻合方計算漲跌幅,當筆交易漲跌幅計算式為(當筆交易之成交總價/前一筆交易之成交總價)-1,計算百分比至小數點後兩位;可能與實際交易有所落差,資料請斟酌參考。
為信義房屋最新成交行情;- 本實價登錄分類係綜合內政部實價登錄2020年7月之建物型態分類調整,以及申報登錄之建物型態、建物權狀登載之「主要用途」資料推估而成,故資料呈現類型、順序可能會與內政部不動產交易實價查詢服務網之搜尋結果有所差異,請斟酌參考。看看我們如何推估實價登錄類型與順序
- 特殊行情物件可能為受到特別條件或特殊關係影響所造成,詳情請參考頁面之粉色「備註資訊」欄。排除特殊交易功能,開啟後可即時排除顯示申報備註中關係人間交易、特殊交易情況及標的類型、與政府有關之交易、僅車位交易、分件登記、含多筆土地或多棟建物、 交易標的僅有建物、土地面積為0(含地上權物件),及其他備註資訊,關閉後則會恢復顯示。
- 歷史移轉次數依據信義成交行情及政府實價登錄資訊推估,再由系統比對當筆與前一筆實價登錄,交易明細完全吻合方計算漲跌幅,當筆交易漲跌幅計算式為(當筆交易之成交總價/前一筆交易之成交總價)-1,計算百分比至小數點後兩位;可能與實際交易有所落差,資料請斟酌參考。
查看實價登錄
本案專家

根據你的設定值計算
420,848/月


