






































請注意,上方物件照片如有街景,為物件附近環境介紹,非物件本身。
1/19
有32人也在關注這間👀
太平洋房屋-七期潮洋公園加盟店(誠御不動產仲介有限公司)
04-2255-8288
臺中市西屯區朝馬路135號1樓
本物件非信義房屋受託銷售,各項責任(包括但不限於廣告真實性及仲介義務等)概由各該受託業者自行負責,不屬信義房屋控制及負責範圍。
按下按鈕表示您已同意本站
服務條款
與隱私權聲明
預約看屋
此為其他仲介業者物件

電梯別墅【國雄青水硯 】5.5米雙車
非信義物件(S2941749PA)
台中市北屯區祥順路二段
有32人也在關注這間👀
總價
3,980萬
建坪單價
40.65萬/坪
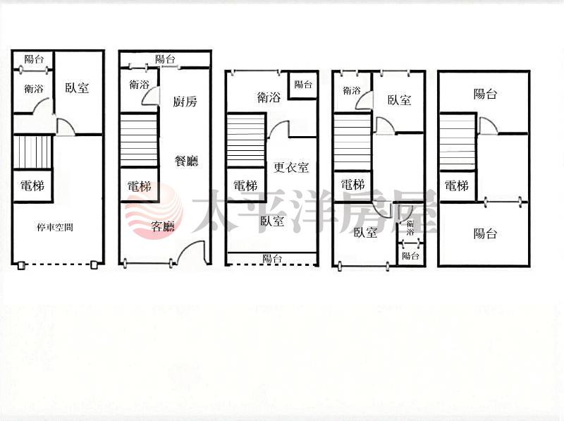
格局
4房3廳5衛
房貸試算
計算
元/月
年|利率%概算|undefined年寬限期
符合首購資格嗎?
坪數詳情
細項
建坪97.92
主建物81.87
地坪32.9
類型別墅/透天
屋齡9.9年
樓層0樓/4樓
管理費
約5,387 元/月
加蓋格局--
謄本用途--
使用分區--
完整物件詳情
太平洋房屋-七期潮洋公園加盟店(誠御不動產仲介有限公司)
04-2255-8288
臺中市西屯區朝馬路135號1樓
物件特色
5.5 米大面寬,氣派門面一眼就知道不一樣<br />
總建近百坪|土地近 35坪,真正有感的空間尺度<br />
4 房全套房設計,三代同堂也能各自保有隱私<br />
國雄建設 指標作品,社區中庭綠意環繞、棟距寬闊不壓迫<br />
高規格管理,住戶單純,稀有電梯別墅規劃
類似物件實價登錄
(11)


