
1/14
請注意,上方物件照片如有街景,為物件附近環境介紹,非物件本身。
1/14
有54人也在關注這間👀
本案專家

預約看屋
按下送出表示您已同意本站
服務條款
與隱私權聲明
送出
近市場世運臨路透天店面
(2913XS)
高雄市楠梓區和光街
有54人也在關注這間👀
詳情
總價
2,500萬
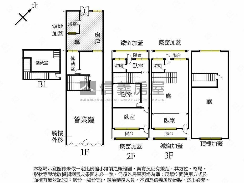
格局
4房4廳3衛2室
建坪
54.05坪
(主建物43.49坪)
類型
透天/店面
樓層
B1-3樓/3樓
建坪單價
46.25 萬/坪
屋齡
49.9年
地坪
27.23坪
地坪單價
--

SinyiCare十大守護 信義房屋購售屋服務保障
點擊觀看生活機能
捷運 (4)公車 (8)公共自行車 (1)
0油廠國小站 - 出口1
15.5分鐘 / 1098m
1油廠國小站 - 出口2
16.3分鐘 / 1171m
2油廠國小站 - 出口3
16分鐘 / 1116m
3油廠國小站 - 出口4
16.8分鐘 / 1190m
0油廠國小站 - 出口1
15.5分鐘 / 1098m
1油廠國小站 - 出口2
16.3分鐘 / 1171m
2油廠國小站 - 出口3
16分鐘 / 1116m
3油廠國小站 - 出口4
16.8分鐘 / 1190m

SinyiCare十大守護 信義房屋購售屋服務保障
建坪
54.05坪
詳情
建坪單價
46.25 萬/坪
地坪
27.23坪
主建物
43.49坪
地下室
5.06坪
屋頂突出物
2.02坪
騎樓
3.48坪
格局
4房2廳2衛2室
加蓋格局
2廳1衛
屋齡
49.9年
類型
透天/店面
樓層
B1-3樓/3樓
車位
--
邊間/暗房
否/否
建物朝向
東南
大門朝向
東南
警衛管理
無
建物詳情
建物結構
鋼筋混凝土
外牆建材
馬賽克
每層戶數
1
謄本用途
住商用
使用分區
第四種住宅區;
注意事項
--
收合
物件特色
近市場採買便利
收租自用皆相宜
近捷運油廠國小站
近國軍左營總醫院
格局方正好規劃
室內使用空間大
電話預約專人服務
買方服務費成交價1%
類似物件實價登錄(41)
距離該物件1公里內,半年內成交,別墅/透天/店面
共有41間與我相似的實價登錄物件
編輯篩選條件
列表
地圖
年月
地址
類型/車位
總價
單價
建坪
地坪
屋齡
樓層
格局
114年07月

高雄市楠梓區後昌路718巷5號
店面
1,528萬
30.08萬
50.79坪
30.55坪
47.2年
1樓/3樓
5房2廳3衛
備註資訊:頂樓加蓋;
114年07月
店面高雄市楠梓區後昌路718巷5號1,528萬
30.08萬/坪
建坪50.79坪地坪30.55無車位
5房2廳3衛47.2年1樓/3樓
5房2廳3衛47.2年1樓/3樓
交易備註
114年12月

高雄市左營區軍校路626巷2弄13號
別墅/透天
680萬
29.49萬
23.06坪
19.36坪
52.0年
1樓/2樓
3房2廳2衛
備註資訊:頂樓加蓋;其他增建;
114年12月
別墅/透天高雄市左營區軍校路626巷2弄13號680萬
29.49萬/坪
建坪23.06坪地坪19.36無車位
3房2廳2衛52.0年1樓/2樓
3房2廳2衛52.0年1樓/2樓
交易備註
114年11月

高雄市楠梓區和光街221巷54號
別墅/透天
360萬
18.89萬
19.05坪
20.27坪
54.6年
1樓/2樓
2房1廳1衛
歷史移轉2次
114年11月
別墅/透天高雄市楠梓區和光街221巷54號移轉2次
360萬
18.89萬/坪
建坪19.05坪地坪20.27無車位
2房1廳1衛54.6年1樓/2樓
2房1廳1衛54.6年1樓/2樓
114年10月

高雄市楠梓區軍校路768巷72號
別墅/透天
423萬
19.71萬
21.46坪
17.85坪
51.5年
1樓/2樓
3房2廳2衛
備註資訊:增建部分:二樓陽台外推.頂樓加蓋.其他增建一樓廚房親友、員工、共有人或其他特殊關係間之交易;
114年10月
別墅/透天高雄市楠梓區軍校路768巷72號423萬
19.71萬/坪
建坪21.46坪地坪17.85無車位
3房2廳2衛51.5年1樓/2樓
3房2廳2衛51.5年1樓/2樓
交易備註
114年10月

高雄市楠梓區軍校路891巷8號
別墅/透天
890萬
36.52萬
24.37坪
29.34坪
46.4年
1樓/2樓
5房2廳4衛
備註資訊:一樓空地增建、增建三樓未登記建物;
114年10月
別墅/透天高雄市楠梓區軍校路891巷8號890萬
36.52萬/坪
建坪24.37坪地坪29.34無車位
5房2廳4衛46.4年1樓/2樓
5房2廳4衛46.4年1樓/2樓
交易備註
- 資料來源:
為信義房屋最新成交行情;
為內政部最新公布的實價登錄資料;
該數值為系統運算,詳細請看說明
- 本實價登錄分類係綜合內政部實價登錄2020年7月之建物型態分類調整,以及申報登錄之建物型態、建物權狀登載之「主要用途」資料推估而成,故資料呈現類型、順序可能會與內政部不動產交易實價查詢服務網之搜尋結果有所差異,請斟酌參考。看看我們如何推估實價登錄類型與順序
- 特殊行情物件可能為受到特別條件或特殊關係影響所造成,詳情請參考頁面之粉色「備註資訊」欄。排除特殊交易功能,開啟後可即時排除顯示申報備註中關係人間交易、特殊交易情況及標的類型、與政府有關之交易、僅車位交易、分件登記、含多筆土地或多棟建物、 交易標的僅有建物、土地面積為0(含地上權物件),及其他備註資訊,關閉後則會恢復顯示。
- 歷史移轉次數依據信義成交行情及政府實價登錄資訊推估,再由系統比對當筆與前一筆實價登錄,交易明細完全吻合方計算漲跌幅,當筆交易漲跌幅計算式為(當筆交易之成交總價/前一筆交易之成交總價)-1,計算百分比至小數點後兩位;可能與實際交易有所落差,資料請斟酌參考。
為信義房屋最新成交行情;- 本實價登錄分類係綜合內政部實價登錄2020年7月之建物型態分類調整,以及申報登錄之建物型態、建物權狀登載之「主要用途」資料推估而成,故資料呈現類型、順序可能會與內政部不動產交易實價查詢服務網之搜尋結果有所差異,請斟酌參考。看看我們如何推估實價登錄類型與順序
- 特殊行情物件可能為受到特別條件或特殊關係影響所造成,詳情請參考頁面之粉色「備註資訊」欄。排除特殊交易功能,開啟後可即時排除顯示申報備註中關係人間交易、特殊交易情況及標的類型、與政府有關之交易、僅車位交易、分件登記、含多筆土地或多棟建物、 交易標的僅有建物、土地面積為0(含地上權物件),及其他備註資訊,關閉後則會恢復顯示。
- 歷史移轉次數依據信義成交行情及政府實價登錄資訊推估,再由系統比對當筆與前一筆實價登錄,交易明細完全吻合方計算漲跌幅,當筆交易漲跌幅計算式為(當筆交易之成交總價/前一筆交易之成交總價)-1,計算百分比至小數點後兩位;可能與實際交易有所落差,資料請斟酌參考。
查看實價登錄
本案專家

根據你的設定值計算
126,945/月


