
1/15
請注意,上方物件照片如有街景,為物件附近環境介紹,非物件本身。
1/15
有452人也在關注這間👀
本案專家

預約看屋
按下送出表示您已同意本站
服務條款
與隱私權聲明
送出
有452人也在關注這間👀
詳情
總價(含車位)
1,768萬
1816萬
格局
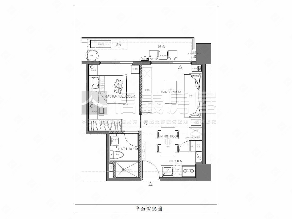
1房2廳1衛
建坪
26.72坪
(主+陽12.45坪)
類型
套房
樓層
3樓/11樓
建坪單價
本物件含車位,詳洽經紀人員
屋齡
11.4年
地坪
4.34坪
地坪單價
詳洽經紀人員

SinyiCare十大守護 信義房屋購售屋服務保障
點擊觀看生活機能
公車 (21)停車場 (1)
0政大威秀
0.2分鐘 / 15m
1水鋼琴社區
0.9分鐘 / 44m
2水鋼琴社區
1.3分鐘 / 65m
3水鋼琴社區
1.3分鐘 / 69m
4三角公園
2.1分鐘 / 146m
5三角公園
2分鐘 / 156m
6三角公園
2.5分鐘 / 175m
7三角公園
2.6分鐘 / 188m
8六期運動場
21.3分鐘 / 1425m
9六期運動場
21.4分鐘 / 1425m
A環山網球場
19分鐘 / 1276m
B環山網球場
19分鐘 / 1275m
C北政國中(政大實小)
4.7分鐘 / 357m
D北政國中(政大實小)
4.7分鐘 / 357m
E政大和墅社區
10.4分鐘 / 708m
F政大學苑
13.8分鐘 / 880m
G政大三街
12.9分鐘 / 846m
H小坑口(北政國中)
6.6分鐘 / 475m
I政大三街
13.6分鐘 / 889m
J小坑口(北政國中)
6.9分鐘 / 509m
K指南宮
26.1分鐘 / 1059m
0政大威秀
0.2分鐘 / 15m
1水鋼琴社區
0.9分鐘 / 44m
2水鋼琴社區
1.3分鐘 / 65m
3水鋼琴社區
1.3分鐘 / 69m
4三角公園
2.1分鐘 / 146m
觀看全部

SinyiCare十大守護 信義房屋購售屋服務保障
建坪
26.72坪
詳情
建坪單價
本物件含車位,詳洽經紀人員
地坪
4.34坪
主+陽
12.45坪=
主建物
11.25坪+
陽台
1.2坪
防空避難室兼停車場
7.59坪
共有部份
6.08坪
雨遮
0.59坪
地坪單價
詳洽經紀人員
格局
1房2廳1衛
加蓋格局
--
屋齡
11.4年
類型
套房
樓層
3樓/11樓
車位
坡道機械(車位總價:190萬)更多
邊間/暗房
否/否
建物朝向
西南
大門朝向
東北
落地窗朝向
西南
警衛管理
全天候
建物詳情
建物結構
鋼筋混凝土
外牆建材
二丁掛
每層戶數
8
謄本用途
住家用
使用分區
第三種住宅區;
注意事項
--
收合
物件特色
臺北市門牌低總價
社區小坪數稀少釋出
挑高空間好規劃
綠意盎然綠覆率高
近政大商圈書香氣氛濃
周末休閒度假優選
社區質感佳全天候管理
環境清幽離塵不離城
類似物件實價登錄(15)
距離該物件1公里內,半年內成交,套房
共有15間與我相似的實價登錄物件
編輯篩選條件
列表
地圖
年月
地址
類型/車位
總價
單價
建坪
地坪
屋齡
樓層
格局
備註資訊:親友、員工、共有人或其他特殊關係間之交易;夾層;其他增建;
1,020萬
54.87萬/坪
建坪18.59坪地坪4.23無車位
1房1廳1衛10.8年7樓/11樓
1房1廳1衛10.8年7樓/11樓
交易備註
114年06月

台北市文山區指南路二段221號二樓之1
套房
900萬
80.24萬
11.22坪
5.07坪
3.5年
2樓/4樓
1房1衛
歷史移轉2次
114年06月
套房台北市文山區指南路二段221號二樓之1移轉2次
900萬
80.24萬/坪
建坪11.22坪地坪5.07無車位
1房1衛3.5年2樓/4樓
1房1衛3.5年2樓/4樓
備註資訊:陽台外推;夾層;
1,083萬
78.2萬/坪
建坪13.85坪地坪6.47無車位
1房1廳1衛18.8年4樓/5樓
1房1廳1衛18.8年4樓/5樓
交易備註
114年05月

台北市文山區指南路二段221號
套房
1,008萬
93.21萬
10.81坪
6.21坪
3.4年
1樓/4樓
1房1廳1衛
歷史移轉2次
備註資訊:其他增建;
114年05月
套房台北市文山區指南路二段221號移轉2次
1,008萬
93.21萬/坪
建坪10.81坪地坪6.21無車位
1房1廳1衛3.4年1樓/4樓
1房1廳1衛3.4年1樓/4樓
交易備註
114年05月

台北市文山區指南路二段221號四樓之3
套房
800萬
88.15萬
9.07坪
4.36坪
3.4年
4樓/4樓
1房1衛
歷史移轉2次
114年05月
套房台北市文山區指南路二段221號四樓之3移轉2次
800萬
88.15萬/坪
建坪9.07坪地坪4.36無車位
1房1衛3.4年4樓/4樓
1房1衛3.4年4樓/4樓
- 資料來源:
為信義房屋最新成交行情;
為內政部最新公布的實價登錄資料;
該數值為系統運算,詳細請看說明
- 本實價登錄分類係綜合內政部實價登錄2020年7月之建物型態分類調整,以及申報登錄之建物型態、建物權狀登載之「主要用途」資料推估而成,故資料呈現類型、順序可能會與內政部不動產交易實價查詢服務網之搜尋結果有所差異,請斟酌參考。看看我們如何推估實價登錄類型與順序
- 特殊行情物件可能為受到特別條件或特殊關係影響所造成,詳情請參考頁面之粉色「備註資訊」欄。排除特殊交易功能,開啟後可即時排除顯示申報備註中關係人間交易、特殊交易情況及標的類型、與政府有關之交易、僅車位交易、分件登記、含多筆土地或多棟建物、 交易標的僅有建物、土地面積為0(含地上權物件),及其他備註資訊,關閉後則會恢復顯示。
- 歷史移轉次數依據信義成交行情及政府實價登錄資訊推估,再由系統比對當筆與前一筆實價登錄,交易明細完全吻合方計算漲跌幅,當筆交易漲跌幅計算式為(當筆交易之成交總價/前一筆交易之成交總價)-1,計算百分比至小數點後兩位;可能與實際交易有所落差,資料請斟酌參考。

- 本實價登錄分類係綜合內政部實價登錄2020年7月之建物型態分類調整,以及申報登錄之建物型態、建物權狀登載之「主要用途」資料推估而成,故資料呈現類型、順序可能會與內政部不動產交易實價查詢服務網之搜尋結果有所差異,請斟酌參考。看看我們如何推估實價登錄類型與順序
- 特殊行情物件可能為受到特別條件或特殊關係影響所造成,詳情請參考頁面之粉色「備註資訊」欄。排除特殊交易功能,開啟後可即時排除顯示申報備註中關係人間交易、特殊交易情況及標的類型、與政府有關之交易、僅車位交易、分件登記、含多筆土地或多棟建物、 交易標的僅有建物、土地面積為0(含地上權物件),及其他備註資訊,關閉後則會恢復顯示。
- 歷史移轉次數依據信義成交行情及政府實價登錄資訊推估,再由系統比對當筆與前一筆實價登錄,交易明細完全吻合方計算漲跌幅,當筆交易漲跌幅計算式為(當筆交易之成交總價/前一筆交易之成交總價)-1,計算百分比至小數點後兩位;可能與實際交易有所落差,資料請斟酌參考。
查看實價登錄
本案專家

根據你的設定值計算
89,775/月