
請注意,上方物件照片如有街景,為物件附近環境介紹,非物件本身。
1/22
有133人也在關注這間👀
本區專家
本案專家
更多挑選
按下按鈕表示您已同意本站
服務條款
與隱私權聲明
預約看屋
有133人也在關注這間👀
總價
7,000萬
含車位價
建坪單價
本物件含車位,詳洽經紀人員
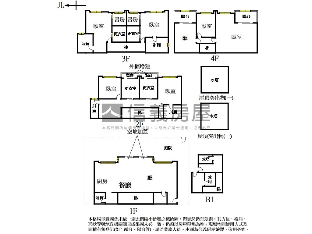
格局
8房3廳5衛4室
房貸試算
計算
元/月
年|利率%概算|undefined年寬限期
符合首購資格嗎?
坪數詳情
細項
建坪157.17
主+陽(含其他)117.28
地坪64.52
類型別墅/透天/辦公
屋齡17.3年
樓層1-4樓/4樓
管理費
約8,000 元/月
加蓋格局--
謄本用途住家用
使用分區第三種住宅區;
完整物件詳情
本區專家
本案專家
更多挑選
物件特色
花、草、樹木、涼亭
現有庭院空間蝶舞秋楓
大空間別墅高級享受
邊間每個房間皆有開窗
精美裝潢屋主用心設計
社區型管理居住安心
適三代同堂、辦公登記
網路預約專人服務
周邊生活機能


SinyiCare十大守護 信義房屋購售屋服務保障
點擊觀看生活機能
捷運 (4)
公車 (22)
公共自行車 (2)
0濱海義山站 - 出口
7.7分鐘 / 516m
1濱海沙崙站 - 出口
10.3分鐘 / 775m
2淡水行政中心站 - 出口
14.8分鐘 / 1049m
3淡海新市鎮站 - 出口
19.4分鐘 / 1379m
0濱海義山站 - 出口
7.7分鐘 / 516m
1濱海沙崙站 - 出口
10.3分鐘 / 775m
2淡水行政中心站 - 出口
14.8分鐘 / 1049m
3淡海新市鎮站 - 出口
19.4分鐘 / 1379m


SinyiCare十大守護 信義房屋購售屋服務保障
類似物件實價登錄
(5)


