
請注意,上方物件照片如有街景,為物件附近環境介紹,非物件本身。
1/21
有96人也在關注這間👀
本案專家
更多挑選
按下按鈕表示您已同意本站
服務條款
與隱私權聲明
預約看屋
有96人也在關注這間👀
總價
6,488萬
含車位價
建坪單價
本物件含車位,詳洽經紀人員
格局
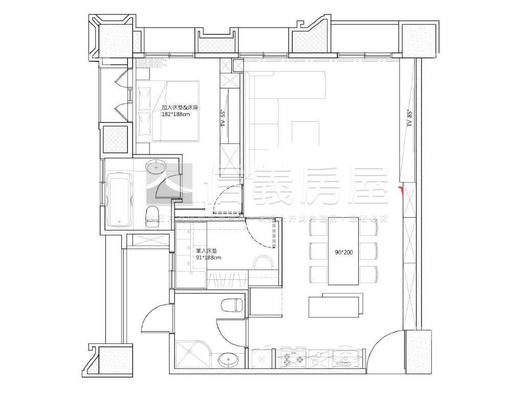
2房2廳2衛
房貸試算
計算
元/月
年|利率%概算|undefined年寬限期
符合首購資格嗎?
坪數詳情
細項
建坪52.27
主+陽(含其他)27.12
地坪7.12
類型大樓
屋齡4.4年
樓層13樓/14樓
管理費
約6,057 元/月
加蓋格局--
謄本用途第二組集合住宅、住宅
使用分區第三種住宅區;
完整物件詳情
本案專家
更多挑選
物件特色
和平一隅官苑臻心
B1獨立坡道平面車位
重本裝潢工藝細膩
動線講究細節到位
12米雙巷退縮綠境
次高樓層層峰視野
基地371坪大街廓
挑高門廳石柱外展
周邊生活機能


SinyiCare十大守護 信義房屋購售屋服務保障
點擊觀看生活機能
捷運 (17)
公車 (28)
公共自行車 (8)
停車場 (10)
0古亭站 - 出口8
5.5分鐘 / 352m
1古亭站 - 出口7
6.9分鐘 / 461m
2古亭站 - 出口9
6.1分鐘 / 424m
3古亭站 - 出口6
7.8分鐘 / 475m
4古亭站 - 出口1
7.1分鐘 / 503m
5古亭站 - 出口4
7.6分鐘 / 489m
6古亭站 - 出口5
7.5分鐘 / 447m
7古亭站 - 出口3
8.2分鐘 / 536m
8古亭站 - 出口2
7.2分鐘 / 496m
9中正紀念堂站 - 出口3
16.7分鐘 / 1111m
A中正紀念堂站 - 出口2
15.3分鐘 / 1053m
B中正紀念堂站 - 出口1
16.6分鐘 / 1138m
C中正紀念堂站 - 出口4
17.9分鐘 / 1184m
D台電大樓站 - 出口4
13.9分鐘 / 990m
E中正紀念堂站 - 出口8
18.6分鐘 / 1283m
F台電大樓站 - 出口3
16分鐘 / 1084m
G台電大樓站 - 出口5
15.6分鐘 / 1091m
0古亭站 - 出口8
5.5分鐘 / 352m
1古亭站 - 出口7
6.9分鐘 / 461m
2古亭站 - 出口9
6.1分鐘 / 424m
3古亭站 - 出口6
7.8分鐘 / 475m
4古亭站 - 出口1
7.1分鐘 / 503m
完整周邊生活圈

SinyiCare十大守護 信義房屋購售屋服務保障
類似物件實價登錄
(50)


