
1/22
請注意,上方物件照片如有街景,為物件附近環境介紹,非物件本身。
1/22
有134人也在關注這間👀
本案專家

預約看屋
按下送出表示您已同意本站
服務條款
與隱私權聲明
送出
梓官信義路透天住商兩用
(7474NC)
高雄市梓官區信義路
有134人也在關注這間👀
詳情
總價
1,000萬
1188萬
格局
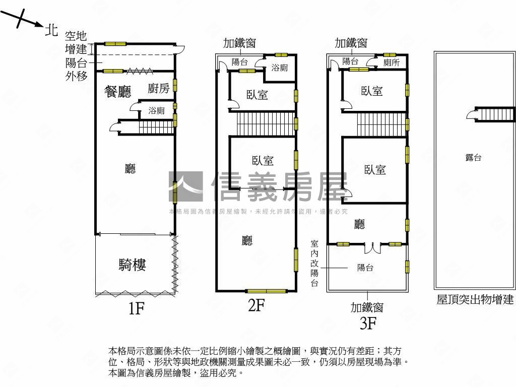
4房4廳2.5衛
建坪
59.02坪
(主建物53.88坪)
類型
透天/店面
樓層
1-3樓/3樓
建坪單價
16.94 萬/坪
屋齡
45.0年
地坪
31.25坪
地坪單價
--

SinyiCare十大守護 信義房屋購售屋服務保障

點擊觀看生活機能
公車 (6)
0信義路
1分鐘 / 70m
1信義路
2.3分鐘 / 156m
2梓官國小
7分鐘 / 475m
3梓官國小
7.3分鐘 / 497m
4北梓官
9.3分鐘 / 655m
5北梓官
9.2分鐘 / 650m
0信義路
1分鐘 / 70m
1信義路
2.3分鐘 / 156m
2梓官國小
7分鐘 / 475m
3梓官國小
7.3分鐘 / 497m
4北梓官
9.3分鐘 / 655m
觀看全部

SinyiCare十大守護 信義房屋購售屋服務保障
建坪
59.02坪
詳情
建坪單價
16.94 萬/坪
地坪
31.25坪
主建物
53.88坪
騎樓
5.14坪
格局
4房4廳2.5衛
加蓋格局
--
屋齡
45.0年
類型
透天/店面
樓層
1-3樓/3樓
車位
--
邊間/暗房
是/否
建物朝向
東北
大門朝向
東北
落地窗朝向
東北
警衛管理
無
建物詳情
建物結構
鋼筋混凝土
外牆建材
馬賽克
每層戶數
1
謄本用途
住商用
使用分區
見土地使用分區證明影本;
注意事項
--
收合
物件特色
邊間面寬約4米
營業用獨棟能掛招牌
臨馬路掛招牌能見度高
臨馬路門前方便上下車
住家用空間大好規劃
歡迎來電預約賞屋
三面採光
類似物件實價登錄(9)
距離該物件1公里內,半年內成交,別墅/透天/店面
共有9間與我相似的實價登錄物件
編輯篩選條件
列表
地圖
年月
地址
類型/車位
總價
單價
建坪
地坪
屋齡
樓層
格局
114年09月

高雄市梓官區進學路35號
店面
1,290萬
25.68萬
50.23坪
24.47坪
43.3年
1樓/3樓
4房2廳3衛
備註資訊:含租約;
114年09月
店面高雄市梓官區進學路35號1,290萬
25.68萬/坪
建坪50.23坪地坪24.47無車位
4房2廳3衛43.3年1樓/3樓
4房2廳3衛43.3年1樓/3樓
交易備註
114年08月

高雄市梓官區公路59號
別墅/透天
1,538萬
27.27萬
56.39坪
24.09坪
1.8年
1樓/3樓
5房2廳3衛
歷史移轉2次
114年08月
別墅/透天高雄市梓官區公路59號移轉2次
1,538萬
27.27萬/坪
建坪56.39坪地坪24.09無車位
5房2廳3衛1.8年1樓/3樓
5房2廳3衛1.8年1樓/3樓
114年06月

高雄市梓官區梓官路475巷1弄47號
別墅/透天
650萬
15.13萬
42.95坪
23.99坪
32.5年
1樓/4樓
5房2廳4衛
歷史移轉2次
備註資訊:頂樓鐵皮屋親友、員工、共有人或其他特殊關係間之交易;其他增建;
114年06月
別墅/透天高雄市梓官區梓官路475巷1弄47號移轉2次
650萬
15.13萬/坪
建坪42.95坪地坪23.99無車位
5房2廳4衛32.5年1樓/4樓
5房2廳4衛32.5年1樓/4樓
交易備註
114年06月

高雄市梓官區民權街76巷40號
別墅/透天
1,645萬
28.75萬
57.21坪
44.16坪
1.4年
1樓/3樓
5房2廳5衛
歷史移轉2次
備註資訊:其他增建;
114年06月
別墅/透天高雄市梓官區民權街76巷40號移轉2次
1,645萬
28.75萬/坪
建坪57.21坪地坪44.16無車位
5房2廳5衛1.4年1樓/3樓
5房2廳5衛1.4年1樓/3樓
交易備註
114年05月

高雄市梓官區大宅街58號
店面
233萬
16.44萬
14.2坪
7.61坪
42.5年
1樓/3樓
4房2廳3衛
備註資訊:持分移轉親友、員工、共有人或其他特殊關係間之交易;
114年05月
店面高雄市梓官區大宅街58號233萬
16.44萬/坪
建坪14.2坪地坪7.61無車位
4房2廳3衛42.5年1樓/3樓
4房2廳3衛42.5年1樓/3樓
交易備註
- 資料來源:
為信義房屋最新成交行情;
為內政部最新公布的實價登錄資料;
該數值為系統運算,詳細請看說明
- 本實價登錄分類係綜合內政部實價登錄2020年7月之建物型態分類調整,以及申報登錄之建物型態、建物權狀登載之「主要用途」資料推估而成,故資料呈現類型、順序可能會與內政部不動產交易實價查詢服務網之搜尋結果有所差異,請斟酌參考。看看我們如何推估實價登錄類型與順序
- 特殊行情物件可能為受到特別條件或特殊關係影響所造成,詳情請參考頁面之粉色「備註資訊」欄。排除特殊交易功能,開啟後可即時排除顯示申報備註中關係人間交易、特殊交易情況及標的類型、與政府有關之交易、僅車位交易、分件登記、含多筆土地或多棟建物、 交易標的僅有建物、土地面積為0(含地上權物件),及其他備註資訊,關閉後則會恢復顯示。
- 歷史移轉次數依據信義成交行情及政府實價登錄資訊推估,再由系統比對當筆與前一筆實價登錄,交易明細完全吻合方計算漲跌幅,當筆交易漲跌幅計算式為(當筆交易之成交總價/前一筆交易之成交總價)-1,計算百分比至小數點後兩位;可能與實際交易有所落差,資料請斟酌參考。
為信義房屋最新成交行情;- 本實價登錄分類係綜合內政部實價登錄2020年7月之建物型態分類調整,以及申報登錄之建物型態、建物權狀登載之「主要用途」資料推估而成,故資料呈現類型、順序可能會與內政部不動產交易實價查詢服務網之搜尋結果有所差異,請斟酌參考。看看我們如何推估實價登錄類型與順序
- 特殊行情物件可能為受到特別條件或特殊關係影響所造成,詳情請參考頁面之粉色「備註資訊」欄。排除特殊交易功能,開啟後可即時排除顯示申報備註中關係人間交易、特殊交易情況及標的類型、與政府有關之交易、僅車位交易、分件登記、含多筆土地或多棟建物、 交易標的僅有建物、土地面積為0(含地上權物件),及其他備註資訊,關閉後則會恢復顯示。
- 歷史移轉次數依據信義成交行情及政府實價登錄資訊推估,再由系統比對當筆與前一筆實價登錄,交易明細完全吻合方計算漲跌幅,當筆交易漲跌幅計算式為(當筆交易之成交總價/前一筆交易之成交總價)-1,計算百分比至小數點後兩位;可能與實際交易有所落差,資料請斟酌參考。
查看實價登錄
本案專家

根據你的設定值計算
50,778/月


