
請注意,上方物件照片如有街景,為物件附近環境介紹,非物件本身。
1/22
有44人也在關注這間👀
本案專家
更多挑選
按下按鈕表示您已同意本站
服務條款
與隱私權聲明
預約看屋
專!鳥松龍揚車庫美透
(7658VW)
高雄市鳥松區松埔北巷
有44人也在關注這間👀
總價
1,580萬
建坪單價
本物件含車位及加蓋,詳洽經紀人員
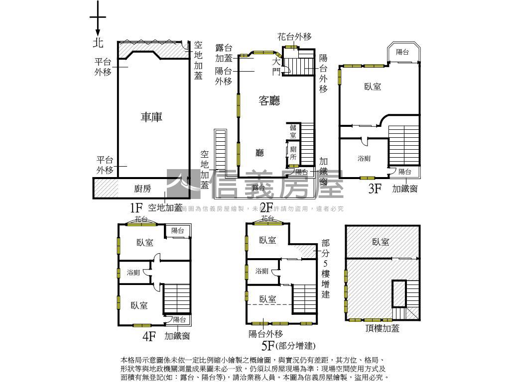
格局
6房2廳3.5衛1室
含加蓋1房
房貸試算
計算
元/月
年|利率%概算|undefined年寬限期
符合首購資格嗎?
坪數詳情
細項
建坪86.05
主+陽(含其他)86.05
地坪38.81
類型透天
屋齡31.3年
樓層1-5樓/5樓
加蓋格局1房
謄本用途住家用
使用分區鄉村區乙種建築用地;
完整物件詳情
本案專家
更多挑選
物件特色
極高性價比-高CP值
優質環境離城不離囂
社區管理與設施
教育與醫療便利性
停車與道路優勢
適合自居退休生活
鄰近澄清湖風景區
近鳥松生活中心機能佳
周邊生活機能


SinyiCare十大守護 信義房屋購售屋服務保障
點擊觀看生活機能
公車 (4)
公共自行車 (1)
0天皇別墅
20.4分鐘 / 1524m
1天皇別墅
20.2分鐘 / 1510m
2鳥松國中
8.9分鐘 / 707m
3鳥松國中
9分鐘 / 708m
0天皇別墅
20.4分鐘 / 1524m
1天皇別墅
20.2分鐘 / 1510m
2鳥松國中
8.9分鐘 / 707m
3鳥松國中
9分鐘 / 708m

SinyiCare十大守護 信義房屋購售屋服務保障
類似物件實價登錄
(5)
1公里內 | 半年內 | 透天
4房2廳3衛
|64.79坪
|無車位
925萬14.28萬/坪
115/02成交
4房2廳3衛
|75.24坪
|無車位
2,270萬30.17萬/坪
115/01成交


