
1/22
請注意,上方物件照片如有街景,為物件附近環境介紹,非物件本身。
1/22
有45人也在關注這間👀
本案專家

預約看屋
按下送出表示您已同意本站
服務條款
與隱私權聲明
送出
西屯路逢甲商圈臨路店面
(1060VU)
台中市西屯區西屯路二段
有45人也在關注這間👀
詳情
總價
5,568萬
6388萬
格局
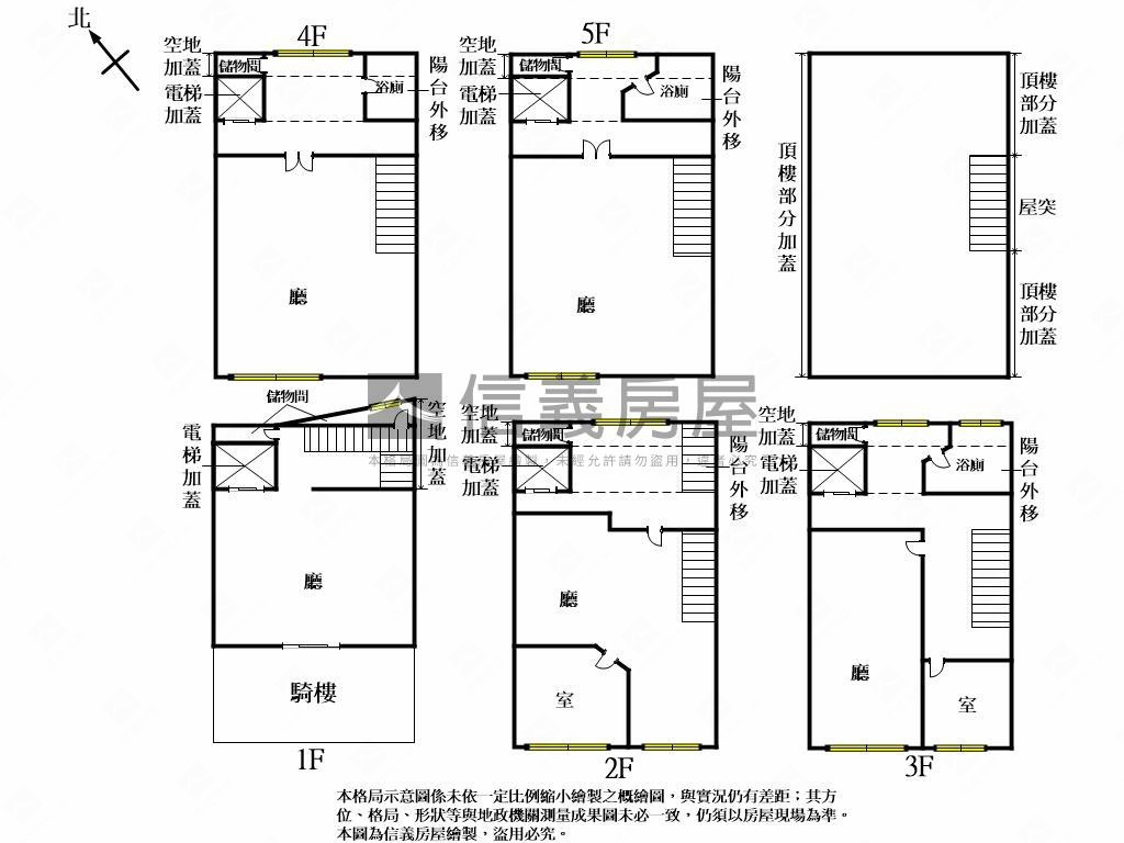
5廳3衛2室
建坪
93.7坪
(主+陽85.46坪)
類型
店面/辦公
樓層
1-5樓/5樓
建坪單價
--
屋齡
33.2年
地坪
24.2坪
地坪單價
230.08 萬/坪

SinyiCare十大守護 信義房屋購售屋服務保障

點擊觀看生活機能
公車 (19)公共自行車 (3)停車場 (7)
0大漁池
0.2分鐘 / 15m
1大漁池
0.4分鐘 / 29m
2下湳仔(西屯路)
2.2分鐘 / 140m
3下湳仔(西屯路)
2.6分鐘 / 169m
4逢甲大學(逢甲路)
3.6分鐘 / 244m
5逢甲大學(逢甲路)
3.8分鐘 / 256m
6逢甲大學(福星路)
5.9分鐘 / 399m
7逢甲大學(福星路)
6分鐘 / 406m
8至善國中(逢甲路)
4.8分鐘 / 362m
9至善國中(逢甲路)
4.9分鐘 / 371m
A福星停車場
6.8分鐘 / 466m
B頂湳仔(西屯路)
6.1分鐘 / 426m
C福星停車場
7.3分鐘 / 501m
D頂湳仔(西屯路)
6.3分鐘 / 438m
E至善國中(青海路)
7.8分鐘 / 571m
F至善國中(青海路)
7.7分鐘 / 550m
G青海光明路口
7.7分鐘 / 569m
H青海光明路口
8.2分鐘 / 612m
I福星西安街口
9.4分鐘 / 651m
0大漁池
0.2分鐘 / 15m
1大漁池
0.4分鐘 / 29m
2下湳仔(西屯路)
2.2分鐘 / 140m
3下湳仔(西屯路)
2.6分鐘 / 169m
4逢甲大學(逢甲路)
3.6分鐘 / 244m
觀看全部

SinyiCare十大守護 信義房屋購售屋服務保障
建坪
93.7坪
詳情
建坪單價
--
地坪
24.2坪
主+陽
85.46坪=
主建物
77.46坪+
陽台
8坪
屋頂突出物
2.09坪
騎樓
6.14坪
地坪單價
230.08 萬/坪
格局
5廳3衛2室
加蓋格局
--
屋齡
33.2年
類型
店面/辦公
樓層
1-5樓/5樓
車位
--
邊間/暗房
否/否
建物朝向
西南
大門朝向
西南
落地窗朝向
西南
警衛管理
無
建物詳情
建物結構
鋼筋混凝土
外牆建材
二丁掛
每層戶數
1
謄本用途
住商用
使用分區
見土地使用分區證明影本;
注意事項
--
收合
物件特色
正西屯路門牌
使用空間大彈性好運用
無障礙便利
適合連鎖商家
可做辦公行政中心
適合營運教育訓練中心
信義房屋購售屋十大守護
買方服務費成交價1%
類似物件實價登錄(12)
距離該物件1公里內,半年內成交,店面/辦公
共有12間與我相似的實價登錄物件
編輯篩選條件
列表
地圖
年月
地址
類型/車位
總價
單價
建坪
地坪
屋齡
樓層
格局
114年09月

台中市西屯區烈美街55巷8號地下一樓之1
辦公
690萬
11.4萬
60.53坪
0.33坪
30.9年
-1樓/7樓
2房1廳1衛
114年09月
辦公台中市西屯區烈美街55巷8號地下一樓之1690萬
11.4萬/坪
建坪60.53坪地坪0.33無車位
2房1廳1衛30.9年-1樓/7樓
2房1廳1衛30.9年-1樓/7樓
508萬
41.17萬/坪
建坪12.34坪地坪1.05無車位
2房2廳2衛33.9年8樓/8樓
2房2廳2衛33.9年8樓/8樓
390萬
23.79萬/坪
建坪16.39坪地坪1.49無車位
1房1廳1衛31.3年6樓/16樓
1房1廳1衛31.3年6樓/16樓
2,170萬
含車位價
51.06萬/坪
含車位計算
建坪42.5坪(含車位9.64坪)地坪7.98有車位
2房1廳1衛5.3年1樓/15樓
2房1廳1衛5.3年1樓/15樓
114年09月

台中市西屯區河南路二段262號九樓之1
辦公
有車位
1,128萬
含車位價
含車位價
23.89萬
含車位計算
含車位計算
47.22坪
含車位--坪
含車位--坪
4.95坪
34.3年
9樓/13樓
0衛
歷史移轉2次
114年09月
辦公台中市西屯區河南路二段262號九樓之1移轉2次
1,128萬
含車位價
23.89萬/坪
含車位計算
建坪47.22坪(含車位--坪)地坪4.95有車位
0衛34.3年9樓/13樓
0衛34.3年9樓/13樓
- 資料來源:
為信義房屋最新成交行情;
為內政部最新公布的實價登錄資料;
該數值為系統運算,詳細請看說明
- 本實價登錄分類係綜合內政部實價登錄2020年7月之建物型態分類調整,以及申報登錄之建物型態、建物權狀登載之「主要用途」資料推估而成,故資料呈現類型、順序可能會與內政部不動產交易實價查詢服務網之搜尋結果有所差異,請斟酌參考。看看我們如何推估實價登錄類型與順序
- 特殊行情物件可能為受到特別條件或特殊關係影響所造成,詳情請參考頁面之粉色「備註資訊」欄。排除特殊交易功能,開啟後可即時排除顯示申報備註中關係人間交易、特殊交易情況及標的類型、與政府有關之交易、僅車位交易、分件登記、含多筆土地或多棟建物、 交易標的僅有建物、土地面積為0(含地上權物件),及其他備註資訊,關閉後則會恢復顯示。
- 歷史移轉次數依據信義成交行情及政府實價登錄資訊推估,再由系統比對當筆與前一筆實價登錄,交易明細完全吻合方計算漲跌幅,當筆交易漲跌幅計算式為(當筆交易之成交總價/前一筆交易之成交總價)-1,計算百分比至小數點後兩位;可能與實際交易有所落差,資料請斟酌參考。
為信義房屋最新成交行情;- 本實價登錄分類係綜合內政部實價登錄2020年7月之建物型態分類調整,以及申報登錄之建物型態、建物權狀登載之「主要用途」資料推估而成,故資料呈現類型、順序可能會與內政部不動產交易實價查詢服務網之搜尋結果有所差異,請斟酌參考。看看我們如何推估實價登錄類型與順序
- 特殊行情物件可能為受到特別條件或特殊關係影響所造成,詳情請參考頁面之粉色「備註資訊」欄。排除特殊交易功能,開啟後可即時排除顯示申報備註中關係人間交易、特殊交易情況及標的類型、與政府有關之交易、僅車位交易、分件登記、含多筆土地或多棟建物、 交易標的僅有建物、土地面積為0(含地上權物件),及其他備註資訊,關閉後則會恢復顯示。
- 歷史移轉次數依據信義成交行情及政府實價登錄資訊推估,再由系統比對當筆與前一筆實價登錄,交易明細完全吻合方計算漲跌幅,當筆交易漲跌幅計算式為(當筆交易之成交總價/前一筆交易之成交總價)-1,計算百分比至小數點後兩位;可能與實際交易有所落差,資料請斟酌參考。
查看實價登錄
本案專家

根據你的設定值計算
282,732/月


