
1/18
請注意,上方物件照片如有街景,為物件附近環境介紹,非物件本身。
1/18
有801人也在關注這間👀
本案專家

預約看屋
按下送出表示您已同意本站
服務條款
與隱私權聲明
送出
有801人也在關注這間👀
詳情
總價(含車位)
1,380萬
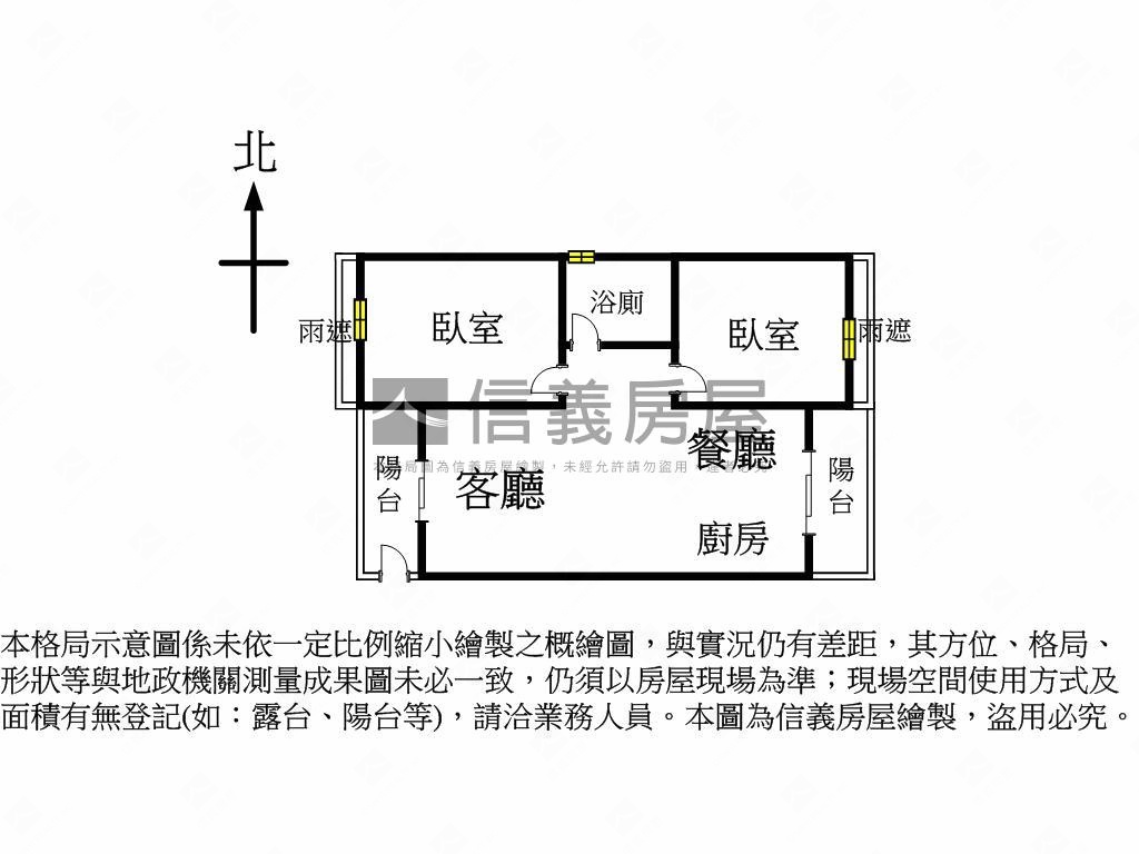
格局
2房2廳1衛
建坪
31.05坪
(主+陽17.23坪)
類型
大樓
樓層
9樓/14樓
建坪單價
本物件含車位,詳洽經紀人員
屋齡
21.7年
地坪
3.45坪
地坪單價
詳洽經紀人員

SinyiCare十大守護 信義房屋購售屋服務保障

點擊觀看生活機能
捷運 (5)公車 (14)公共自行車 (4)停車場 (11)
0聯合醫院站 - 出口
8.4分鐘 / 578m
1美術館站 - 出口
11.6分鐘 / 821m
2內惟藝術中心 - 出口
12.2分鐘 / 878m
3龍華國小站 - 出口
13.2分鐘 / 889m
4臺鐵美術館站 - 出口
13.9分鐘 / 987m
0聯合醫院站 - 出口
8.4分鐘 / 578m
1美術館站 - 出口
11.6分鐘 / 821m
2內惟藝術中心 - 出口
12.2分鐘 / 878m
3龍華國小站 - 出口
13.2分鐘 / 889m
4臺鐵美術館站 - 出口
13.9分鐘 / 987m

SinyiCare十大守護 信義房屋購售屋服務保障
建坪
31.05坪
詳情
建坪單價
本物件含車位,詳洽經紀人員
地坪
3.45坪
主+陽
17.23坪=
主建物
14.87坪+
陽台
2.36坪
防空避難室兼停車場
4.9坪
共有部份
8.3坪
雨遮
0.61坪
地坪單價
詳洽經紀人員
格局
2房2廳1衛
加蓋格局
--
屋齡
21.7年
類型
大樓
樓層
9樓/14樓
車位
1個坡道平面
邊間/暗房
否/否
建物朝向
南
大門朝向
南
落地窗朝向
西
警衛管理
全天候
管理費
1769 元/月
建物詳情
建物結構
鋼筋混凝土
外牆建材
馬賽克
每層戶數
2
謄本用途
住家用
使用分區
特定第五種住宅區;
注意事項
--
收合
物件特色
屋況佳即可入住
格局方正,衛浴開窗
前後陽台好利用
出動入近,交通便利
鄰近美術館公園環境美
鄰近優質學區
網路預約,專人服務
買方服務費成交價之1%
類似物件實價登錄(190)
距離該物件1公里內,半年內成交,大樓
共有190間與我相似的實價登錄物件
編輯篩選條件
列表
地圖
年月
地址
類型/車位
總價
單價
建坪
地坪
屋齡
樓層
格局
114年07月

高雄市鼓山區美術南三路112號九樓
大樓
有車位
1,250萬
含車位150萬
40.26萬
42.07萬
31.05坪
含車位4.9坪
3.45坪
21.1年
9樓/14樓
2房2廳1衛
備註資訊:含傢俱設備費;
114年10月

高雄市鼓山區美術南三路200號九樓
大樓
有車位
1,230萬
含車位150萬
37.12萬
42.94萬
33.14坪
含車位7.99坪
5.02坪
21.3年
9樓/14樓
2房2廳1衛
歷史移轉2次
備註資訊:含傢俱設備費;
備註資訊:親友、員工、共有人或其他特殊關係間之交易;
- 資料來源:
為信義房屋最新成交行情;
為內政部最新公布的實價登錄資料;
該數值為系統運算,詳細請看說明
- 本實價登錄分類係綜合內政部實價登錄2020年7月之建物型態分類調整,以及申報登錄之建物型態、建物權狀登載之「主要用途」資料推估而成,故資料呈現類型、順序可能會與內政部不動產交易實價查詢服務網之搜尋結果有所差異,請斟酌參考。看看我們如何推估實價登錄類型與順序
- 特殊行情物件可能為受到特別條件或特殊關係影響所造成,詳情請參考頁面之粉色「備註資訊」欄。排除特殊交易功能,開啟後可即時排除顯示申報備註中關係人間交易、特殊交易情況及標的類型、與政府有關之交易、僅車位交易、分件登記、含多筆土地或多棟建物、 交易標的僅有建物、土地面積為0(含地上權物件),及其他備註資訊,關閉後則會恢復顯示。
- 歷史移轉次數依據信義成交行情及政府實價登錄資訊推估,再由系統比對當筆與前一筆實價登錄,交易明細完全吻合方計算漲跌幅,當筆交易漲跌幅計算式為(當筆交易之成交總價/前一筆交易之成交總價)-1,計算百分比至小數點後兩位;可能與實際交易有所落差,資料請斟酌參考。
為信義房屋最新成交行情;- 本實價登錄分類係綜合內政部實價登錄2020年7月之建物型態分類調整,以及申報登錄之建物型態、建物權狀登載之「主要用途」資料推估而成,故資料呈現類型、順序可能會與內政部不動產交易實價查詢服務網之搜尋結果有所差異,請斟酌參考。看看我們如何推估實價登錄類型與順序
- 特殊行情物件可能為受到特別條件或特殊關係影響所造成,詳情請參考頁面之粉色「備註資訊」欄。排除特殊交易功能,開啟後可即時排除顯示申報備註中關係人間交易、特殊交易情況及標的類型、與政府有關之交易、僅車位交易、分件登記、含多筆土地或多棟建物、 交易標的僅有建物、土地面積為0(含地上權物件),及其他備註資訊,關閉後則會恢復顯示。
- 歷史移轉次數依據信義成交行情及政府實價登錄資訊推估,再由系統比對當筆與前一筆實價登錄,交易明細完全吻合方計算漲跌幅,當筆交易漲跌幅計算式為(當筆交易之成交總價/前一筆交易之成交總價)-1,計算百分比至小數點後兩位;可能與實際交易有所落差,資料請斟酌參考。
查看實價登錄
本案專家

根據你的設定值計算
70,074/月


